Address Withheld By Seller, Charleston, SC 29403
Local realty services provided by:ERA Evergreen Real Estate Company
Address Withheld By Seller,Charleston, SC 29403
$1,750,000
- 0.21 Acres
- Lots / Land
- Active
Listed by: luiz t yamashita, lucas beni
Office: dunes commercial properties
MLS#:193684
Source:Lowcountry Regional MLS
Sorry, we are unable to map this address
Price summary
- Price:$1,750,000
About this home
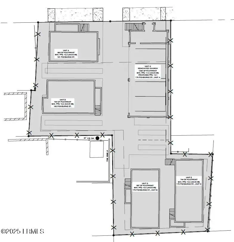
An exceptional permit-ready development opportunity in the heart of Charleston's Westside. 179-183 Fishburne Street is approved for the construction of five new homes, offering a rare chance to deliver a boutique residential project downtown without the long entitlement timeline. The permits are approved and ready to be pulled with the city of Charleston, allowing for a faster path to construction.
The development plan includes the conversion of an existing church into a single-family home, creating a distinctive architectural centerpiece for the site. A small structure behind the church is approved for demolition, opening the parcel for efficient site circulation and maximizing buildable area. The project also provides 10 off-street
Contact an agent
Home facts
- Listing ID #:193684
- Added:11 day(s) ago
- Updated:December 17, 2025 at 06:56 PM
Structure and exterior
- Lot area:0.21 Acres
Finances and disclosures
- Price:$1,750,000
New listings near 29403
- New
$950,000Active2 beds 3 baths1,280 sq. ft.150 Wappoo Creek Drive #9, Charleston, SC 29412
MLS# 25032600Listed by: RAVENEL ASSOCIATES REAL ESTATE. LLC - Open Sat, 12 to 2pmNew
$750,000Active4 beds 4 baths2,816 sq. ft.2050 Utsey Street, Johns Island, SC 29455
MLS# 25032602Listed by: CAROLINA ONE REAL ESTATE - New
$1,550,000Active4 beds 3 baths2,635 sq. ft.704 Netherton Court, Daniel Island, SC 29492
MLS# 25032612Listed by: IBG INTERNATIONAL INC - New
$329,900Active2 beds 3 baths995 sq. ft.403 Gravy Train Street, Charleston, SC 29414
MLS# 25032593Listed by: CAROLINA ONE REAL ESTATE - New
$339,900Active2 beds 3 baths995 sq. ft.407 Gravy Train Street, Charleston, SC 29414
MLS# 25032591Listed by: CAROLINA ONE REAL ESTATE - New
$375,000Active3 beds 2 baths1,256 sq. ft.1203 Sea Aire Drive, Charleston, SC 29412
MLS# 25032592Listed by: EXP REALTY LLC - New
$3,250,000Active8 beds -- baths1,700 sq. ft.265 Coming Street #A+B, Charleston, SC 29403
MLS# 25032576Listed by: EXP REALTY LLC - New
$442,000Active3 beds 3 baths1,540 sq. ft.168 Claret Cup Way, Charleston, SC 29414
MLS# 25032574Listed by: TOLL BROTHERS REAL ESTATE, INC - New
$465,000Active3 beds 3 baths1,540 sq. ft.438 Queenview Lane, Charleston, SC 29414
MLS# 25032570Listed by: TOLL BROTHERS REAL ESTATE, INC - New
$699,900Active4 beds 3 baths2,330 sq. ft.2 Skyeman Drive, Charleston, SC 29414
MLS# 25032561Listed by: KELLER WILLIAMS REALTY CHARLESTON WEST ASHLEY