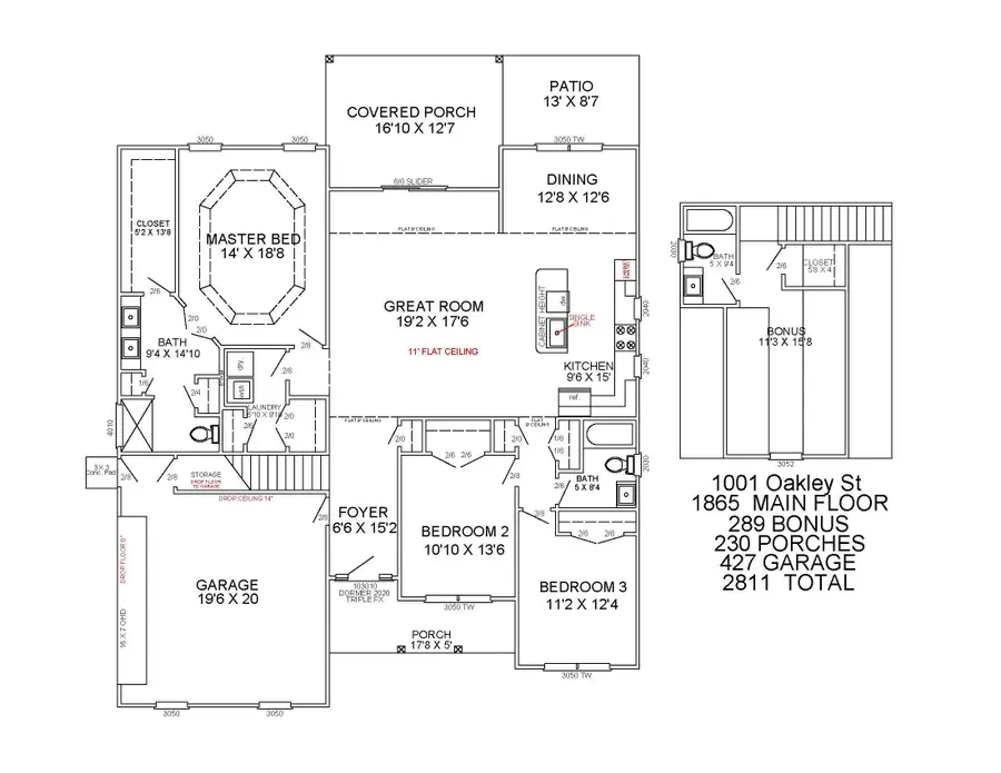
1001 Oakley St., Georgetown, SC 29440
Local realty services provided by:ERA Real Estate Modo
1001 Oakley St.,Georgetown, SC 29440
$449,990
- 4 Beds
- 7 Baths
- 2,811 sq. ft.
- Single family
- Active
Office: the beverly group
MLS#:2604700
Source:SC_CCAR
Price summary
- Price:$449,990
- Price per sq. ft.:$160.08
About this home
***Home is Under Construction*** This Sulivan model is a beautifully designed 1.5-story home offering 3 bedrooms and 2 bathrooms on the main level, plus a spacious bonus/bedroom with a full bath above the garage - totaling approximately 2,154 heated sq. ft. of thoughtfully planned living space. This open-concept floor plan includes a spacious kitchen with upgraded cabinets, granite countertops, a breakfast bar, pantry, and stainless steel appliances all overlooking the living area and a dining room, perfect for entertaining. The master bath features a tile walk-in shower and double sinks. Additional highlights include waterproof laminate flooring throughout the entire home, a covered front and rear porch, and a rear patio. This home sits on a generous 0..41-acre lot with no HOA, and comes standard with the efficiency and convenience of natural gas, including gas heat, a gas range, and a Rinnai tankless water heater.• Ion Gray Smart Thermostats – Please make sure this feature is included in your Public Remarks whenever you are highlighting home features. "Painted and trimmed 2-car garage featuring a steel-reinforced garage door with LiftMaster™ 3/4 HP chain-drive opener, built-in camera, and MyQ® Wi-Fi connectivity for mobile operation." Conveniently located just minutes from the historic Georgetown Harborwalk, shopping, dining, and waterfront attractions are never far from home. Building lifestyles for over 40 years, we remain the premier home builder along the Grand Strand. We’re proud to be the 2021, 2022, 2023, and 2024 winners of both WMBF News’ and The Sun News Best Home Builder awards, and the 2025 winner of The Sun News Best Home Builder. 2023, 2024, 2025, & 2026 winners of the Myrtle Beach Herald's Best Residential Real Estate Developer award, and 2024, 2025, & 2026 winners of The Horry Independent’s Best Residential Real Estate Developer and Best New Home Builder award. We began and remain in the Grand Strand, and we want you to experience the local pride we build today and every day in Horry and Georgetown Counties. Photos are stock photos of similar Plans. Seller is SC Real Estate Agent....
Contact an agent
Home facts
- Year built:2026
- Listing ID #:2604700
- Added:46 day(s) ago
- Updated:April 11, 2026 at 02:01 PM
Rooms and interior
- Bedrooms:4
- Total bathrooms:7
- Full bathrooms:4
- Half bathrooms:3
- Flooring:Carpet, Luxury Vinyl Plank
- Kitchen Description:Breakfast Bar, Dishwasher, Disposal, Microwave, Range
- Bedroom Description:Split Bedrooms
- Living area:2,811 sq. ft.
Heating and cooling
- Cooling:Central Air
- Heating:Central, Electric, Forced Air, Gas
- Central air:Yes
Structure and exterior
- Year built:2026
- Building area:2,811 sq. ft.
- Lot area:0.41 Acres
- Lot Features:City Lot, Rectangular
- Architectural Style:Traditional
- Construction Materials:Brick Veneer, Stucco, Vinyl Siding
- Exterior Features:Front Porch, Patio, Porch, Rear Porch
- Foundation Description:Slab
Schools
- High school:Georgetown High School
- Middle school:Georgetown Middle School
- Elementary school:Maryville Elementary School
Utilities
- Water:Public, Water Available
- Sewer:Sewer Available
Finances and disclosures
- Price:$449,990
- Price per sq. ft.:$160.08
Features and amenities
- Laundry features:Washer Hookup
- Amenities:Clubhouse
Parking
- Total parking spaces:2
- Parking description:Attached, Garage, Garage Door Opener, Two Car Garage
- Garage:Yes
- Garage spaces:2
New listings near 1001 Oakley St.
- New
$139,000Active3 beds 1 baths952 sq. ft.111 Gaylord Trail, Georgetown, SC 29440
MLS# 2609359Listed by: CB SEA COAST ADVANTAGE PI - Open Sun, 11:30am to 2pmNew
$489,000Active4 beds 2 baths2,644 sq. ft.2264 Wedgefield Rd., Georgetown, SC 29440
MLS# 2609340Listed by: CB SEA COAST ADVANTAGE PI - New
$160,000Active0.14 Acres134 Middle Square Ln., Georgetown, SC 29440
MLS# 2609235Listed by: PAWLEYS ISLAND REALTY CO - New
$899,000Active3 beds 4 baths3,050 sq. ft.75 Pine Grove Ln., Georgetown, SC 29440
MLS# 2609222Listed by: RE/MAX EXECUTIVE - New
$195,000Active3 beds 2 baths1,352 sq. ft.480 Lincolnshire Dr., Georgetown, SC 29440
MLS# 2609223Listed by: RE/MAX EXECUTIVE - New
$3,595,000Active6 beds 7 baths8,219 sq. ft.13 Ocean Park Loop, Georgetown, SC 29440
MLS# 2609159Listed by: PEACE SOTHEBY'S INTL REALTY PI - New
$395,000Active4 beds 3 baths2,728 sq. ft.36 Heron Cove, Georgetown, SC 29440
MLS# 2609024Listed by: GRIMES & ASSOCIATES, INC. - New
$1,495,000Active3 beds 3 baths2,880 sq. ft.3637 Choppee Rd., Georgetown, SC 29440
MLS# 2609005Listed by: EXP REALTY LLC - New
$323,840Active4 beds 2 baths2,296 sq. ft.1055 St. Martin St., Georgetown, SC 29440
MLS# 2608994Listed by: DR HORTON - New
$316,840Active3 beds 2 baths2,278 sq. ft.1057 St. Martin St., Georgetown, SC 29440
MLS# 2608995Listed by: DR HORTON