723 Holliday Dam Road, Honea Path, SC 29654
Local realty services provided by:ERA Live Moore
723 Holliday Dam Road,Honea Path, SC 29654
$580,000
- 4 Beds
- 3 Baths
- 2,255 sq. ft.
- Single family
- Pending
Listed by: joey mccormick
Office: re/max executive/greenville
MLS#:20297999
Source:SC_AAR
Price summary
- Price:$580,000
- Price per sq. ft.:$257.21
About this home
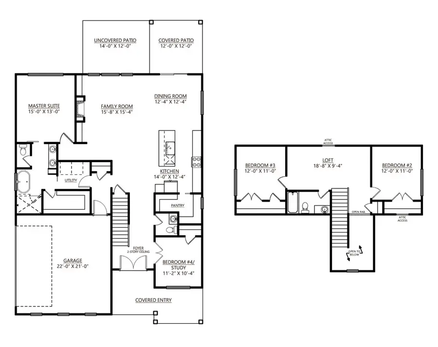
ASK US ABOUT OUR BUILDER FLEX CASH. WE CAN BUY YOUR INTEREST RATE DOWN AND/OR COVER YOUR CLOSING COSTS! Nestled on a sprawling 2.16-acre lot, this contemporary farmhouse radiates timeless appeal with a seamless fusion of rustic allure and modern sophistication. The exterior captivates with a classic board-and-batten facade, complemented by a cozy front porch supported by sturdy Cyprus beams, inviting you to unwind in shaded comfort. A sleek, 8-foot front door opens into a grand foyer, where a 2-story foyer lined with tongue-and-groove planking creates a sense of airy elegance that flows into the open-concept living and dining areas. Rich, wide-plank LVP flooring stretches across the main living spaces, offering warmth and durability with a refined, natural aesthetic. The heart of the home is the expansive, window-filled great room, where a dramatic shiplap-clad fireplace stretches from floor to ceiling, joined with timber floating shelves and custom built-ins, serving as a cozy yet commanding focal point. Adjacent, the gourmet kitchen is designed for both function and flair, featuring honed quartz countertops, a generous farmhouse sink, and a spacious island. Custom cabinetry, accented by gold hardware, pairs beautifully with a herringbone-patterned tile backsplash, while top-of-the-line stainless steel appliances, including a built-in oven, cater to culinary enthusiasts. A hidden walk-in pantry with built-in shelving and a coffee station adds practicality and charm, perfect for hosting gatherings or quiet mornings. The primary suite, thoughtfully positioned for seclusion at the home’s rear, is a sanctuary of luxury. Its ensuite bath boasts dual vanities with quartz tops, a sleek soaking tub, and a spacious walk-in shower with multiple shower heads and intricate tilework. A private water closet and an oversized closet with custom organizers enhance convenience, while a discreet sliding pocket door connects directly to the laundry room equipped with additional cabinetry for functional storage. The main level also includes a fourth bedroom, a versatile space with ample natural light and wide-plank LVP flooring, perfect as a guest suite or home office, complete with a spacious closet . The home’s upstairs layout offers a loft and two additional bedrooms, each with ample natural light and built-in closet shelving, sharing a stylish bathroom featuring a single vanity, tile flooring, and a tile-surround tub/shower. Outside, a 12x14 Trex rear deck and a 12x12 covered/screened porch provide an ideal setting for outdoor entertaining or serene evenings under the stars. The property includes an attached 22x21 garage and a detached, fully finished 20x20 workshop/garage, ideal for projects or extra parking. This modern farmhouse harmonizes rustic warmth with contemporary finesse, offering a tranquil retreat.
* Home has been preappoved by DES ( DHEC) for a pool
* Builder offers closing costs for using preferred lender and closing attorney
* This home is located in an USDA Eligible area...
Contact an agent
Home facts
- Year built:2025
- Listing ID #:20297999
- Added:73 day(s) ago
- Updated:April 28, 2026 at 07:17 AM
Rooms and interior
- Bedrooms:4
- Total bathrooms:3
- Full bathrooms:2
- Half bathrooms:1
- Rooms Total:13
- Flooring:Carpet, Luxury Vinyl Plank, Tile
- Bathrooms Description:Bath in Primary Bedroom, Bathtub, Garden Tub/Roman Tub, Separate Shower, Walk-In Shower
- Kitchen Description:Dishwasher, Disposal, Gas Cooktop, Gas Range, Microwave, Plumbed for Ice Maker
- Bedroom Description:Bath in Primary Bedroom, Main Level Primary
- Basement:Yes
- Living area:2,255 sq. ft.
Heating and cooling
- Cooling:Central Air, Electric, Forced Air
- Heating:Central, Forced Air, Gas, Natural Gas
- Central air:Yes
Structure and exterior
- Roof:Architectural, Shingle
- Year built:2025
- Building area:2,255 sq. ft.
- Lot area:2.16 Acres
- Lot Features:Level, Not In Subdivision, Outside City Limits
- Architectural Style:Farmhouse
- Construction Materials:Cement Siding
- Exterior Features:Deck, Front Porch, Porch, Screened, Sprinkler Irrigation
- Foundation Description:Slab
- Levels:2 Story
Schools
- High school:Bel-Hon Pth Hig
- Middle school:Honea Pth Middl
- Elementary school:Honea Pth Elem
Utilities
- Water:Public
- Sewer:Septic Tank
Finances and disclosures
- Price:$580,000
- Price per sq. ft.:$257.21
- Tax amount:$1,348 (2025)
Features and amenities
- Appliances:Dishwasher, Disposal, Gas Cooktop, Gas Range, Gas Water Heater, Microwave, Plumbed For Ice Maker, Tankless Water Heater
- Laundry features:Electric Dryer Hookup, Washer Hookup
- Amenities:Cable TV, Cathedral Ceilings, Ceiling Fans, Entrance Foyer, High Ceilings, Insulated Windows, Loft, Pull-Down Attic Stairs, Quartz Counters, Smoke Detectors, Smooth Ceilings, Tilt-In Windows, Tray Ceilings, Vaulted Ceilings, Vinyl Windows, Walk-in Closets, Workshop
Parking
- Parking description:Attached, Detached, Driveway, Garage, Garage Door Opener
- Garage:Yes
- Garage spaces:4
New listings near 723 Holliday Dam Road
- New
$159,000Active2 beds 1 baths7604 252 Highway, Honea Path, SC 29654
MLS# 1591576Listed by: EXP REALTY LLC - New
$185,000Active2 beds 2 baths204 Kay Street, Honea Path, SC 29654
MLS# 1591458Listed by: REAL GVL/REAL BROKER, LLC - New
$150,000Active10 Acrestbd Boyce Page Rd, Honea Path, SC 29654
MLS# 139814Listed by: RE/MAX ACTION REALTY - New
$84,900Active2 beds 1 baths301 Hammett Street, Honea Path, SC 29654
MLS# 20301186Listed by: GIBBS REALTY & AUCTION COMPANY - New
$349,900Active3 beds 3 baths307 Tribble Street, Honea Path, SC 29654
MLS# 1591122Listed by: WEICHERT REALTY-SHAUN & SHARI - New
$349,900Active3 beds 3 baths305 Tribble Street, Honea Path, SC 29654
MLS# 1591120Listed by: WEICHERT REALTY-SHAUN & SHARI - New
$1,325,000Active3 beds 2 baths801 Princeton Highway, Honea Path, SC 29654
MLS# 1590810Listed by: RE/MAX EXECUTIVE - New
$45,000Active0 Acres106 Fawn Drive, Honea Path, SC 29654
MLS# 1590733Listed by: RE/MAX RESULTS GREENVILLE
$141,250Active5.17 Acres140 Flowing Rock Road #4, Honea Path, SC 29654
MLS# 4371065Listed by: BERKSHIRE HATHAWAY HOMESERVICES
$225,000Active3 beds 1 baths1,290 sq. ft.3 Heyward Avenue, Honea Path, SC 29654
MLS# 20300806Listed by: SILVER STAR REAL ESTATE