12103 Lansbury Drive, Inman, SC 29349
Local realty services provided by:ERA Wilder Realty
12103 Lansbury Drive,Inman, SC 29349
$285,912
- 4 Beds
- 3 Baths
- - sq. ft.
- Single family
- Sold
Listed by: paige norris
Office: mungo homes properties, llc.
MLS#:1577167
Source:SC_GGAR
Sorry, we are unable to map this address
Price summary
- Price:$285,912
- Monthly HOA dues:$26.25
About this home
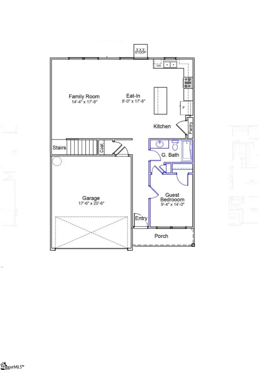
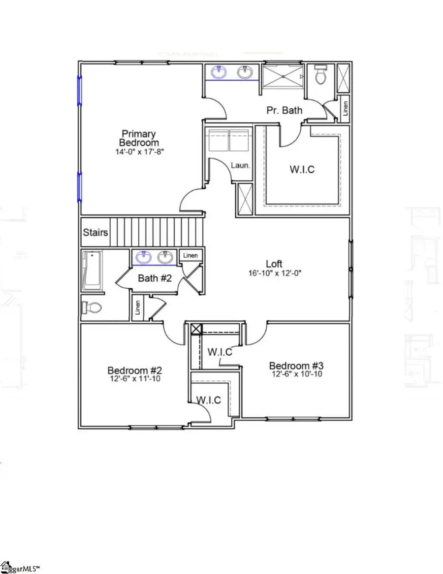
EST Completion Date 03/19/2026!!!!As soon as you step inside this magnificent house, you will be impressed by its beauty and functionality. The main floor features luxurious vinyl plank flooring throughout. In addition, there is a guest suite located at the front of the house. The kitchen features contemporary shaker-style cabinets that are complemented by stunning quartz countertops. If you love to entertain, you'll be thrilled to know that the kitchen opens up to the great room and leads to a backyard with a large back patio. The secondary bedrooms are spacious and come equipped with walk-in closets. They also share a bathroom that has plenty of storage space. The primary suite is truly impressive with its large 10x10 walk-in closet, five-foot shower, upgraded granite countertops, and ample storage.
Contact an agent
Home facts
- Year built:2026
- Listing ID #:1577167
- Added:109 day(s) ago
- Updated:April 04, 2026 at 06:18 AM
Rooms and interior
- Bedrooms:4
- Total bathrooms:3
- Full bathrooms:3
- Flooring:Carpet
- Kitchen Description:Dishwasher, Disposal, Microwave, Microwave-Convection
Heating and cooling
- Cooling:Electric
- Heating:Natural Gas
Structure and exterior
- Roof:Composition
- Year built:2026
- Lot Features:1/2 Acre or Less
- Architectural Style:Craftsman
- Construction Materials:Vinyl Siding
- Exterior Features:Patio
- Foundation Description:Slab
- Levels:2 Story
Schools
- High school:Boiling Springs
- Middle school:Boiling Springs
- Elementary school:Hendrix
Utilities
- Water:Public
- Sewer:Public Sewer
Finances and disclosures
- Price:$285,912
Features and amenities
- Appliances:Dishwasher, Gas Water Heater, Microwave
- Laundry features:2nd Floor, Electric Dryer Hookup, Walk-in, Washer Hookup
- Amenities:int_feat_Ceiling Fan(s), int_feat_Ceiling Smooth, int_feat_Countertops Quartz, int_feat_High Ceilings, int_feat_Open Floorplan, int_feat_Pantry, int_feat_Walk-In Closet(s)
Parking
- Total parking spaces:2
- Parking description:Attached, Concrete, Driveway
- Garage:Yes
- Garage spaces:2
New listings near 12103 Lansbury Drive
- New
$475,000Active3 beds 3 baths753 Ruby Golightly Drive, Inman, SC 29349
MLS# 1586977Listed by: EXP REALTY LLC - New
$399,349Active4 beds 4 baths459 Cobblestone Drive, Inman, SC 29349
MLS# 1586823Listed by: HERLONG SOTHEBY'S INTERNATIONAL REALTY - New
$304,000Active3 beds 3 baths12170 Lansbury Drive #lot 43, Inman, SC 29349
MLS# 1586799Listed by: MUNGO HOMES PROPERTIES, LLC - New
$269,499Active4 beds 3 baths1483 Cattleman Acres Drive, Inman, SC 29349
MLS# 1586785Listed by: LENNAR CAROLINAS LLC - New
$530,000Active3 beds 2 baths191 Skinner Road, Inman, SC 29349
MLS# 1586748Listed by: KELLER WILLIAMS REALTY - New
$244,900Active2 beds 1 baths531 Everette Butler Drive, Inman, SC 29349
MLS# 1586626Listed by: PONCE REALTY GROUP
$543,950Pending5 beds 5 baths535 Livingston Way, Inman, SC 29349
MLS# 1586553Listed by: MUNGO HOMES PROPERTIES, LLC- New
$239,979Active4 beds 2 baths521 Park Street, Inman, SC 29349-9231
MLS# 1586521Listed by: SPARTAN REALTY INC. - New
$425,000Active3 beds 2 baths591 Grand Canyon Road, Inman, SC 29349
MLS# 1586437Listed by: QUARTERMASTER PROPERTIES LLC - New
$451,000Active4 beds 3 baths544 Livingston Way #Lot 6 HWR, Inman, SC 29349
MLS# 1586438Listed by: MUNGO HOMES PROPERTIES, LLC