152 Winding Chestnut Drive, Irmo, SC 29053

Local realty services provided by:ERA Leatherman Realty, Inc.
152 Winding Chestnut Drive,Columbia, SC 29053
$219,999
  • 3 Beds
  • 3 Baths
  • 1,485 sq. ft.
  • Townhouse
  • Active
Listed by: robin ashford
Office: lennar carolinas llc.
MLS#:628713
Source:SC_CML

Price summary

  • Price:$219,999
  • Price per sq. ft.:$148.15

About this home

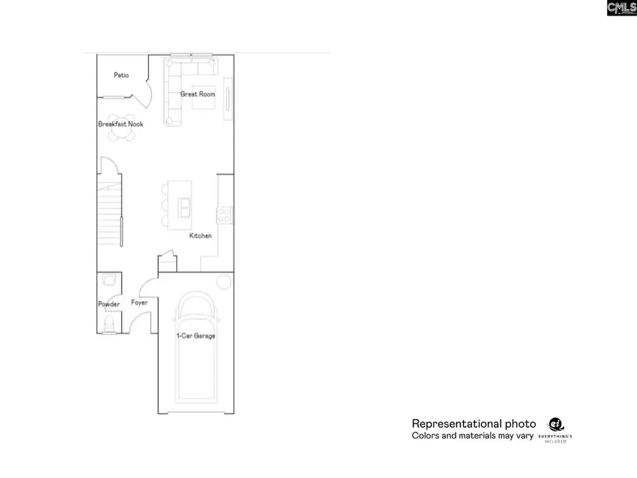
Move In Ready! Nature lovers, welcome to your stunning NEW 3-bedroom, 2.5-bath Cedar interior plan, perfectly situated for easy commuting in Columbia and nearby Irmo, SC. This brand new community is tucked into an established neighborhood that houses attractions like river access, boat ramps, fishing, hiking, community events. Enjoy the convenience of nearby shopping, Riverbanks Zoo, River Walk Park, and just a 20-minute drive to downtown Columbia. your new home features elegant quartz countertops in the kitchen and baths and wood-inspired vinyl plank flooring throughout the first floor. The open kitchen has spacious counters, an expansive island, and modern stainless-steel appliances, including a gas stove, microwave and dishwasher. All bedrooms are located on the second floor for privacy from the main level and the large owner’s suite even allows space for a king size bed. Your owners suite includes double vanity, a full walk in closet, and spacious walk-in shower. An additional...

Contact an agent

contact an agent

Yes, I would like more information. Please use and/or share my information with an ERA®  affiliated agent to contact me about my real estate needs. By clicking Send message, I request to be contacted by phone or text message and consent to being contacted by automated means. I understand that my consent to receive calls or texts is not a condition of purchasing any property, goods, or services. Alternatively, I understand that I can access real estate services by email or I can contact the agent myself.

If an ERA®  affiliated agent is not available in the area where I need assistance, I agree to be contacted by a real estate agent affiliated with another brand owned or licensed by Anywhere Real Estate (BHGRE® , CENTURY 21® , Coldwell Banker® , Corcoran® , Sotheby's International Realty® ).
 I acknowledge that I have read and agree to theTerms of useandPrivacy notice

Home facts

  • Year built:2025
  • Listing ID #:628713
  • Added:2 day(s) ago
  • Updated:March 11, 2026 at 02:03 AM

Rooms and interior

  • Bedrooms:3
  • Total bathrooms:3
  • Full bathrooms:2
  • Half bathrooms:1
  • Bathrooms Description:Bath-Private, Bath-Shared, Double Vanity, Separate Shower
  • Kitchen Description:Backsplash-Tiled, Cabinets-Painted, Counter Tops-Quartz, Dishwasher, Disposal, Eat In, Island, Microwave Above Stove, Pantry, Recessed Lights, Refrigerator, Stove Exhaust Vented Exte, Tankless H20
  • Bedroom Description:Closet-Private, Closet-Walk in, Floors - Carpet, On Second Level, Recessed Lighting, Separate Shower
  • Basement Description:No Basement
  • Living area:1,485 sq. ft.

Heating and cooling

  • Cooling:Central
  • Heating:Gas 1st Lvl, Gas 2nd Lvl

Structure and exterior

  • Year built:2025
  • Building area:1,485 sq. ft.
  • Lot area:0.06 Acres
  • Architectural Style:Traditional
  • Construction Materials:Stone, Vinyl
  • Exterior Features:Sprinkler
  • Levels:2 Story

Schools

  • High school:Dutch Fork
  • Middle school:Dutch Fork
  • Elementary school:Oak Pointe

Utilities

  • Water:Public
  • Sewer:Public

Finances and disclosures

  • Price:$219,999
  • Price per sq. ft.:$148.15

Features and amenities

  • Laundry features:Electric, Heated Space, Utility Room
  • Amenities:Attic Access, Attic Pull-Down Access, Cable TV Available, Garage Opener, Recreation Facility, Smoke Detector, Tennis Courts

Parking

  • Total parking spaces:1
  • Parking description:Front Entry, Garage Attached, Main Level Garage
  • Garage spaces:1
Last Updated: March 11, 2026 The data relating to real estate on this Web site derive in part from the Carolina Multiple Listing Services, Inc. IDX program. Brokers make an effort to deliver accurate information, but buyers should independently verify any information on which they will rely in a transaction. All properties are subject to prior sale, change or withdrawal. Neither ERA Leatherman Realty, Inc.nor any listing broker shall be responsible for any typographical errors, misinformation, or misprints, and they shall be held totally harmless from any damages arising from reliance upon this data. This data is provided exclusively for consumers' personal, non-commercial use and may not be used for any purpose other than to identify prospective properties they may be interested in purchasing. Copyright 2026 Carolina Multiple Listing Services, Inc.