310 Conductor (lot 59) Lane, Irmo, SC 29063
Local realty services provided by:ERA Wilder Realty
310 Conductor (lot 59) Lane,Irmo, SC 29063
$343,400
- 3 Beds
- 3 Baths
- 1,793 sq. ft.
- Single family
- Active
Upcoming open houses
- Wed, Mar 1811:00 am - 05:00 pm
Listed by: danny purser
Office: coldwell banker realty
MLS#:624289
Source:SC_CML
Price summary
- Price:$343,400
- Price per sq. ft.:$191.52
- Monthly HOA dues:$156
About this home
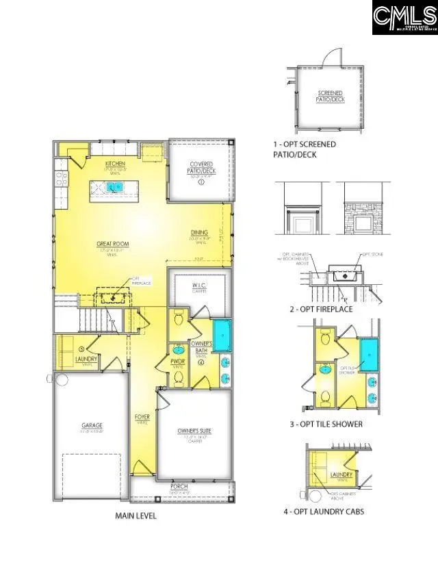
Welcome to Bickley Station!! Welcome to the Glenwood II, a beautifully designed home with 1,793 square feet of well-appointed living space. This spacious layout features three bedrooms and two and a half bathrooms, perfect for families or anyone seeking a cozy, functional retreat. The heart of the home is the open-concept great room, seamlessly flowing into the well-equipped kitchen and dedicated dining area. The bright and airy atmosphere creates an inviting space for both everyday living and entertaining guests. The private owner’s suite is a peaceful sanctuary located on the main floor, complete with a luxurious ensuite bathroom. Upstairs, two additional bedrooms share a conveniently located hall bathroom, providing comfort and privacy for family or guests. Enhance your outdoor living with the optional screened patio, ideal for enjoying the fresh air in comfort. Inside, choose from premium upgrades like a stylish kitchen island—offering additional counter space and storage. For a spa-like experience, upgrade to a luxurious tile shower in the owner’s suite bathroom. The home also includes a single-car garage, providing ample space for parking and storage. The Glenwood II offers a perfect blend of style, comfort, and practicality—ideal for those seeking a functional and beautiful home. Schedule a tour today and discover everything this stunning home can provide for your family! Virtual tour and/or listing photos include stock photography. Colors and options may vary. Price subject to change without notice. Home is only in drywall. Estimated completion is early April. Disclaimer: CMLS has not reviewed and, therefore, does not endorse vendors who may appear in listings....
Contact an agent
Home facts
- Year built:2026
- Listing ID #:624289
- Added:68 day(s) ago
- Updated:March 14, 2026 at 12:21 AM
Rooms and interior
- Bedrooms:3
- Total bathrooms:3
- Full bathrooms:2
- Half bathrooms:1
- Bathrooms Description:Bath-Private, Bath-Shared, Double Vanity, Separate Shower, Tub-Shower
- Kitchen Description:Cabinets-Painted, Counter Tops-Granite, Dishwasher, Disposal, Island, Microwave Above Stove, Pantry, Tankless H20
- Bedroom Description:Ceiling Fan, Closet-Walk in, Floors - Carpet, On Main Level, Separate Shower, Separate Water Closet
- Basement Description:No Basement
- Living area:1,793 sq. ft.
Heating and cooling
- Cooling:Central
- Heating:Gas 1st Lvl, Gas 2nd Lvl
Structure and exterior
- Year built:2026
- Building area:1,793 sq. ft.
- Lot area:0.09 Acres
- Architectural Style:Traditional
- Construction Materials:Fiber Cement-Hardy Plank
- Levels:2 Story
Schools
- High school:Irmo
- Middle school:Irmo
- Elementary school:Harbison West
Utilities
- Water:Public
- Sewer:Public
Finances and disclosures
- Price:$343,400
- Price per sq. ft.:$191.52
Features and amenities
- Laundry features:Electric, Heated Space
Parking
- Total parking spaces:2
- Parking description:Front Entry, Garage Attached, Main Level Garage
- Garage spaces:1
New listings near 310 Conductor (lot 59) Lane
- New
$265,000Active4 beds 2 baths2,018 sq. ft.448 Kettering Drive, Columbia, SC 29210
MLS# 629170Listed by: COMPASS CAROLINAS LLC - New
$625,000Active4 beds 4 baths2,768 sq. ft.344 Redstone Way, Columbia, SC 29212
MLS# 629109Listed by: THE CORRELL COMPANY, INC - Open Sun, 1 to 4pmNew
$500,000Active4 beds 3 baths3,000 sq. ft.1 Brittany Way, Columbia, SC 29212
MLS# 629101Listed by: EXP REALTY LLC - New
$285,000Active3 beds 3 baths2,378 sq. ft.548 Westlawn Road, Columbia, SC 29210
MLS# 629045Listed by: ERICA HOMES LLC - New
$270,000Active3 beds 2 baths1,490 sq. ft.310 Spartan Drive, Columbia, SC 29212
MLS# 628995Listed by: EXIT REALTY UNLIMITED LLC - New
$390,000Active5 beds 4 baths2,648 sq. ft.838 Gardendale Drive, Columbia, SC 29210
MLS# 628986Listed by: EXP REALTY LLC - New
$289,500Active2 beds 2 baths1,201 sq. ft.242 Shoreline Drive, Columbia, SC 29212
MLS# 628992Listed by: FATHOM REALTY SC LLC - New
$310,000Active4 beds 2 baths2,250 sq. ft.135 N Beaver Dam Road, Columbia, SC 29212
MLS# 628900Listed by: COLDWELL BANKER REALTY - New
$1,350,000Active4 beds 4 baths3,769 sq. ft.323 Regatta Road, Columbia, SC 29212
MLS# 628895Listed by: YIP PREMIER REAL ESTATE LLC - New
$364,900Active4 beds 2 baths2,236 sq. ft.144 Hamilton Park Drive, Irmo, SC 29063
MLS# 628857Listed by: FATHOM REALTY SC LLC