328 Conductor (lot 56) Lane, Irmo, SC 29063
Local realty services provided by:ERA Leatherman Realty, Inc.
328 Conductor (lot 56) Lane,Irmo, SC 29063
$299,900
- 3 Beds
- 3 Baths
- 1,597 sq. ft.
- Single family
- Active
Listed by: danny purser
Office: coldwell banker realty
MLS#:627512
Source:SC_CML
Price summary
- Price:$299,900
- Price per sq. ft.:$187.79
- Monthly HOA dues:$155
About this home
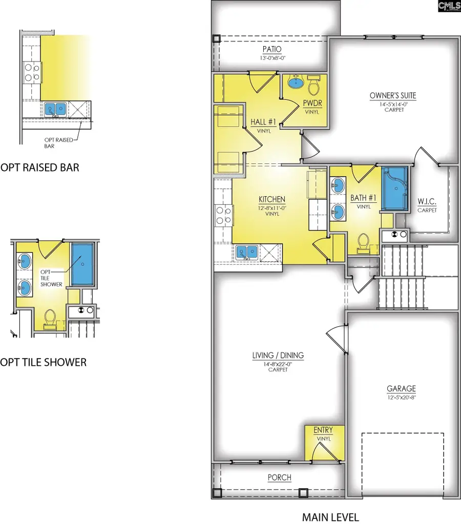
Welcome to Bickley Station!! Step into the Briarwood II, a thoughtfully designed home providing 1,597 square feet of comfortable living space. Featuring three bedrooms and two-and-a-half bathrooms, this home provides the perfect blend of modern living and private retreats. Choose from two unique exterior elevation options (A and B), each offering a distinctive combination of stone and Hardi plank to personalize your home's curb appeal and make a lasting first impression. Inside, the open-concept main level effortlessly connects the kitchen, living, and dining areas, creating a bright, airy atmosphere perfect for entertaining and everyday living. The kitchen boasts plenty of counter space and cabinetry, while the spacious living/dining area offers the perfect spot to relax and gather. A convenient powder room adds to the functionality of the main floor. Step outside to the covered patio, which extends your living space into the outdoors, ideal for enjoying the fresh air. The private owner’s suite, located on the main level, is a peaceful retreat, complete with a walk-in closet and an en-suite bathroom, featuring an optional tile shower for an upgraded, spa-like experience. Two additional bedrooms and a full bathroom complete the second floor, ensuring everyone has their own comfortable space. The Briarwood II masterfully combines open-concept living with private retreats, making it the ideal home for those who value both style and practicality. Schedule your tour today and explore this inviting home! Virtual tour and/or listing photos include stock photography. Colors and options may vary. Price subject to change without notice. Only in framing. Disclaimer: CMLS has not reviewed and, therefore, does not endorse vendors who may appear in listings....
Contact an agent
Home facts
- Year built:2026
- Listing ID #:627512
- Added:64 day(s) ago
- Updated:April 29, 2026 at 01:57 AM
Rooms and interior
- Bedrooms:3
- Total bathrooms:3
- Full bathrooms:2
- Half bathrooms:1
- Bathrooms Description:Bath-Private, Bath-Shared, Double Vanity, Separate Shower, Tub-Shower
- Kitchen Description:Backsplash-Tiled, Cabinets-Painted, Counter Tops-Granite, Dishwasher, Disposal, Island, Microwave Above Stove, Pantry, Tankless H20
- Bedroom Description:Ceiling Fan, Closet-Private, Closet-Walk in, Floors - Carpet, On Main Level, Separate Shower, Separate Water Closet
- Basement Description:No Basement
- Living area:1,597 sq. ft.
Heating and cooling
- Cooling:Central
- Heating:Gas 1st Lvl, Gas 2nd Lvl
Structure and exterior
- Year built:2026
- Building area:1,597 sq. ft.
- Lot area:0.1 Acres
- Architectural Style:Traditional
- Construction Materials:Fiber Cement-Hardy Plank, Stone
- Levels:2 Story
Schools
- High school:Irmo
- Middle school:Irmo
- Elementary school:Harbison West
Utilities
- Water:Public
- Sewer:Public
Finances and disclosures
- Price:$299,900
- Price per sq. ft.:$187.79
Features and amenities
- Laundry features:Electric, Heated Space
Parking
- Total parking spaces:2
- Parking description:Front Entry, Garage Attached, Main Level Garage
- Garage spaces:1
New listings near 328 Conductor (lot 56) Lane
- New
$219,999Active3 beds 3 baths1,475 sq. ft.157 Winding Chestnut Drive, Columbia, SC 29212
MLS# 632651Listed by: LENNAR CAROLINAS LLC - New
$219,999Active3 beds 3 baths1,475 sq. ft.170 Winding Chestnut Drive, Columbia, SC 29212
MLS# 632652Listed by: LENNAR CAROLINAS LLC - New
$219,999Active3 beds 3 baths1,475 sq. ft.166 Winding Chestnut Drive, Columbia, SC 29212
MLS# 632653Listed by: LENNAR CAROLINAS LLC - New
$239,900Active3 beds 2 baths1,888 sq. ft.311 Spartan Drive, Columbia, SC 29212
MLS# 632627Listed by: COLDWELL BANKER REALTY - New
$249,000Active3 beds 2 baths1,428 sq. ft.210 Stockmoor Road, Columbia, SC 29212
MLS# 632517Listed by: EXPERIENCED REAL EST GROUP LLC - New
$290,000Active4 beds 3 baths1,780 sq. ft.1816 Shadowood Road, Columbia, SC 29412
MLS# 632518Listed by: CAROLINA ONE REAL ESTATE - New
$154,000Active3 beds 2 baths1,500 sq. ft.157 Jefferson Place, Columbia, SC 29212
MLS# 632499Listed by: STEPHENSON PROPERTY GROUP - New
$350,000Active4 beds 4 baths2,360 sq. ft.243 Bishopgate Road, Columbia, SC 29212
MLS# 632501Listed by: KELLER WILLIAMS REALTY - New
$570,000Active6 beds 6 baths1,877 sq. ft.116 Crosscreek Drive, Columbia, SC 29212
MLS# 632496Listed by: OPENDOOR BROKERAGE LLC - New
$364,900Active3 beds 2 baths1,518 sq. ft.320 Shoreline Drive, Columbia, SC 29212
MLS# 632476Listed by: FATHOM REALTY SC LLC