743 Grateful Dr., Little River, SC 29566
Local realty services provided by:ERA Wilder Realty
743 Grateful Dr.,Little River, SC 29566
$331,315
- 4 Beds
- 3 Baths
- 2,480 sq. ft.
- Single family
- Active
Listed by: penny jones
Office: dr horton
MLS#:2601770
Source:SC_CCAR
Price summary
- Price:$331,315
- Price per sq. ft.:$133.59
- Monthly HOA dues:$65
About this home
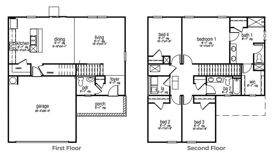
Welcome to Sandrigde Park, located in Little River. The area is known for their deep-sea fishing charters, fresh seafood, and their famous Blue Crab Festival. This area is only 20 miles from the hustle and bustle of Myrtle Beach. Residents are drawn to Little River for its more relaxed, laid-back feel. This quaint fishing village is close to a few major roadways that can quickly take you to larger cities and within a short drive of Longs, Cherry Grove Beach and North Myrtle Beach. The Arden floor plan features an open flow between the kitchen, dining and living area that is great for entertaining. The well-designed floorplan offers the open concept and a space that can be decorated and lived-in in many ways. The kitchen comes complete with a center island, a tile backsplash, granite countertops, a corner walk in pantry, 36" cabinets and stainless steel appliances including a refrigerator! Beautiful luxury vinyl plank flooring throughout the main living areas! A second floor owner's suite is large with a spacious walk in closet and a bathroom that features double sinks, 5' walk-in shower, garden tub and plenty of space. Three secondary bedrooms and another full bathroom complete the upstairs area. Enjoy the coastal breezes on the covered back porch. This is America's Smart Home! Each of our homes comes with an industry leading smart home technology package that will allow you to control the thermostat, front door light and lock, and video doorbell from your smartphone. *Photos are of a similar Arden home. (Home and community information, including pricing, included features, terms, availability and amenities, are subject to change prior to sale at any time without notice or obligation. Square footages are approximate. Pictures, photographs, colors, features, and sizes are for illustration purposes only and will vary from the homes as built. Equal housing opportunity builder.)...
Contact an agent
Home facts
- Year built:2026
- Listing ID #:2601770
- Added:108 day(s) ago
- Updated:May 09, 2026 at 06:43 PM
Rooms and interior
- Bedrooms:4
- Total bathrooms:3
- Full bathrooms:2
- Half bathrooms:1
- Flooring:Carpet, Luxury Vinyl Plank
- Kitchen Description:Breakfast Bar, Dishwasher, Disposal, Kitchen Island, Microwave, Range, Refrigerator
- Living area:2,480 sq. ft.
Heating and cooling
- Cooling:Central Air
- Heating:Central, Electric
- Central air:Yes
Structure and exterior
- Year built:2026
- Building area:2,480 sq. ft.
- Lot area:0.26 Acres
- Lot Features:Cul De Sac
- Architectural Style:Traditional
- Construction Materials:Vinyl Siding, Wood Frame
- Exterior Features:Front Porch, Porch, Rear Porch
- Foundation Description:Slab
- Levels:2 Story
Schools
- High school:North Myrtle Beach High School
- Middle school:North Myrtle Beach Middle School
- Elementary school:Waterway Elementary
Utilities
- Water:Public, Water Available
- Sewer:Sewer Available
Finances and disclosures
- Price:$331,315
- Price per sq. ft.:$133.59
Features and amenities
- Laundry features:Washer Hookup
- Amenities:Attic
- Smart home:Yes
Parking
- Total parking spaces:4
- Parking description:Attached, Garage, Garage Door Opener, Two Car Garage
- Garage:Yes
- Garage spaces:2
New listings near 743 Grateful Dr.
- New
$149,999Active2 beds 2 baths972 sq. ft.4015 Fairway Dr. #402, Little River, SC 29566
MLS# 2612048Listed by: OASIS REALTY COLLECTIVE - New
$499,900Active3 beds 3 baths2,581 sq. ft.2490 Glen Dr., Little River, SC 29566
MLS# 2612034Listed by: PROPERTY MARKETPLACE - New
$279,900Active5 beds 2 baths1,584 sq. ft.1922 N Twisted Oak Dr., Little River, SC 29566
MLS# 2612036Listed by: ABOVE THE BEACH REAL ESTATE - New
$269,000Active2 beds 2 baths1,000 sq. ft.4413 Eastport Blvd. #F-5, Little River, SC 29566
MLS# 2612007Listed by: GRANDE DUNES PROPERTIES - New
$175,000Active2 beds 2 baths892 sq. ft.4101 Pinehurst Circle #AA2, Little River, SC 29566
MLS# 2612008Listed by: INTRACOASTAL REALTY - New
$139,900Active2 beds 2 baths1,088 sq. ft.4502 Little River Inn Ln. #2501, Little River, SC 29566
MLS# 2612014Listed by: CENTURY 21 THE HARRELSON GROUP - New
$319,900Active3 beds 2 baths2,417 sq. ft.762 Callant Dr., Little River, SC 29566
MLS# 2611997Listed by: CENTURY 21 BAREFOOT REALTY - New
$337,000Active2 beds 2 baths1,401 sq. ft.4396 Baldwin Ave. #98, Little River, SC 29566
MLS# 2611980Listed by: CENTURY 21 BOLING & ASSOCIATES - New
$215,000Active2 beds 3 baths1,200 sq. ft.130 Scotch Broom Drive # H103, Little River, SC 29566
MLS# 100572463Listed by: REALTY ONE GROUP DOCKSIDE NORTH - New
$249,900Active2 beds 2 baths1,040 sq. ft.4352 Grande Harbour Blvd., Little River, SC 29566
MLS# 2611959Listed by: CENTURY 21 THE HARRELSON GROUP