874 Foxtail Dr. #C-36, Longs, SC 29568
Local realty services provided by:ERA Real Estate Modo
874 Foxtail Dr. #C-36,Longs, SC 29568
$358,900
- 3 Beds
- 3 Baths
- 2,495 sq. ft.
- Townhouse
- Active
Office: hq real estate llc.
MLS#:2605625
Source:SC_CCAR
Price summary
- Price:$358,900
- Price per sq. ft.:$143.85
- Monthly HOA dues:$245
About this home
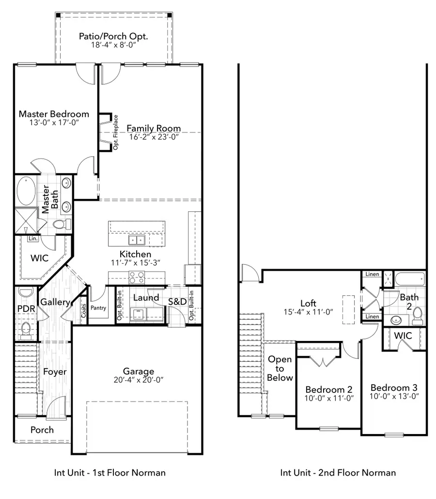
Looking for true luxury in a townhome? Look no further than Long Bay Townhomes. Nestled in a prime location, Long Bay offers the perfect blend of modern sophistication and comfort. These true townhomes offer spacious layouts, high-end finishes, and exceptional design, these townhomes provide an elevated living experience like no other. With a short golf cart ride to a championship golf course within the community, this is a true golfers retreat! The Norman is a generously sized townhome offering 2,000 square feet of thoughtfully designed living space. With 3 bedrooms and 2.5 baths, this floorplan is perfect for growing families or those seeking extra room for guests. The primary suite is conveniently located on the main floor and features a spacious walk-in closet and private bath. The two-story open foyer greets you with grandeur, leading to an open-concept kitchen and family room ideal for entertaining. A two-car garage and main-floor laundry add practicality and convenience. Upstairs, you'll find two additional bedrooms, a full bathroom, and a versatile loft area. The Palmer’s combination of functionality and style makes it a standout choice for comfortable, modern living. ****Photos are staged and for representation purposes only. ****...
Contact an agent
Home facts
- Year built:2025
- Listing ID #:2605625
- Added:477 day(s) ago
- Updated:March 28, 2026 at 02:02 PM
Rooms and interior
- Bedrooms:3
- Total bathrooms:3
- Full bathrooms:2
- Half bathrooms:1
- Flooring:Carpet, Laminate, Tile
- Kitchen Description:Disposal, Kitchen Island, Microwave, Oven, Range, Refrigerator
- Living area:2,495 sq. ft.
Heating and cooling
- Cooling:Central Air
- Heating:Central, Electric
- Central air:Yes
Structure and exterior
- Year built:2025
- Building area:2,495 sq. ft.
- Lot Features:Near Golf Course
- Construction Materials:Vinyl Siding
- Exterior Features:Front Porch, Patio, Porch, Rear Porch, Sprinkler Irrigation
- Foundation Description:Slab
- Levels:2 Story
Schools
- High school:Loris High School
- Middle school:Loris Middle School
- Elementary school:Daisy Elementary School
Utilities
- Water:Public, Water Available
- Sewer:Sewer Available
Finances and disclosures
- Price:$358,900
- Price per sq. ft.:$143.85
Features and amenities
- Laundry features:Dryer, Washer
Parking
- Parking description:Garage Door Opener, Private, Two Car Garage
- Garage:Yes
- Garage spaces:2
New listings near 874 Foxtail Dr. #C-36
- New
$479,900Active3 beds 2 baths2,654 sq. ft.1112 Merritt Rd, Conway, SC 29526
MLS# 2608025Listed by: REALTY ONE GROUP DOCKSIDE CNWY - New
$299,900Active3 beds 2 baths1,960 sq. ft.2264 Todd Dr., Longs, SC 29568
MLS# 2608000Listed by: RE/MAX SOUTHERN SHORES-CONWAY - New
$167,000Active2 beds 2 baths1,056 sq. ft.109 South Shore Blvd. #104, Longs, SC 29568
MLS# 2607973Listed by: RE/MAX SOUTHERN SHORES - New
$325,000Active3 beds 2 baths2,313 sq. ft.373 Sun Colony Blvd., Longs, SC 29568
MLS# 2607989Listed by: CAROLINA ONE REAL ESTATE MB - New
$266,000Active4 beds 3 baths2,312 sq. ft.165 Birchwood Dr., Longs, SC 29568
MLS# 2607952Listed by: LENNAR CAROLINAS LLC - New
$238,800Active3 beds 2 baths1,447 sq. ft.178 Birchwood Dr., Longs, SC 29568
MLS# 2607954Listed by: LENNAR CAROLINAS LLC - New
$660,385Active4 beds 3 baths3,063 sq. ft.2116 Vera Way, Longs, SC 29568
MLS# 2607913Listed by: NVR RYAN HOMES - New
$310,000Active4 beds 2 baths2,296 sq. ft.331 Gringott Ln., Longs, SC 29568
MLS# 2607916Listed by: GREYFEATHER GROUP EXP REALTY - New
$246,000Active4 beds 2 baths1,700 sq. ft.606 Cambria Dr, Longs, SC 29568
MLS# 2607927Listed by: LENNAR CAROLINAS LLC - New
$374,490Active4 beds 3 baths2,701 sq. ft.993 Lauryn Oak Loop, Longs, SC 29568
MLS# 2607909Listed by: MERITAGE HOMES OF THE CAROLINA