Lot 4 Tooge Hayes Rd., Marion, SC 29571
Local realty services provided by:ERA Wilder Realty
Lot 4 Tooge Hayes Rd.,Marion, SC 29571
$199,900
- 4 Beds
- 2 Baths
- 1,791 sq. ft.
- Mobile / Manufactured
- Active
Office: diamond shores realty
MLS#:2604900
Source:SC_CCAR
Price summary
- Price:$199,900
- Price per sq. ft.:$111.61
About this home
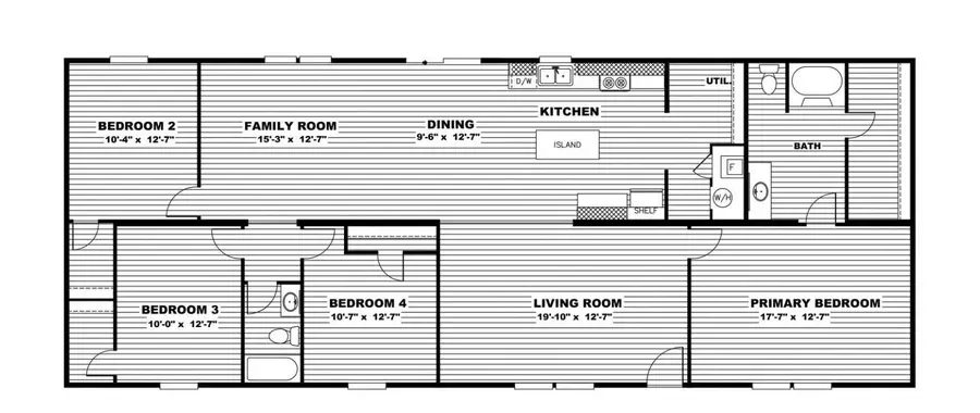
Embrace affordable, spacious country living on a generous 1.5-acre parcel (PIN # 0340000102000) along peaceful Tooge Hayes Road in Mullins, SC. This quiet, rural setting in Marion County offers plenty of elbow room and natural serenity, while being conveniently located just minutes from Mullins' local amenities, schools, shopping, and dining. Easy access to major routes makes commutes to Florence, Myrtle Beach, or surrounding areas straightforward—perfect for families, retirees, or anyone seeking a relaxed lifestyle with room to grow. This brand-new 2025 Pride model double-wide manufactured home delivers exceptional value and modern comfort: 4 spacious bedrooms and 2 full baths—ideal for growing families, guests, home offices, or hobby spaces in this popular, family-friendly layout (approximately 1,791 sq ft of open living area). Thoughtfully designed open-concept floor plan with a bright kitchen featuring contemporary appliances, ample cabinetry, island/breakfast bar options, and seamless flow into the living and dining areas for everyday entertaining. High-quality construction from trusted builders (TRU/Clayton Homes Pride series), meeting South Carolina standards with a permanent foundation, attractive skirting, steps/porch entry, energy-efficient features like central HVAC, and low-maintenance finishes throughout. Expansive outdoor potential on your private 1.5-acre lot—plenty of space for gardening, outdoor activities, a playset, additional parking, sheds, or simply enjoying the peaceful, wooded/rural surroundings with no close neighbors crowding in. Marion County's zoning supports manufactured homes on individual lots like this one (with proper permitting, setup, and inspections), offering flexibility without restrictive HOA rules—making it an excellent choice for first-time buyers, expanding households, downsizers, or investors looking for a solid, appreciating property in a stable rural market. Priced competitively in the presale phase—secure your customizations, builder incentives, and installation timeline now before completion! With land values holding strong in Marion County and demand for affordable quality homes rising, this is a smart opportunity to own a move-in-ready 2025 Pride double-wide on a sizable 1.5-acre lot with lasting appeal. For full pricing details, floor plan specifics (including the popular Pride TRU28684RH-inspired design), customization options, lot photos, delivery/setup estimates, or to schedule a private viewing of the site, contact me today. Properties like this in Mullins don't stay available long—claim your slice of South Carolina countryside on Tooge Hayes Road!...
Contact an agent
Home facts
- Year built:2025
- Listing ID #:2604900
- Added:19 day(s) ago
- Updated:March 17, 2026 at 02:04 PM
Rooms and interior
- Bedrooms:4
- Total bathrooms:2
- Full bathrooms:2
- Living area:1,791 sq. ft.
Structure and exterior
- Year built:2025
- Building area:1,791 sq. ft.
- Lot area:1.5 Acres
- Architectural Style:Mobile Home
Schools
- High school:Outside of Horry & Georgetown Counties
- Middle school:Outside of Horry & Georgetown Counties
- Elementary school:Outside of Horry & Georgetown Counties
Finances and disclosures
- Price:$199,900
- Price per sq. ft.:$111.61
Parking
- Total parking spaces:4
- Parking description:Driveway
New listings near Lot 4 Tooge Hayes Rd.
- New
$299,900Active3 beds 2 baths1,831 sq. ft.3472 Creech Rd., Marion, SC 29571
MLS# 2606770Listed by: SWAMP FOX REALTY & APPRAISALS - New
$235,000Active3 beds 2 baths1,465 sq. ft.2192 Senator Gasque Hwy., Marion, SC 29571
MLS# 2606658Listed by: CORDER PROPERTIES, INC. - New
$260,000Active3 beds 2 baths1,724 sq. ft.2204 Norwood Dr., Marion, SC 29571
MLS# 2606660Listed by: CORDER PROPERTIES, INC. - New
$260,000Active3 beds 2 baths1,724 sq. ft.2207 Norwood Dr., Marion, SC 29571
MLS# 2606663Listed by: CORDER PROPERTIES, INC. - New
$299,999Active3 beds 2 baths1,831 sq. ft.3472 Creech Rd., Marion, SC 29571
MLS# 2600974Listed by: SWAMP FOX REALTY & APPRAISALS - New
$559,900Active3 beds 3 baths3,076 sq. ft.508 Banna Arch Loop, Myrtle Beach, SC 29579
MLS# 2606468Listed by: TODAY HOMES REALTY SC, LLC - New
$522,900Active3 beds 3 baths3,076 sq. ft.540 Banna Arch Loop, Myrtle Beach, SC 29579
MLS# 2606416Listed by: TODAY HOMES REALTY SC, LLC - New
$152,900Active3 beds 1 baths1,173 sq. ft.409 Reaves St., Marion, SC 29571
MLS# 2606363Listed by: RE/MAX SOUTHERN SHORES
$285,000Pending3 beds 2 baths1,700 sq. ft.570 Keene Rd., Marion, SC 29571-0000
MLS# 2600865Listed by: FIRST CHARTER CO INC
$114,900Active3 beds 2 baths1,512 sq. ft.2008 S Highway 501, Marion, SC 29571
MLS# 2600837Listed by: CAROLINA PINES REALTY OFFICE B