450 Tulip Poplar Drive, Moncks Corner, SC 29461
Local realty services provided by:ERA Wilder Realty
Listed by: ladana johnson
Office: d r horton inc
MLS#:25026649
Source:SC_CTAR
450 Tulip Poplar Drive,Moncks Corner, SC 29461
$403,540
- 4 Beds
- 2 Baths
- 2,164 sq. ft.
- Single family
- Active
Price summary
- Price:$403,540
- Price per sq. ft.:$186.48
About this home
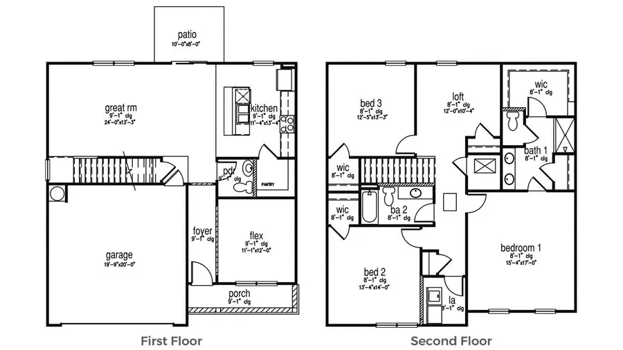
Customize YOUR homesite on this dirt lot! We are excited to offer you the opportunity to add custom options and personalize this home to fit your lifestyle. From selecting finishes and features to designing spaces that suit your needs, you can truly make this home your own before construction begins.Introducing the Penwell, a thoughtfully designed two-story home offering the perfect combination of style, space, and functionality. This home features 4 bedrooms, 2.5 bathrooms, and a two-car garage. This Penwell is located a short walk away from the stunning resort style amenity center. Step into a welcoming foyer that flows into an expansive great room, creating the perfect space for entertaining or relaxing. The heart of the home is the kitchen, which features stainless steel appliances, elegant quartz countertops, a walk-in pantry, and a beautiful island ideal for preparing meals and hosting gatherings. A versatile flex room on the first floor offers the perfect space for a home office, gym, or playroom.
The primary suite serves as a luxurious retreat, complete with a spacious walk-in closet and an en-suite bathroom featuring dual vanities and ample storage. Three additional bedrooms upstairs provide plenty of room for family or guests, each offering comfort and privacy. A shared full bathroom and a centrally located laundry room add convenience and ease to your daily routine.
This home is designed with both practicality and luxury in mind, offering premium finishes such as quartz countertops and an open-concept design. With four bedrooms and flexible living spaces, the Penwell floor plan is perfect for families of all sizes. This home includes Window Blinds, a Refrigerator, and Garage Door Opener! Additional features include high-efficiency 15 SEER 2 Carrier HVAC, and a tankless water heater for endless hot water!
All new homes will include D.R. Horton's Home is Connected® package, an industry leading suite of smart home products that keeps homeowners connected with the people and place they value the most. This technology allows homeowners to monitor and control their home from the couch or across the globe. Products include touchscreen interface, video doorbell, front door light, z-wave t-stat, and keyless door lock.
*Square footage dimensions are approximate. *The photos you see here are for illustration purposes only, interior and exterior features, options, colors and selections will differ. Please reach out to sales agent for options.
Contact an agent
Home facts
- Year built:2025
- Listing ID #:25026649
- Added:44 day(s) ago
- Updated:November 15, 2025 at 04:35 PM
Rooms and interior
- Bedrooms:4
- Total bathrooms:2
- Full bathrooms:2
- Living area:2,164 sq. ft.
Heating and cooling
- Cooling:Central Air
Structure and exterior
- Year built:2025
- Building area:2,164 sq. ft.
- Lot area:0.15 Acres
Schools
- High school:Berkeley
- Middle school:Berkeley
- Elementary school:Whitesville
Utilities
- Water:Public
- Sewer:Public Sewer
Finances and disclosures
- Price:$403,540
- Price per sq. ft.:$186.48
New listings near 450 Tulip Poplar Drive
- New
$99,900Active0.91 Acres560 Farrell Street, Moncks Corner, SC 29461
MLS# 25030375Listed by: WEICHERT, REALTORS PALM REALTY GROUP - New
$329,000Active4 beds 2 baths2,432 sq. ft.120 Triple E Trail, Moncks Corner, SC 29461
MLS# 25030384Listed by: KELLER WILLIAMS REALTY CHARLESTON - New
$399,000Active4 beds 3 baths2,427 sq. ft.117 Forest Springs Road, Moncks Corner, SC 29461
MLS# 25030344Listed by: RE/MAX SOUTHERN SHORES - Open Sun, 1 to 3pmNew
$325,000Active3 beds 3 baths2,033 sq. ft.254 Oglethorpe Circle, Moncks Corner, SC 29461
MLS# 25030379Listed by: CAROLINA ONE REAL ESTATE - New
$428,900Active3 beds 2 baths1,828 sq. ft.1004 Striper Avenue, Moncks Corner, SC 29461
MLS# 25030171Listed by: CAROLINA ESTATES REALTY - New
$370,000Active4 beds 4 baths2,068 sq. ft.865 Recess Point Dr 25 Drive, Moncks Corner, SC 29461
MLS# 25030160Listed by: RE/MAX SOUTHERN SHORES - New
$315,000Active3 beds 3 baths2,016 sq. ft.478 Foxbank Plantation Boulevard, Moncks Corner, SC 29461
MLS# 25030154Listed by: KELLER WILLIAMS REALTY CHARLESTON
$372,300Pending3 beds 3 baths1,518 sq. ft.327 Blue Haw Drive, Moncks Corner, SC 29461
MLS# 25030114Listed by: D R HORTON INC- New
$275,000Active3 beds 2 baths2,176 sq. ft.335 Saint Johns Bethel Street, Moncks Corner, SC 29461
MLS# 25030070Listed by: REALTY ONE GROUP COASTAL - New
$349,500Active3 beds 3 baths1,822 sq. ft.463 Foxbank Plantation Boulevard, Moncks Corner, SC 29461
MLS# 25030009Listed by: AGENTOWNED REALTY