940 Titian Street, Moore, SC 29369
Local realty services provided by:ERA Wilder Realty
940 Titian Street,Moore, SC 29369
$323,990
- 4 Beds
- 3 Baths
- - sq. ft.
- Single family
- Active
Listed by: chelsea cathcart
Office: drb group south carolina, llc.
MLS#:1578396
Source:SC_GGAR
Price summary
- Price:$323,990
- Monthly HOA dues:$43.75
About this home
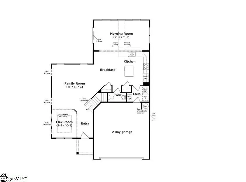
Proposed Construction Opportunity! Personalize this home by visiting our design center to pick colors and options. Price is base price before options are added. Welcome to Iris Meadows, where your dreams of summer fun and luxury living will come to life! Enjoy first-class amenities, including a community pool and relaxing cabana. Entering The Cameron from your 2 car garage or front porch, you have your amazing 2 story foyer with a flex room adjacent to the entry that could be used as a home office or additional living space. The entry way continues into your open kitchen and living area with large windows for lots of natural light. Customize your kitchen with features such as beautiful upgraded cabinetry, Quartz or granite countertops, tile backsplash, under cabinet lighting, center island and stainless steel appliances including a gas range and built in convection microwave. The kitchen opens up into the breakfast area and living room whiich can have a stone or side fireplace and leads to your back patio, covered or screened porch, or even a morning room. Upstairs is the spacious Primary Suite with double vanities, generous walk in closet and walk in shower with the options to have tiled or a Roman shower with double showerheads. Three more bedrooms and a full bath complete the upstairs. Smart home technology, energy-efficient construction, and a dedicated local warranty team ensure lasting convenience and comfort. Located in Moore, SC, Iris Meadows offers a pool, cabana, and craftsman-style homes. With easy access to I-26 and I-85, shopping, dining, and entertainment, and zoning for sought-after Spartanburg District 5 Schools, this community is the perfect place to call home. Come by today for more information and make Iris Meadows your new home. See Sales Agent for additional pricing information....
Contact an agent
Home facts
- Listing ID #:1578396
- Added:79 day(s) ago
- Updated:March 20, 2026 at 07:42 PM
Rooms and interior
- Bedrooms:4
- Total bathrooms:3
- Full bathrooms:2
- Half bathrooms:1
- Flooring:Carpet
- Kitchen Description:Dishwasher, Disposal, Microwave
Heating and cooling
- Cooling:Electric
- Heating:Natural Gas
Structure and exterior
- Roof:Architectural
- Lot area:0.16 Acres
- Lot Features:1/2 Acre or Less
- Architectural Style:Craftsman
- Construction Materials:Vinyl Siding
- Exterior Features:Front Porch, Patio, Rear Porch, Screened
- Foundation Description:Slab
- Levels:2 Story
Schools
- High school:James F. Byrnes
- Middle school:Florence Chapel
- Elementary school:River Ridge
Utilities
- Water:Public
- Sewer:Public Sewer
Finances and disclosures
- Price:$323,990
Features and amenities
- Appliances:Dishwasher, Gas Oven, Gas Water Heater, Microwave, Self Cleaning Oven
- Laundry features:1st Floor, Electric Dryer Hookup, Laundry Room, Walk-in
- Amenities:int_feat_2 Story Foyer, int_feat_Ceiling Smooth, int_feat_Countertops Quartz, int_feat_Granite Counters, int_feat_High Ceilings, int_feat_Open Floorplan, int_feat_Pantry, int_feat_Walk-In Closet(s)
- Pool features:Pool
- Smart home:Yes
Parking
- Total parking spaces:2
- Parking description:Attached, Garage Door Opener, Paved
- Garage:Yes
- Garage spaces:2
New listings near 940 Titian Street
- New
$229,900Active3 beds 2 bathsAddress Withheld By Seller, Moore, SC 29369
MLS# 1585892Listed by: LESLIE HORNE AND ASSOCIATES
$305,000Pending4 beds 2 baths220 N Hamlet Court, Moore, SC 29369
MLS# 1585825Listed by: EXP REALTY - CLEVER PEOPLE- Open Sun, 2 to 4pmNew
$375,000Active3 beds 3 baths402 Vestry Place, Moore, SC 29369
MLS# 1585823Listed by: KELLER WILLIAMS GRV UPST - Open Sun, 2 to 4pmNew
$345,000Active3 beds 2 baths619 Minster Court, Moore, SC 29369
MLS# 1585824Listed by: KELLER WILLIAMS GRV UPST
$305,000Pending4 beds 2 baths1,761 sq. ft.220 N Hamlet Court, Moore, SC 29369
MLS# 20298280Listed by: EXP REALTY - CLEVER PEOPLE- New
$320,000Active4 beds 3 baths815 Bayshore Lane, Moore, SC 29369
MLS# 1585783Listed by: RE/MAX EXECUTIVE - New
$398,840Active3 beds 3 baths1074 Tyger Branch Drive #Lot 149, Moore, SC 29369
MLS# 1585673Listed by: PULTE HOME COMPANY
$212,900Pending3 beds 3 baths2043 Hillman Way, Roebuck, SC 29376
MLS# 1585581Listed by: VERANDA HOMES, LLC
$279,900Active4 beds 2 baths462 Fenwick Drive, Woodruff, SC 29388
MLS# 1584864Listed by: ELLISON REAL ESTATE COMPANY, LLC- New
$189,369Active0.68 Acres618 Monfret Court, Moore, SC 29369
MLS# 1585386Listed by: HERLONG SOTHEBY'S INTERNATIONAL REALTY