1505 Crooked Hook Rd., North Myrtle Beach, SC 29582
Local realty services provided by:ERA Wilder Realty
1505 Crooked Hook Rd.,North Myrtle Beach, SC 29582
$639,775
- 3 Beds
- 3 Baths
- 3,025 sq. ft.
- Single family
- Active
Office: the beverly group
MLS#:2528062
Source:SC_CCAR
Price summary
- Price:$639,775
- Price per sq. ft.:$211.5
- Monthly HOA dues:$85
About this home
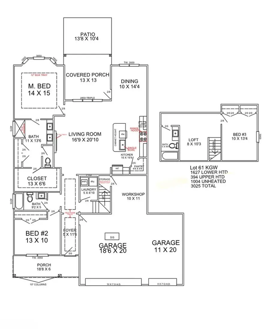
Under Construction! Welcome to the wonderful "Indigo" floor plan featuring 3 spacious bedrooms, 3 luxurious bathrooms, with a HUGE THREE-car garage + a workshop area, perfectly situated on a Large homesite in a prestigious Intracoastal Waterfront community in the heart of North Myrtle Beach & Just a Golf Cart ride to the Beach! Step into a bright and airy open-concept living space, thoughtfully designed with contemporary finishes and high-end fixtures throughout. The gourmet kitchen boasts state-of-the-art appliances, quartz countertops, a large center Island, natural gas range and ample cabinetry perfect for culinary adventures and entertaining guests. Relax in your luxurious main floor master suite, featuring a spacious bedroom, walk-in closet, and en-suite bathroom, with dual sinks and a gorgeous zero entry tiled shower. Located just moments away from renowned golf courses, shopping, and a variety of local dining options, every day brings a new adventure. Enjoy easy access to exciting attractions and entertainment, ensuring there's always something to explore. Public Beach Access, Central Park boasting basketball, tennis, pickleball courts, and more, as well as the NMB Aquatic and Fitness Center are all conveniently located less than 5 minutes away. Kingswood on the Waterway offers the perfect blend of relaxation and convenience. Don't miss out on this incredible opportunity to live in one of North Myrtle Beach's most desirable locations! Building lifestyles for over 40 years, we remain the premier home builder along the Grand Strand. We’re proud to be the 2021, 2022, 2023, and 2024 winners of both WMBF News’ and The Sun News Best Home Builder awards, and the 2025 winner of The Sun News Best Home Builder. 2023, 2024, 2025, & 2026 winners of the Myrtle Beach Herald's Best Residential Real Estate Developer award, and 2024, 2025, & 2026 winners of The Horry Independent’s Best Residential Real Estate Developer and Best New Home Builder award. We began and remain in the Grand Strand, and we want you to experience the local pride we build today and every day in Horry and Georgetown Counties...
Contact an agent
Home facts
- Year built:2026
- Listing ID #:2528062
- Added:125 day(s) ago
- Updated:March 28, 2026 at 02:02 PM
Rooms and interior
- Bedrooms:3
- Total bathrooms:3
- Full bathrooms:3
- Flooring:Carpet, Luxury Vinyl Plank
- Kitchen Description:Dishwasher, Disposal, Kitchen Island, Microwave, Range
- Bedroom Description:Split Bedrooms
- Living area:3,025 sq. ft.
Heating and cooling
- Cooling:Central Air
- Heating:Forced Air, Gas
- Central air:Yes
Structure and exterior
- Year built:2026
- Building area:3,025 sq. ft.
- Lot area:0.28 Acres
- Lot Features:Rectangular
- Architectural Style:Ranch
- Exterior Features:Front Porch, Patio, Porch, Rear Porch, Sprinkler Irrigation
- Foundation Description:Slab
- Levels:1 Story
Schools
- High school:North Myrtle Beach High School
- Middle school:North Myrtle Beach Middle School
- Elementary school:Ocean Drive Elementary
Utilities
- Water:Public, Water Available
- Sewer:Sewer Available
Finances and disclosures
- Price:$639,775
- Price per sq. ft.:$211.5
Features and amenities
- Laundry features:Washer Hookup
- Pool features:Community, Outdoor Pool
Parking
- Total parking spaces:6
- Parking description:Attached, Garage, Garage Door Opener, Three Car Garage
- Garage:Yes
- Garage spaces:3
New listings near 1505 Crooked Hook Rd.
- Open Sat, 11am to 1pmNew
$257,500Active2 beds 2 baths1,200 sq. ft.901 West Port Dr. #2111, North Myrtle Beach, SC 29582
MLS# 2608034Listed by: REALTY ONE GROUP DOCKSIDE - New
$850,000Active4 beds 3 baths2,889 sq. ft.502 Tradewind Court, North Myrtle Beach, SC 29582
MLS# 100563256Listed by: LANDMARK SOTHEBY'S INTERNATIONAL REALTY - New
$269,000Active1 beds 1 baths578 sq. ft.6100 Ocean Blvd. N #906, North Myrtle Beach, SC 29582
MLS# 2608009Listed by: TRACIE ROSS REAL ESTATE - New
$250,000Active1 beds 1 baths650 sq. ft.2801 S Ocean Blvd. #1534, North Myrtle Beach, SC 29582
MLS# 2607858Listed by: CB SEA COAST ADVANTAGE BLUEWATER - New
$739,000Active4 beds 3 baths2,176 sq. ft.1003 S Ocean Blvd. #607, North Myrtle Beach, SC 29582
MLS# 2607994Listed by: RE/MAX SOUTHERN SHORES - New
$869,575Active3 beds 3 baths1,862 sq. ft.100 North Beach Blvd. #315, North Myrtle Beach, SC 29582
MLS# 2607998Listed by: INNOVATE REAL ESTATE - New
$339,000Active2 beds 2 baths1,229 sq. ft.601 Hillside Dr. N #2645, North Myrtle Beach, SC 29582
MLS# 2607977Listed by: LORETTA REALTY GROUP - New
$249,900Active2 beds 2 baths1,200 sq. ft.5750 Oyster Catcher Dr. #722, North Myrtle Beach, SC 29582
MLS# 2607947Listed by: PALMETTO COASTAL HOMES - New
$499,000Active3 beds 2 baths1,875 sq. ft.5100 Weatherwood Dr., North Myrtle Beach, SC 29582
MLS# 2607948Listed by: REALTY ONE GROUP DOCKSIDE - New
$399,999Active2 beds 2 baths843 sq. ft.6302 N Ocean Boulevard # K3, North Myrtle Beach, SC 29582
MLS# 26008658Listed by: CAROLINA ONE REAL ESTATE