1036 Sanctum Street, Ridgeland, SC 29936
Local realty services provided by:ERA Southeast Coastal Real Estate
1036 Sanctum Street,Ridgeland, SC 29936
$405,990
- 5 Beds
- 3 Baths
- 2,361 sq. ft.
- Single family
- Pending
Listed by: mike caylor
Office: d r horton inc. (589)
MLS#:503209
Source:SC_HHMLS
Price summary
- Price:$405,990
- Price per sq. ft.:$171.96
About this home
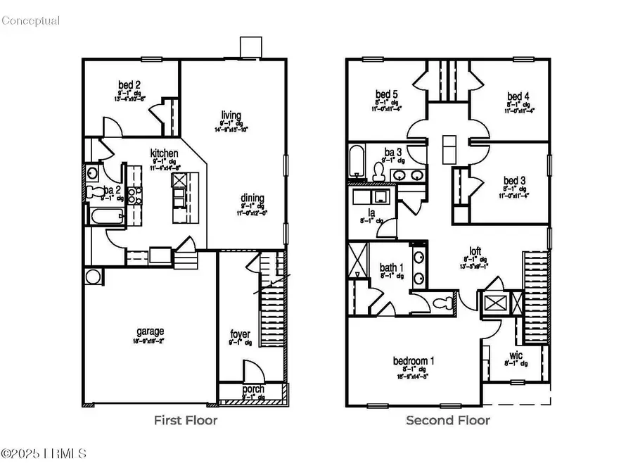
Introducing the Robie a thoughtfully designed 5-bedroom, 3-bath home with 2,361 square feet of flexible living space and a 2-car garage, perfect for families who crave both space and functionality. Located in The Retreat at East Argent, this plan is a fan favorite and for good reason. The first floor features a welcoming open layout anchored by a dream-worthy kitchen that's as practical as it is polished. With an abundance of cabinetry, sleek stainless-steel appliances, a large walk-in pantry, and a large island that doubles as a prep space and social hub, it's designed to keep pace with the busiest lifestyles. The adjoining dining and living areas make hosting a breeze, and the main-level bedroom and full bath provide the ideal setup for guests or a home office. Upstairs, the primary suite is a sanctuary, boasting a spacious walk-in closet, double vanity, linen closet and a large walk-in shower. A versatile loft offers extra room for work or play, while three additional bedrooms, a full hall bath, and a convenient upstairs laundry room check all the boxes for everyday ease. With Smart Home Technology, 2 faux wood blinds, benefits of natural gas and a design that adapts to your life, the Robie delivers the perfect blend of comfort, flexibility, and style. Home is under construction. Pictures, photographs, colors, features, & sizes are for illustration purposes only and will vary from the homes as built. The photos are Not of subject property. . More information on programs and options are available for this home. Model home hours Mon-Sat 10 am-5:30 pm & Sun 12 -5:30 pm
Contact an agent
Home facts
- Year built:2025
- Listing ID #:503209
- Added:3 day(s) ago
- Updated:December 12, 2025 at 08:40 AM
Rooms and interior
- Bedrooms:5
- Total bathrooms:3
- Full bathrooms:3
- Living area:2,361 sq. ft.
Heating and cooling
- Cooling:Central Air
- Heating:Gas
Structure and exterior
- Roof:Fiberglass
- Year built:2025
- Building area:2,361 sq. ft.
- Lot area:0.15 Acres
Finances and disclosures
- Price:$405,990
- Price per sq. ft.:$171.96
New listings near 1036 Sanctum Street
$79,900Active2.4 Acres5319 Tillman Road, Ridgeland, SC 29936
MLS# 192985Listed by: THE HOMESFINDER REALTY GROUP
$79,900Active2.4 Acres5351 Tillman Road, Ridgeland, SC 29936
MLS# 192986Listed by: THE HOMESFINDER REALTY GROUP- Open Sat, 10am to 5pmNew
$449,990Active5 beds 4 baths2,632 sq. ft.930 Sanctuary Drive, Ridgeland, SC 29936
MLS# 503258Listed by: D R HORTON INC. (589) - Open Sat, 10am to 5pmNew
$334,490Active3 beds 2 baths1,151 sq. ft.1145 Sanctum Street, Ridgeland, SC 29936
MLS# 503244Listed by: D R HORTON INC. (589) - New
$3,900,000Active6 beds 6 baths2,530 sq. ft.730 Taylor Mill Road, Ridgeland, SC 29936
MLS# 25032088Listed by: HOLCOMBE FAIR & LANE - New
$373,490Active5 beds 3 baths2,361 sq. ft.58 Bottom Board Court, Ridgeland, SC 29936
MLS# 503219Listed by: D R HORTON INC. (589)
$401,990Pending4 beds 3 baths2,203 sq. ft.1027 Sanctum Street, Ridgeland, SC 29936
MLS# 193702Listed by: D.R.HORTON
$352,490Pending4 beds 2 baths1,482 sq. ft.1006 Sanctum Street, Ridgeland, SC 29936
MLS# 503203Listed by: D R HORTON INC. (589)- New
$235,000Active2 beds 1 baths1,010 sq. ft.718 Old House Road, Ridgeland, SC 29936
MLS# 193696Listed by: LEGACY REALTY OF THE LOWCOUNTR - New
$401,990Active4 beds 3 baths2,203 sq. ft.1323 Sanctum Street, Ridgeland, SC 29936
MLS# 503138Listed by: D R HORTON INC. (589)