512 E Parima Avenue, Spartanburg, SC 29301
Local realty services provided by:ERA Live Moore
512 E Parima Avenue,Spartanburg, SC 29301
$209,990
- 3 Beds
- 3 Baths
- - sq. ft.
- Townhouse
- Active
Listed by: chelsea cathcart
Office: drb group south carolina, llc.
MLS#:1573647
Source:SC_GGAR
Price summary
- Price:$209,990
- Monthly HOA dues:$145
About this home
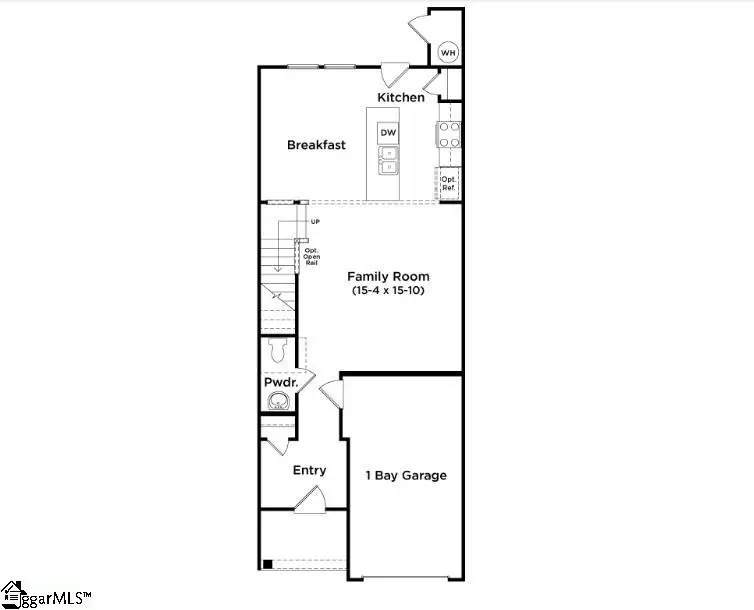
Proposed Construction Opportunity! Customize the home by visiting the design center to pick colors and options. Price listed is before options are added. Discover new townhomes in Spartanburg, SC at El Dorado! Ideally situated less than 10 minutes from vibrant Downtown Spartanburg. Welcome Home! Step inside this beautifully designed home featuring an open-concept layout, perfect for everyday living and entertaining. The heart of the home is the stunning kitchen with a 9-foot center island, seamlessly flowing into the bright family room and cozy breakfast area—ideal for gatherings or quiet mornings. Other features of the kitchen include dark cabinets, granite countertops and stainless steel electric appliances. Upstairs you’ll find three generously sized bedrooms, two full bathrooms, and a convenient laundry room. The spacious Primary suite offers a large walk-in closet and a private bath with dual vanities for a touch of luxury. Exterior highlights include outside storage, a 1-car garage, and a two-car parking pad. Enjoy the luxury of convenient living at El Dorado. Just minutes away from Costco, Target, Walmart, Sam's Club, and more! Dine at Spartanburg's classics, such as the Beacon Drive-In and Cribb's Kitchen only two miles away! Explore the beautiful campuses of nearby Wofford College, Converse University, and University of South Carolina Upstate. Conveniently located to a plethora of nearby parks, bike trails, and dog parks! Ready to travel? Enjoy a quick 20 minute drive to Greenville-Spartanburg International Airport! Plus, commuting is a breeze with I-26 just one mile away and I-85 only 10 minutes from your doorstep, making nearby Greenville easily within reach. Come by for more information and make El Dorado your new home! See Sales Agent for additional pricing information.
Contact an agent
Home facts
- Listing ID #:1573647
- Added:47 day(s) ago
- Updated:December 16, 2025 at 02:13 PM
Rooms and interior
- Bedrooms:3
- Total bathrooms:3
- Full bathrooms:2
- Half bathrooms:1
Heating and cooling
- Cooling:Electric
- Heating:Natural Gas
Structure and exterior
- Roof:Architectural
- Lot area:0.04 Acres
Schools
- High school:Dorman
- Middle school:RP Dawkins
- Elementary school:Woodland Heights
Utilities
- Water:Public
- Sewer:Public Sewer
Finances and disclosures
- Price:$209,990
New listings near 512 E Parima Avenue
- New
$425,000Active4 beds 3 baths2,659 sq. ft.236 Heathwood Drive, Spartanburg, SC 29307
MLS# 20295592Listed by: REAL BROKER, LLC - New
$279,108Active3 beds 2 baths108 Floy Street, Spartanburg, SC 29301
MLS# 1577336Listed by: ALLEN TATE COMPANY - GREER - New
$150,000Active3 beds 2 baths16 Heritage Court, Spartanburg, SC 29307
MLS# 1577338Listed by: AGAPE REAL ESTATE SOLUTIONS - New
$199,900Active3 beds 1 baths279 Pioneer Place, Spartanburg, SC 29301
MLS# 1577339Listed by: EXP REALTY, LLC
$229,990Pending3 beds 3 baths545 W Norvell Court, Spartanburg, SC 29307
MLS# 1577320Listed by: DRB GROUP SOUTH CAROLINA, LLC- New
$199,979Active3 beds 2 baths306 Spruce Street, Spartanburg, SC 29303-3936
MLS# 1577323Listed by: SPARTAN REALTY INC. - New
$382,980Active4 beds 3 baths1349 Willow Ridge Way, Spartanburg, SC 29307
MLS# 1577313Listed by: PULTE REALTY OF GEORGIA INC - New
$414,330Active5 beds 3 baths1030 Whitefox Drive, Spartanburg, SC 29307
MLS# 1577317Listed by: PULTE REALTY OF GEORGIA INC
$387,990Pending3 beds 4 baths392 Florence Street, Spartanburg, SC 29303
MLS# 1577298Listed by: DRB GROUP SOUTH CAROLINA, LLC
$455,990Pending3 beds 3 baths348 Florence Street, Spartanburg, SC 29303
MLS# 1577304Listed by: DRB GROUP SOUTH CAROLINA, LLC