17 Spring Pine Court, Saint Andrews, SC 29212
Local realty services provided by:ERA Wilder Realty
Listed by:jeremy gould
Office:lennar carolinas llc.
MLS#:619462
Source:SC_CML
Price summary
- Price:$226,999
- Price per sq. ft.:$152.86
About this home
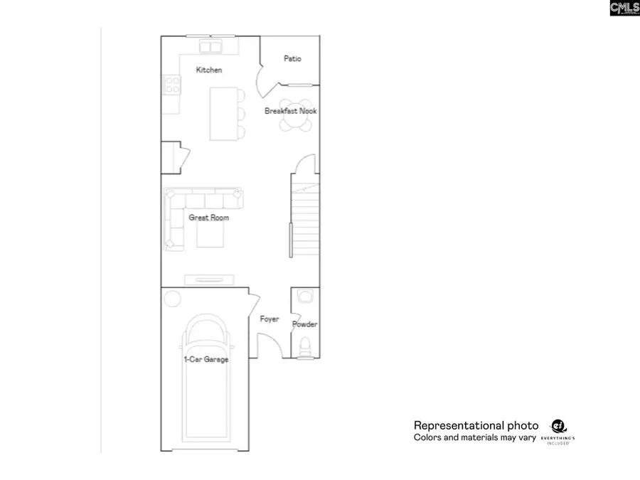
Sold before listed for comp purposes only! Discover the Cedar Plan at The Point at Chestnut Hills Place—a stunning new construction 3-bedroom, 2.5-bath home designed for those who appreciate both modern living and natural surroundings. Located in a brand-new community nestled within an established neighborhood near Columbia and Irmo, SC, this home offers the perfect balance of convenience, comfort, and outdoor access. Ideal for commuters and nature lovers alike, this home is just 20 minutes from downtown Columbia and close to Riverbanks Zoo, River Walk Park, shopping, dining, and more. The surrounding community features nearby river access, boat ramps, fishing spots, hiking trails, and seasonal events, providing endless recreational opportunities. Inside, the home showcases a modern design with wood-inspired vinyl plank flooring throughout the main floor. The open-concept kitchen features elegant quartz countertops, a spacious center island, and stainless steel appliances, including a gas stove, microwave, and dishwasher. The thoughtful layout places all three bedrooms on the second floor for enhanced privacy. The owner’s suite easily accommodates a king-size bed and includes a double vanity, walk-in shower, and full walk-in closet. Two additional bedrooms share a full bathroom, featuring flexible space for guests, family, or a home office.Additional features include a covered patio for outdoor enjoyment, energy-efficient construction, and low-maintenance living with HOA dues currently estimated and under review. Details like oak stained handrail and iron rails at the first floor, recessed lighting and gutters are some of the amazing included features included in your new home! This home will be move-in ready by August 2025. Don't miss your chance to enjoy all the features and amenities, like swimming, pickleball, trails and more that The Point at Chestnut Hills Place features. Disclaimer: CMLS has not reviewed and, therefore, does not endorse vendors who may appear in listings.
Contact an agent
Home facts
- Year built:2025
- Listing ID #:619462
- Added:4 day(s) ago
- Updated:October 18, 2025 at 07:21 AM
Rooms and interior
- Bedrooms:3
- Total bathrooms:3
- Full bathrooms:2
- Half bathrooms:1
- Living area:1,485 sq. ft.
Heating and cooling
- Cooling:Central
- Heating:Gas 1st Lvl, Gas 2nd Lvl
Structure and exterior
- Year built:2025
- Building area:1,485 sq. ft.
- Lot area:0.06 Acres
Schools
- High school:Dutch Fork
- Middle school:Dutch Fork
- Elementary school:Oak Pointe
Utilities
- Water:Public
- Sewer:Public
Finances and disclosures
- Price:$226,999
- Price per sq. ft.:$152.86
New listings near 17 Spring Pine Court
- $208,999Pending3 beds 3 baths1,475 sq. ft.
11 Spring Pine Court, Columbia, SC 29053
MLS# 619808Listed by: LENNAR CAROLINAS LLC - New$99,500Active2 beds 2 baths1,348 sq. ft.
1003 Creekside Way #803, Columbia, SC 29210
MLS# 619760Listed by: LEWIS LAND & REALTY SERVICES LLC - New$175,000Active2 beds 2 baths1,134 sq. ft.
137 Manorwood Court #D, Columbia, SC 29212
MLS# 619674Listed by: KELLER WILLIAMS REALTY - New$245,000Active3 beds 2 baths1,790 sq. ft.
112 Gateway Lane, Columbia, SC 29210
MLS# 619523Listed by: EPIQUE REALTY - New$199,000Active3 beds 2 baths1,241 sq. ft.
2116 Chandler Avenue, Columbia, SC 29210
MLS# 619444Listed by: THE FOWLER COMPANY - New$73,000Active2 beds 2 baths957 sq. ft.
1720 Grays Inn Road, Columbia, SC 29210
MLS# 619387Listed by: ASSET REALTY ELITE LLC - New$85,000Active1 beds 1 baths1,000 sq. ft.
6001 Village Creek Drive, Columbia, SC 29210
MLS# 619343Listed by: COLDWELL BANKER REALTY - $190,000Pending3 beds 3 baths1,428 sq. ft.
701 Wild Duck Lane #96, Columbia, SC 29210
MLS# 619195Listed by: MCGUINN HOMES LLC - Open Sat, 12 to 2pmNew$150,000Active3 beds 3 baths1,288 sq. ft.
1117 Piney Woods Road #3A, Columbia, SC 29210
MLS# 619197Listed by: KELLER WILLIAMS PREFERRED