317 Eclipse Street, Summerville, SC 29486
Local realty services provided by:ERA Wilder Realty
Listed by: melodie smith
Office: exp realty llc.
MLS#:25031638
Source:SC_CTAR
317 Eclipse Street,Summerville, SC 29486
$430,000
- 3 Beds
- 3 Baths
- 1,602 sq. ft.
- Single family
- Active
Price summary
- Price:$430,000
- Price per sq. ft.:$268.41
About this home
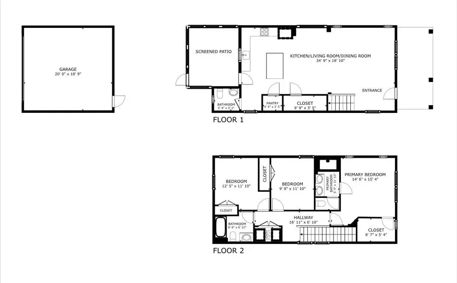
Welcome to this beautifully maintained less-than-two-year-old Lindenberry home in the heart of Nexton Midtown--where modern design, unbeatable convenience, and turnkey upgrades come together in one perfect package. Skip the hassle, the delays, extra expenses, and large deposits that come with new construction. This home is truly move-in ready and offers exceptional value in one of Charleston's most sought-after communities.Inside, the home features a bright, open layout with timeless white-and-gray finishes throughout. The kitchen is the center of daily life, complete with a large island ideal for coffee, meal prep, and entertaining. It flows seamlessly into the dining area and family room, creating an inviting space perfect for gatherings. The extended screened porchjust off the kitchen area adds extra room to relax and unwind.
Upstairs, the Owner's Retreat is flooded with natural light and privately positioned at the front of the home. Two additional bedrooms offer flexibility for guests, kids, hobbies, or office space. Laundry is conveniently located upstairs as well.
Unlike new construction, this home already includes the essentialand costlyfeatures buyers always wish came standard:
Full wooden privacy fence
High-quality refrigerator
Brand-new washer & dryer
Custom blinds throughout
Ring doorbell
Fully established yard
These upgrades easily save a buyer $20,000+, making this home an incredible value compared to nearby new-build options.
Located on a quieter street away from the busier main roads, this home offers both privacy and walkability. You're just a short stroll from the Midtown Club, where you'll enjoy resort-style amenities including a pool, fitness center, tennis and pickleball courts, basketball, playgrounds, parks, and community event space. Endless walking and biking paths connect you to nearby retail, dining, medical offices, schools, and the soon-to-open Publix and brand-new Harris Teeter. With quick access to I-26, commutes to Boeing, Volvo, the airport, and Downtown Charleston are a breeze.
With its fresh interior, incredible convenience, and thousands in built-in upgrades, this like-new home offers the perfect blend of comfort, style, and value. Experience why this resale option is truly better than new constructionand schedule your showing today.
Contact an agent
Home facts
- Year built:2023
- Listing ID #:25031638
- Added:8 day(s) ago
- Updated:December 05, 2025 at 03:29 PM
Rooms and interior
- Bedrooms:3
- Total bathrooms:3
- Full bathrooms:2
- Half bathrooms:1
- Living area:1,602 sq. ft.
Heating and cooling
- Cooling:Central Air
- Heating:Forced Air
Structure and exterior
- Year built:2023
- Building area:1,602 sq. ft.
- Lot area:0.09 Acres
Schools
- High school:Cane Bay High School
- Middle school:Sangaree
- Elementary school:Nexton Elementary
Utilities
- Water:Public
- Sewer:Public Sewer
Finances and disclosures
- Price:$430,000
- Price per sq. ft.:$268.41
New listings near 317 Eclipse Street
- Open Sat, 12 to 3pmNew
$325,000Active3 beds 2 baths1,204 sq. ft.9711 Stockport Circle, Summerville, SC 29485
MLS# 25032227Listed by: JEFF COOK REAL ESTATE LPT REALTY - New
$355,000Active4 beds 2 baths1,600 sq. ft.103 Clubhouse Road, Summerville, SC 29483
MLS# 25032222Listed by: AGENTOWNED REALTY - New
$384,000Active4 beds 2 baths2,024 sq. ft.732 Gahagan Road, Summerville, SC 29485
MLS# 25032219Listed by: COLE & ASSOCIATES INC. - New
$496,815Active4 beds 4 baths3,556 sq. ft.502 Cropfield Drive, Summerville, SC 29485
MLS# 25032212Listed by: LENNAR SALES CORP.
$445,000Pending3 beds 2 baths1,715 sq. ft.125 Norses Bay Court, Summerville, SC 29486
MLS# 25032195Listed by: LENNAR SALES CORP.- New
$344,105Active3 beds 2 baths1,492 sq. ft.149 Norses Bay Court, Summerville, SC 29486
MLS# 25032196Listed by: LENNAR SALES CORP. - New
$456,780Active3 beds 2 baths1,921 sq. ft.123 Norses Bay Court, Summerville, SC 29486
MLS# 25032197Listed by: LENNAR SALES CORP. - New
$365,000Active4 beds 2 baths2,160 sq. ft.411 Navaho Circle, Summerville, SC 29483
MLS# 25032203Listed by: MATT O'NEILL REAL ESTATE - New
$365,645Active3 beds 2 baths1,430 sq. ft.1073 Red Turnstone Run, Summerville, SC 29485
MLS# 25032183Listed by: LENNAR SALES CORP. - New
$403,630Active4 beds 3 baths1,997 sq. ft.1069 Red Turnstone Run, Summerville, SC 29485
MLS# 25032186Listed by: LENNAR SALES CORP.