10 Stoneview Way, Taylors, SC 29687
Local realty services provided by:ERA Wilder Realty
10 Stoneview Way,Taylors, SC 29687
$244,070
- 3 Beds
- 3 Baths
- - sq. ft.
- Condominium
- Active
Listed by:stephanie poole
Office:veranda homes, llc.
MLS#:1572862
Source:SC_GGAR
Price summary
- Price:$244,070
- Monthly HOA dues:$280
About this home
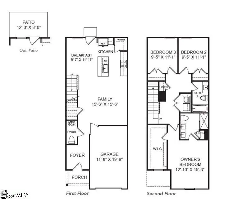
Welcome to Cottage Corners – Your Perfect Blend of Comfort & Convenience! Discover this beautiful 2-story luxury townhome in the charming Cottage Corners community. Designed with an open-concept floor plan, this home offers 3 spacious bedrooms, 2.5 bathrooms, and bright living areas that make everyday living both comfortable and stylish. The heart of the home is the chef-inspired kitchen, featuring quartz countertops, a center island for gatherings, and plenty of cabinet space. Enjoy cooking and entertaining in a space that flows seamlessly into the dining and living areas, highlighted by luxury plank flooring throughout the main level. Step outside to your private rear patio, complete with side privacy fencing – perfect for morning coffee, summer grilling, or relaxing evenings. The primary suite is a true retreat, offering a spa-like bath with dual vanities, glass shower, and a generous walk-in closet with space for everything (yes, even a king-sized bed and multiple dressers!). Additional features include: Stone & vinyl exteriors for timeless curb appeal Hard surface flooring throughout main living spaces Convenient location off Old Rutherford Rd, close to shopping, dining, schools, and major highways for easy commuting. Cottage Corners combines modern style with everyday convenience in a warm, welcoming neighborhood. Don’t miss the chance to make this beautiful townhome your new home – schedule your tour today!
Contact an agent
Home facts
- Year built:2025
- Listing ID #:1572862
- Added:4 day(s) ago
- Updated:October 27, 2025 at 12:12 PM
Rooms and interior
- Bedrooms:3
- Total bathrooms:3
- Full bathrooms:2
- Half bathrooms:1
Heating and cooling
- Cooling:Electric
- Heating:Electric, Heat Pump
Structure and exterior
- Roof:Architectural
- Year built:2025
- Lot area:0.06 Acres
Schools
- High school:Blue Ridge
- Middle school:Blue Ridge
- Elementary school:Skyland
Utilities
- Water:Public
- Sewer:Public Sewer
Finances and disclosures
- Price:$244,070
New listings near 10 Stoneview Way
- New
$272,000Active3 beds 2 baths33 Michell Drive, Taylors, SC 29687
MLS# 1573216Listed by: REALTY ONE GROUP FREEDOM - New
$405,000Active3 beds 3 baths8 Tall Tree Lane, Taylors, SC 29687
MLS# 1573218Listed by: BHHS C DAN JOYNER - MIDTOWN - New
$174,900Active1 beds 1 baths713 Memphis Road, Taylors, SC 29687
MLS# 1573212Listed by: ALPINE REAL ESTATE - New
$399,900Active3 beds 4 baths28 Bernwood Drive, Taylors, SC 29687
MLS# 1573201Listed by: KELLER WILLIAMS GRV UPST - New
$260,000Active3 beds 2 baths203 Charing Cross Road, Taylors, SC 29687
MLS# 1573186Listed by: AGENT GROUP REALTY - GREENVILLE - New
$348,000Active4 beds 3 baths5 Edwards Mill Court, Taylors, SC 29687
MLS# 1573165Listed by: COLDWELL BANKER CAINE/WILLIAMS
$249,570Pending3 beds 3 baths121 Stoneview Way, Taylors, SC 29687
MLS# 1573167Listed by: VERANDA HOMES, LLC- New
$415,000Active3 beds 3 baths212 Trent Drive, Taylors, SC 29687
MLS# 1573142Listed by: KELLER WILLIAMS DRIVE - New
$189,900Active2 beds 2 baths150 Shady Tree Drive, Taylors, SC 29687-4194
MLS# 1573129Listed by: BHHS C DAN JOYNER - SPTBG - New
$299,000Active3 beds 2 baths406 Crescentwood Court, Taylors, SC 29687
MLS# 1573130Listed by: KELLER WILLIAMS GRV UPST