12 Stoneview Way, Taylors, SC 29687
Local realty services provided by:ERA Live Moore
12 Stoneview Way,Taylors, SC 29687
$220,945
- 3 Beds
- 3 Baths
- - sq. ft.
- Condominium
- Sold
Listed by: stephanie poole
Office: veranda homes, llc.
MLS#:1572865
Source:SC_GGAR
Sorry, we are unable to map this address
Price summary
- Price:$220,945
- Monthly HOA dues:$280
About this home
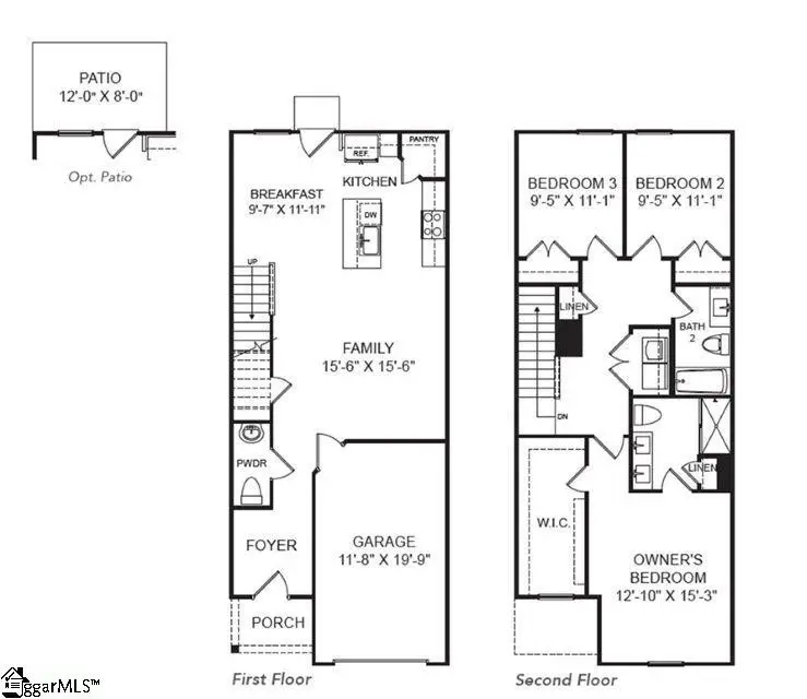
Welcome to Cottage Corners – Your Perfect Blend of Comfort & Convenience! Discover this beautiful 2-story luxury townhome in the charming Cottage Corners community. Designed with an open-concept floor plan, this home offers 3 spacious bedrooms, 2.5 bathrooms, and bright living areas that make everyday living both comfortable and stylish. The heart of the home is the chef-inspired kitchen, featuring quartz countertops, a center island for gatherings, and plenty of cabinet space. Enjoy cooking and entertaining in a space that flows seamlessly into the dining and living areas, highlighted by luxury plank flooring throughout the main level. Step outside to your private rear patio, complete with side privacy fencing – perfect for morning coffee, summer grilling, or relaxing evenings. The primary suite is a true retreat, offering a spa-like bath with dual vanities, glass shower, and a generous walk-in closet with space for everything (yes, even a king-sized bed and multiple dressers!). Additional features include: Stone & vinyl exteriors for timeless curb appeal Hard surface flooring throughout main living spaces Convenient location off Old Rutherford Rd, close to shopping, dining, schools, and major highways for easy commuting. Cottage Corners combines modern style with everyday convenience in a warm, welcoming neighborhood. Don’t miss the chance to make this beautiful townhome your new home – schedule your tour today!...
Contact an agent
Home facts
- Year built:2025
- Listing ID #:1572865
- Added:160 day(s) ago
- Updated:March 31, 2026 at 04:44 PM
Rooms and interior
- Bedrooms:3
- Total bathrooms:3
- Full bathrooms:2
- Half bathrooms:1
- Flooring:Carpet, Vinyl
- Kitchen Description:Dishwasher, Disposal, Microwave, Refrigerator
Heating and cooling
- Cooling:Electric
- Heating:Electric, Heat Pump
Structure and exterior
- Roof:Architectural
- Year built:2025
- Architectural Style:Craftsman
- Construction Materials:Stone, Vinyl Siding
- Exterior Features:Front Porch, Patio
- Foundation Description:Slab
- Levels:2 Story
Schools
- High school:Blue Ridge
- Middle school:Blue Ridge
- Elementary school:Skyland
Utilities
- Water:Public
- Sewer:Public Sewer
Finances and disclosures
- Price:$220,945
Features and amenities
- Appliances:Dishwasher, Electric Water Heater, Free-Standing Electric Range, Microwave, Refrigerator
- Laundry features:2nd Floor, Electric Dryer Hookup, Laundry Closet, Laundry Room, Washer Hookup
- Amenities:int_feat_Ceiling Fan(s), int_feat_Ceiling Smooth, int_feat_Countertops Quartz, int_feat_Countertops-Solid Surface, int_feat_High Ceilings, int_feat_Open Floorplan, int_feat_Pantry
Parking
- Total parking spaces:1
- Parking description:Attached, Concrete, Driveway, Garage Door Opener
- Garage:Yes
- Garage spaces:1
New listings near 12 Stoneview Way
- New
$450,000Active4 beds 3 baths20 E Indian Trail, Taylors, SC 29687
MLS# 1586454Listed by: NORTHGROUP REAL ESTATE - New
$475,000Active4 beds 3 baths22 E. Indian Trail, Taylors, SC 29687
MLS# 1586385Listed by: CASEY GROUP REAL ESTATE, LLC - New
$309,900Active3 beds 2 baths120 Bur Oak Drive, Taylors, SC 29687
MLS# 1586376Listed by: MONTGOMERY REALTY GROUP, LLC - New
$232,900Active2 beds 1 baths3 Broad Vista Boulevard, Taylors, SC 29687
MLS# 1586372Listed by: HOWARD HANNA ALLEN TATE CO. - GREENVILLE DOWNTOWN - New
$72,000Active0.44 Acres102 Pine Drive, Taylors, SC 29687
MLS# 1586348Listed by: REALTY ONE GROUP FREEDOM
$355,000Pending3 beds 2 baths301 Havenhurst Drive, Taylors, SC 29687
MLS# 1586282Listed by: BLUEFIELD REALTY GROUP- New
$665,000Active3 beds 2 baths250 Thompson Road, Taylors, SC 29687
MLS# 1586162Listed by: REDFIN CORPORATION - New
$399,500Active3 beds 2 baths6 Dolerite Drive, Taylors, SC 29687
MLS# 1586132Listed by: BLACKSTREAM INTERNATIONAL RE
$925,000Pending4 beds 4 baths329 Thompson Road, Taylors, SC 29687
MLS# 1586133Listed by: EXP REALTY LLC- New
$415,000Active3 beds 3 baths104 Wappoo Lane, Taylors, SC 29687
MLS# 1586096Listed by: KELLER WILLIAMS DRIVE