2700 Tucker Rd, Nashville, TN 37218

Local realty services provided by:Reliant Realty ERA Powered
2700 Tucker Rd,Nashville, TN 37218
$950,000
  • 0.82 Acres
  • Lots / Land
  • Active
Listed by: josh mcdonald
Office: exp realty
MLS#:3129446
Source:NASHVILLE

Price summary

  • Price:$950,000

About this home

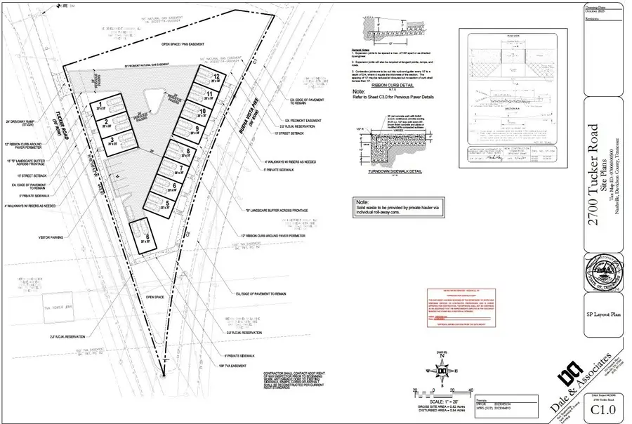
Fantastic corner Commercial Development Site for sale. Near Full 1-Acre Commercial-CL off booming W Trinity Ln Main Corridor. Approved and Shovel Ready for a 12-Unit STR EligibleTownhome Development, complete with Full Plans, Renders and Full Architecture included in sale! Existing Bar / Restaurant Building and Residential Rental Home on site - combined 3500 sq ft of space - that can be rehabbed or refitted for your commercial needs. Perfect for Developer looking for next ready to go shovel ready project; Buy and Hold Investor, Section 1031 Exchange; Investor looking for new commercial space or land with tons of flexibility and possibilities. Only 8-minutes from Downtown; the new Oracle Development; minutes from Germantown; East Nashville; West Nashville. All utilities at the street - Water, Gas, Electric - and ready to go. Flat site, minimal grading. Excellent site and location. Tons of options and possibilities. All Diligence and Materials available for review. Reach out to Agent...

Contact an agent

contact an agent

Yes, I would like more information. Please use and/or share my information with an ERA®  affiliated agent to contact me about my real estate needs. By clicking Send message, I request to be contacted by phone or text message and consent to being contacted by automated means. I understand that my consent to receive calls or texts is not a condition of purchasing any property, goods, or services. Alternatively, I understand that I can access real estate services by email or I can contact the agent myself.

If an ERA®  affiliated agent is not available in the area where I need assistance, I agree to be contacted by a real estate agent affiliated with another brand owned or licensed by Anywhere Real Estate (BHGRE® , CENTURY 21® , Coldwell Banker® , Corcoran® , Sotheby's International Realty® ).
 I acknowledge that I have read and agree to theTerms of useandPrivacy notice

Home facts

  • Listing ID #:3129446
  • Added:44 day(s) ago
  • Updated:March 29, 2026 at 02:22 PM

Structure and exterior

  • Lot area:0.82 Acres
  • Lot Features:Level

Schools

  • High school:Whites Creek High
  • Middle school:Haynes Middle
  • Elementary school:Alex Green Elementary

Utilities

  • Water:Public, Water Available
  • Sewer:Public Sewer

Finances and disclosures

  • Price:$950,000
  • Tax amount:$4,028
MLS LogoCopyright 2026 Realtracs Mls. All rights reserved. Realtracs Mls provides content displayed here (“provided content”) on an “as is” basis and makes no representations or warranties regarding the provided content, including, but not limited to those of non-infringement, timeliness, accuracy, or completeness. Individuals and companies using information presented are responsible for verification and validation of information they utilize and present to their customers and clients. Realtracs Mls will not be liable for any damage or loss resulting from use of the provided content or the products available through Portals, IDX, VOW, and/or Syndication. Recipients of this information shall not resell, redistribute, reproduce, modify, or otherwise copy any portion thereof without the expressed written consent of Realtracs Mls.