2159 Serenity Ln, Arlington, TX 76015
Local realty services provided by:ERA Courtyard Real Estate
2159 Serenity Ln,Arlington, TX 76015
$349,990
- 4 Beds
- 3 Baths
- 1,750 sq. ft.
- Single family
- Pending
Listed by: kristapher haney512-868-1771
Office: keller williams realty lone st
MLS#:21099653
Source:GDAR
Price summary
- Price:$349,990
- Price per sq. ft.:$199.99
- Monthly HOA dues:$83.33
About this home
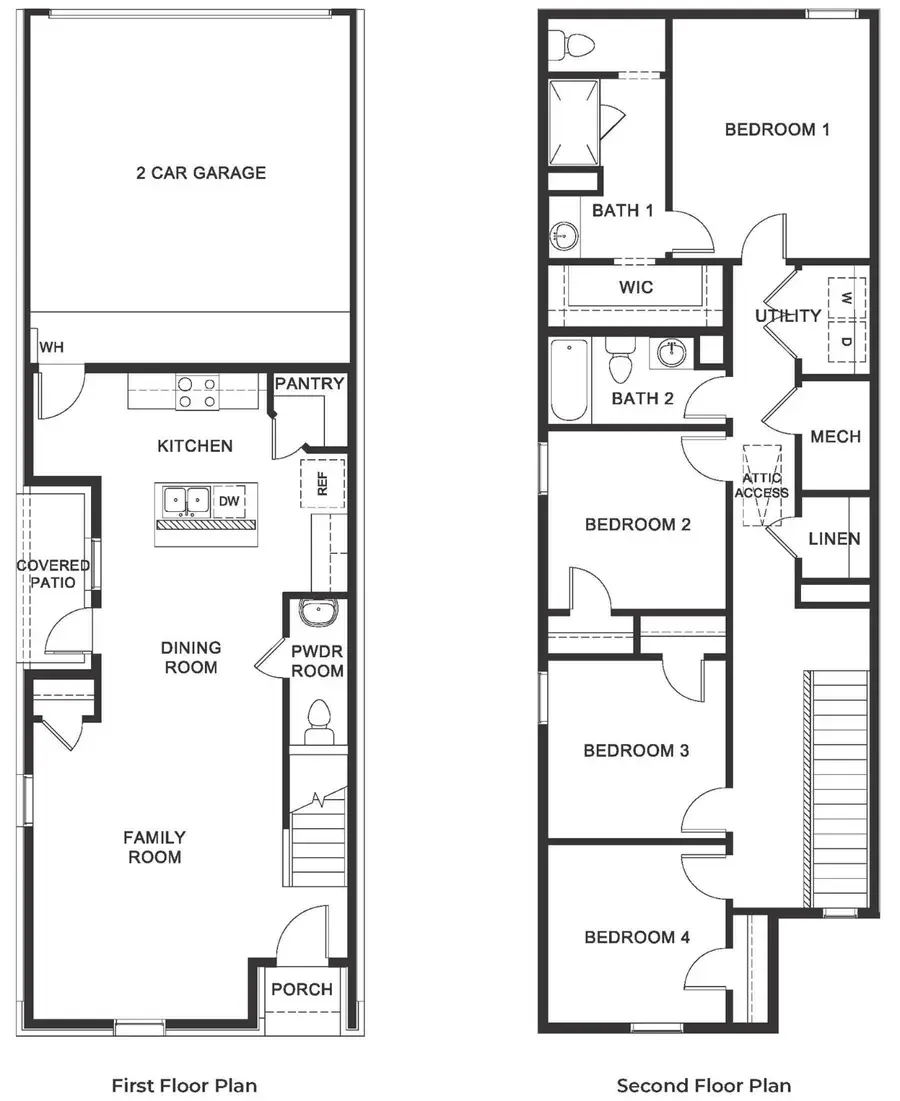
The Concord plan by D.R. Horton in the California Meadows community in Arlington, Texas, offers a modern and spacious two-story home with approximately 1,750 sq. ft. of living space. This home includes 4 bedrooms, 2.5 bathrooms, and a 2-car garage. A welcoming front porch and entry leading into an open-concept layout that seamlessly connects the dining, living, and kitchen areas, ideal for both family time and entertaining guests. A well-appointed kitchen featuring painted cabinetry, a generous walk-in pantry, quartz countertops, a large island, stainless steel appliances with gas cooking range. The dining room opens to a relaxing outdoor covered patio, providing a perfect space for outdoor enjoyment. A convenient powder bath located off the kitchen for guests' use. Vinyl flooring throughout the foyer, dining, kitchen, and family room, bathrooms, and utility room. Upstairs, the spacious Bedroom 1 suite provides a private retreat with quartz countertops, walk-in shower, a walk-in closet, and a private bathroom. Three additional bedrooms and a secondary bathroom provide ample space for family and guests. The laundry room is conveniently located upstairs. You’ll also enjoy smart home features, from your couch or from 500 miles away. You’ll never be too far from home with America’s smart home. The Concord plan offers a blend of comfort and style, ideal for families looking for a spacious home....
Contact an agent
Home facts
- Year built:2025
- Listing ID #:21099653
- Added:140 day(s) ago
- Updated:March 19, 2026 at 07:19 AM
Rooms and interior
- Bedrooms:4
- Total bathrooms:3
- Full bathrooms:2
- Half bathrooms:1
- Flooring:Carpet, Ceramic Tile, Laminate
- Kitchen Description:Dishwasher, Disposal, Gas Oven, Gas Range, Microwave, Vented Exhaust Fan, Water Purifier
- Living area:1,750 sq. ft.
Heating and cooling
- Cooling:Ceiling Fans, Electric, Heat Pump
- Heating:Heat Pump
Structure and exterior
- Roof:Composition
- Year built:2025
- Building area:1,750 sq. ft.
- Lot area:0.06 Acres
- Lot Features:Corner Lot, Interior Lot
- Architectural Style:Traditional
- Construction Materials:Brick, Fiber Cement, Stone
- Foundation Description:Slab
- Levels:2 Story
Schools
- High school:Arlington
- Elementary school:Short
Finances and disclosures
- Price:$349,990
- Price per sq. ft.:$199.99
Features and amenities
- Appliances:Dishwasher, Disposal, Gas Oven, Gas Range, Microwave, Tankless Water Heater, Vented Exhaust Fan, Water Purifier
- Amenities:Carbon Monoxide Detectors, Smoke Detectors
- Smart home:Yes
Parking
- Garage:Yes
- Garage spaces:2
New listings near 2159 Serenity Ln
- New
$359,900Active4 beds 2 baths2,079 sq. ft.703 Turnstone Drive, Arlington, TX 76018
MLS# 21212741Listed by: EXP REALTY - New
$275,500Active3 beds 2 baths1,660 sq. ft.1107 Waverly Drive, Arlington, TX 76015
MLS# 21212609Listed by: MODERN REALTY - New
$299,900Active3 beds 2 baths1,450 sq. ft.6622 Fairglen Drive, Arlington, TX 76002
MLS# 21192745Listed by: DEALMAKER REALTY - New
$385,000Active3 beds 3 baths2,198 sq. ft.1801 Old Oak Drive, Arlington, TX 76012
MLS# 21212440Listed by: VISTA REAL ESTATE GROUP-COMPAS - New
$279,900Active3 beds 2 baths1,363 sq. ft.5225 Livermore Drive, Arlington, TX 76017
MLS# 21212513Listed by: COLDWELL BANKER REALTY - New
$279,900Active3 beds 2 baths1,204 sq. ft.3808 Glengate Drive, Arlington, TX 76016
MLS# 21199869Listed by: VIP REALTY - New
$249,500Active3 beds 2 baths1,123 sq. ft.1605 E Lovers Lane, Arlington, TX 76010
MLS# 21211665Listed by: REALTY OF AMERICA, LLC - New
$220,000Active2 beds 2 baths2,182 sq. ft.604 Windgate Court, Arlington, TX 76012
MLS# 21209242Listed by: ELITE REAL ESTATE TEXAS - New
$285,000Active3 beds 3 baths2,052 sq. ft.1003 W Lovers Lane, Arlington, TX 76013
MLS# 21210865Listed by: KELLER WILLIAMS LONESTAR DFW - New
$425,000Active5 beds 3 baths3,609 sq. ft.523 Zachum Drive, Arlington, TX 76002
MLS# 21212040Listed by: LISTINGSPARK