1500 Ranger Road, Aubrey, TX 76227
Local realty services provided by:ERA Myers & Myers Realty
Upcoming open houses
- Sat, Feb 2802:00 pm - 04:00 pm
Listed by: joann tyler(940) 891-3229
Office: ebby halliday, realtors
MLS#:21179123
Source:GDAR
Price summary
- Price:$539,920
- Price per sq. ft.:$171.24
- Monthly HOA dues:$83.33
About this home
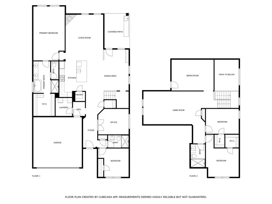
Fantastic corner lot home in the sought-after Sandbrock Ranch. One owner home with over $54k in upgrades. Featuring 4 large bedrooms, 3 full baths, separate office, media room and gameroom too! 1st floor primary suite with custom walk-in closet, dual sinks, separate vanities and garden tub. 2nd bedroom with full bath downstairs and 2 more bedrooms upstairs with another full bath plus game room and media with equipment to stay. Amazing kitchen with custom cabinets, light, bright and open to main living area. Backyard is amazing with outdoor kitchen perfect for those BBQs with family and friends. So much to mention about this amazing home. You should schedule to see it today, it is truly move-in ready as sellers have thought of everything.
Located in the growing suburb of Aubrey, Texas, the Sandbrock Ranch development offers a blend of modern design and family-friendly amenities. Residents enjoy easy access to nearby parks, shopping centers, and highly rated schools, while the neighborhood maintains a quiet, well-maintained atmosphere. The community features walking trails, a recreation center, and convenient routes to major highways, making daily commutes and weekend outings straightforward. Homes in this area are built with attention to detail, providing comfortable living spaces that cater to both relaxation and entertainment.
The property’s thoughtful upgrades and flexible layout make it well-suited for families, professionals, or anyone seeking a ready-to-move residence. With a spacious backyard designed for entertaining and a variety of indoor spaces for work and leisure, the home supports a balanced lifestyle. Interested parties are invited to arrange a private viewing to experience the comfort and quality firsthand.
Contact an agent
Home facts
- Year built:2020
- Listing ID #:21179123
- Added:1 day(s) ago
- Updated:February 19, 2026 at 09:47 PM
Rooms and interior
- Bedrooms:4
- Total bathrooms:3
- Full bathrooms:3
- Living area:3,153 sq. ft.
Heating and cooling
- Cooling:Central Air
- Heating:Central
Structure and exterior
- Roof:Composition
- Year built:2020
- Building area:3,153 sq. ft.
- Lot area:0.19 Acres
Schools
- High school:Ray Braswell
- Middle school:Pat Hagan Cheek
- Elementary school:Sandbrock Ranch
Finances and disclosures
- Price:$539,920
- Price per sq. ft.:$171.24
- Tax amount:$12,718
New listings near 1500 Ranger Road
$283,000Active3 beds 2 baths1,646 sq. ft.5928 Hopkins Drive, Aubrey, TX 76227
MLS# 21106956Listed by: STARCREST REALTY
$459,990Active4 beds 3 baths2,592 sq. ft.9304 Shadow Trail, Aubrey, TX 76227
MLS# 21133003Listed by: HISTORYMAKER HOMES
$290,000Active3 beds 2 baths1,453 sq. ft.1723 Barberry Hill Road, Aubrey, TX 76227
MLS# 21144207Listed by: MODERNEST REALTY LLC- New
$325,000Active5 beds 4 baths2,184 sq. ft.10110 Lakeview Drive, Aubrey, TX 76227
MLS# 21184669Listed by: DFW HOME - New
$475,000Active4 beds 3 baths2,288 sq. ft.1109 Marigold Street, Aubrey, TX 76227
MLS# 21184746Listed by: COLDWELL BANKER REALTY FRISCO
$389,990Pending4 beds 3 baths2,461 sq. ft.13125 Limestone Street, Aubrey, TX 76227
MLS# 21125540Listed by: ESCAPE REALTY- Open Sat, 1 to 3pmNew
$409,000Active4 beds 5 baths4,004 sq. ft.9032 Greene Drive, Aubrey, TX 76227
MLS# 21177003Listed by: LPT REALTY LLC - Open Sat, 12 to 2pmNew
$400,000Active4 beds 3 baths2,992 sq. ft.1437 Pleasant Knoll Trail, Aubrey, TX 76227
MLS# 21155966Listed by: EXP REALTY - New
$349,900Active4 beds 2 baths1,850 sq. ft.3303 Brady Starr Drive, Aubrey, TX 76227
MLS# 21182832Listed by: CENTURY 21 JUDGE FITE CO.