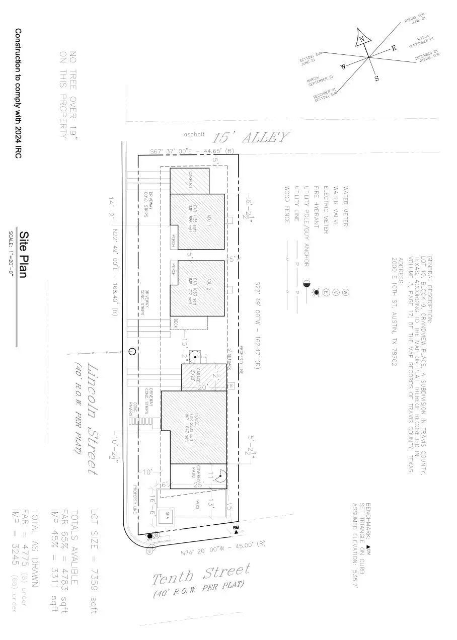
2000 E 10th St, Austin, TX 78702

Local realty services provided by:ERA Brokers Consolidated
Listed by: stephanie douglass
Office: open house austin group llc.
MLS#:8473550
Source:ACTRIS
2000 E 10th St,Austin, TX 78702
$500,000
  • 0 Acres
  • Lots / Land
  • Active

Price summary

  • Price:$500,000

About this home

*Multiple Offers Received - Offers Due by Monday 2/2 @ 5pm* Rare East Side development opportunity in one of the most walkable and in-demand pockets of East Central Austin. This corner lot offers alley access, skyline view potential, and a fully baked vision for a luxury primary residence with serious income upside with the ability to build 3 total structure. The existing structure is a teardown. Architectural plans for three homes are already completed, including a standout main residence with a pool and two additional units designed to generate long-term rental income or flexible multigenerational living. The site’s elevation and corner positioning unlock exceptional view corridors and natural light, while the alley access creates clean separation between the primary home and secondary units. The plans cater to today’s East Austin buyer: high design, privacy, and income potential all on one property. Located in a prime East Side pocket surrounded by restaurants, coffee shops,

Contact an agent

contact an agent

Yes, I would like more information. Please use and/or share my information with an ERA®  affiliated agent to contact me about my real estate needs. By clicking Send message, I request to be contacted by phone or text message and consent to being contacted by automated means. I understand that my consent to receive calls or texts is not a condition of purchasing any property, goods, or services. Alternatively, I understand that I can access real estate services by email or I can contact the agent myself.

If an ERA®  affiliated agent is not available in the area where I need assistance, I agree to be contacted by a real estate agent affiliated with another brand owned or licensed by Anywhere Real Estate (BHGRE® , CENTURY 21® , Coldwell Banker® , Corcoran® , Sotheby's International Realty® ).
 I acknowledge that I have read and agree to theTerms of useandPrivacy notice

Home facts

  • Listing ID #:8473550
  • Updated:February 02, 2026 at 05:39 PM

Schools

  • High school:Austin
  • Elementary school:Blackshear

Utilities

  • Water:Public
  • Sewer:Public Sewer

Finances and disclosures

  • Price:$500,000
  • Tax amount:$9,249 (2025)
Copyright 2026 UnLock MLS . All rights reserved. Listings courtesy of UnLock MLS as distributed by MLS GRID <Last Updated February 2, 2026. UnLock MLS provides content displayed here (“provided content”) on an “as is” basis and makes no representations or warranties regarding the provided content, including, but not limited to those of non-infringement, timeliness, accuracy, or completeness. Individuals and companies using information presented are responsible for verification and validation of information they utilize and present to their customers and clients. UnLock MLS will not be liable for any damage or loss resulting from use of the provided content or the products available through Portals, IDX, VOW, and/or Syndication. Recipients of this information shall not resell, redistribute, reproduce, modify, or otherwise copy any portion thereof without the expressed written consent of UnLock MLS.