1005 Inwood Court, Celina, TX 75009
Local realty services provided by:ERA Courtyard Real Estate
Upcoming open houses
- Sat, Apr 0410:00 am - 05:00 pm
Listed by: hunter dehn214-500-5222
Office: hunter dehn realty
MLS#:21141616
Source:GDAR
Price summary
- Price:$1,399,900
- Price per sq. ft.:$290.8
- Monthly HOA dues:$139
About this home
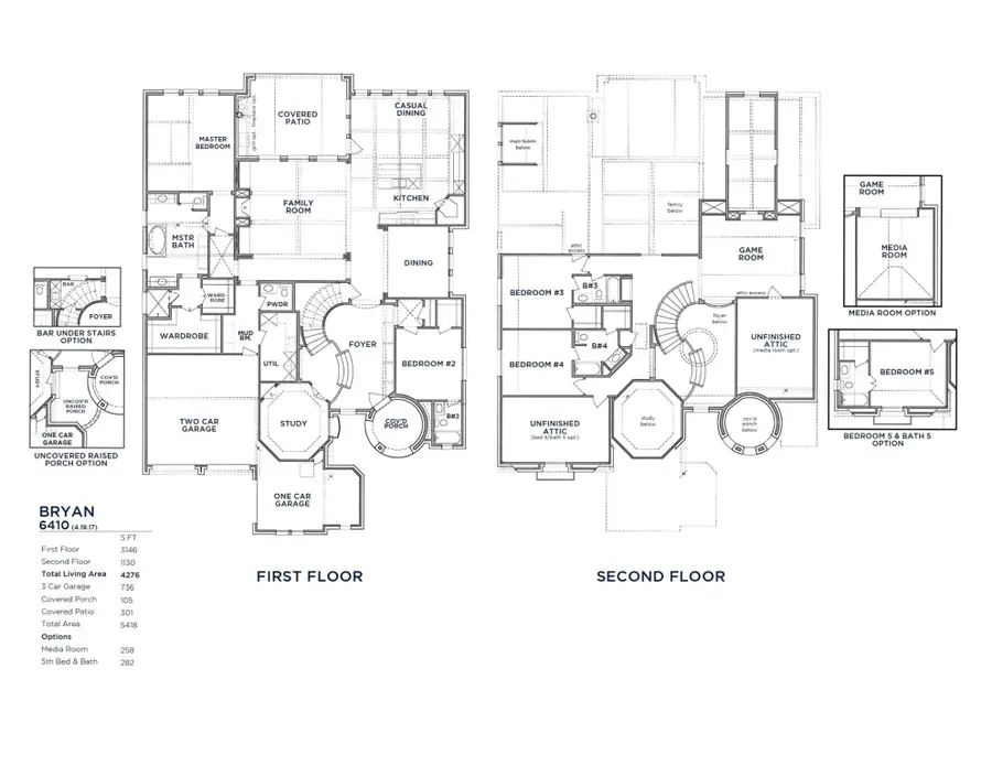
New Construction with gorgeous white brick on a greenbelt lot backing to trees in the highly sought after master planned community of Light Farms will not last long! Dramatic 2 story entry and staircase to include a second platform landing to the raised study. Open railing overlook into the family with a separate opening to the kitchen showcasing a gambrel ceiling from the cooktop to the casual dining wall of windows. Your gourmet kitchen comes with Calcutta Izaro Quartz, KitchenAid appliances and extensive custom cabinetry to the ceiling. The freestanding tub is focal in the spa inspired master bath with separate vanities, his and her walk-in closets, large linen closet and private shower. This is a brand-new design with showstopping 2 story windows along the rear elevation on a one-of-a-kind greenbelt treed lot. You are sure to fall in love with this open, livable home design on this 82’ wide site.
Contact an agent
Home facts
- Year built:2025
- Listing ID #:21141616
- Added:92 day(s) ago
- Updated:April 03, 2026 at 11:47 AM
Rooms and interior
- Bedrooms:5
- Total bathrooms:6
- Full bathrooms:5
- Half bathrooms:1
- Flooring:Carpet, Ceramic Tile, Wood
- Kitchen Description:Convection Oven, Dishwasher, Disposal, Double Oven, Gas Cooktop, Gas Oven, Microwave, Vented Exhaust Fan
- Living area:4,814 sq. ft.
Heating and cooling
- Cooling:Ceiling Fans, Central Air, Electric
- Heating:Central, Natural Gas
- Central air:Yes
Structure and exterior
- Roof:Composition
- Year built:2025
- Building area:4,814 sq. ft.
- Lot area:0.26 Acres
- Lot Features:Interior Lot, Landscaped, Sprinkler System, Subdivision
- Architectural Style:Traditional
- Construction Materials:Brick
- Foundation Description:Pillar Post Pier
- Levels:2 Story
Schools
- High school:Prosper
- Middle school:Reynolds
- Elementary school:Light Farms
Finances and disclosures
- Price:$1,399,900
- Price per sq. ft.:$290.8
Features and amenities
- Appliances:Convection Oven, Dishwasher, Disposal, Double Oven, Gas Cooktop, Gas Oven, Microwave, Tankless Water Heater, Vented Exhaust Fan
- Amenities:Air Purifier, Carbon Monoxide Detectors, Security Lights, Security Service, Security System, Smoke Detectors, Wireless
Parking
- Garage:Yes
- Garage spaces:3
New listings near 1005 Inwood Court
- Open Sat, 2 to 4pmNew
$499,000Active4 beds 3 baths2,777 sq. ft.1236 Stone Lane, Celina, TX 75009
MLS# 21226312Listed by: GAGE REALTY - Open Sat, 1 to 3pmNew
$860,000Active4 beds 4 baths3,679 sq. ft.1603 Lilac Lane, Celina, TX 75009
MLS# 21224549Listed by: KELLER WILLIAMS REALTY DPR - New
$433,750Active4 beds 3 baths2,450 sq. ft.1301 O'keefe Avenue, Celina, TX 75009
MLS# 21227917Listed by: WILLIAM ROBERDS - New
$350,000Active3 beds 2 baths1,873 sq. ft.431 Paddock Lane, Celina, TX 75009
MLS# 21226720Listed by: LOCAL REALTY AGENCY - New
$606,240Active4 beds 3 baths2,460 sq. ft.2224 Atlas Drive, Celina, TX 75009
MLS# 21227569Listed by: HIGHLAND HOMES REALTY - New
$461,830Active2 beds 2 baths1,760 sq. ft.4404 Bacall Avenue, Celina, TX 75009
MLS# 21227610Listed by: WILLIAM ROBERDS - New
$366,300Active2 beds 2 baths1,406 sq. ft.4417 Snead Street, Celina, TX 75009
MLS# 21227678Listed by: WILLIAM ROBERDS - New
$549,900Active4 beds 4 baths2,815 sq. ft.825 Glen Crossing Drive, Celina, TX 75009
MLS# 21226181Listed by: ONDEMAND REALTY - New
$654,090Active4 beds 4 baths3,003 sq. ft.1304 Periwinkle Drive, Celina, TX 75009
MLS# 21226976Listed by: HIGHLAND HOMES REALTY - New
$650,290Active4 beds 5 baths3,277 sq. ft.2220 Atlas Drive, Celina, TX 75009
MLS# 21227065Listed by: HIGHLAND HOMES REALTY