1008 Savage Way, Clyde, TX 79510
Local realty services provided by:ERA Empower
1008 Savage Way,Clyde, TX 79510
$325,000
- 3 Beds
- 2 Baths
- 1,860 sq. ft.
- Single family
- Active
Listed by: tonya harbin
Office: real broker, llc.
MLS#:21186527
Source:GDAR
Price summary
- Price:$325,000
- Price per sq. ft.:$174.73
About this home
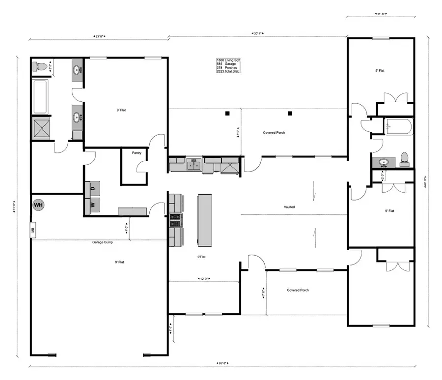
Welcome to this beautifully crafted new construction home that blends style, comfort, and efficiency. This 3 bedroom, 2 bathroom home also features a dedicated office, perfect for working from home, studying, or creating a quiet retreat. Inside, you’ll find high end finishes throughout, including granite countertops, vinyl plank flooring, and energy efficient LED lighting. Spray foam insulation helps keep utility costs down while maintaining year round comfort. The main living area has vaulted ceilings that add an open, airy feel that makes the space feel even larger and more inviting. The spacious 2 car garage offers plenty of room for vehicles and extra storage. Situated in a desirable neighborhood with curb and gutter frontage, this home offers city water and sewer and is located less than one block from a beautiful city park. The privacy fenced backyard provides the perfect space for relaxing, entertaining, or letting kids and pets play safely. EST. Completion Mid July.
Contact an agent
Home facts
- Year built:2026
- Listing ID #:21186527
- Added:77 day(s) ago
- Updated:May 15, 2026 at 11:55 AM
Rooms and interior
- Bedrooms:3
- Total bathrooms:2
- Full bathrooms:2
- Flooring:Luxury Vinyl Plank
- Kitchen Description:Dishwasher, Disposal, Electric Range
- Living area:1,860 sq. ft.
Heating and cooling
- Cooling:Ceiling Fans, Central Air, Electric
- Heating:Central, Electric
- Central air:Yes
Structure and exterior
- Roof:Composition
- Year built:2026
- Building area:1,860 sq. ft.
- Lot area:0.33 Acres
- Lot Features:Interior Lot, No Backyard Grass, Subdivision
- Architectural Style:Traditional
- Foundation Description:Slab
- Levels:1 Story
Schools
- High school:Clyde
- Elementary school:Clyde
Finances and disclosures
- Price:$325,000
- Price per sq. ft.:$174.73
Features and amenities
- Appliances:Dishwasher, Disposal, Electric Range
Parking
- Garage:Yes
- Garage spaces:2
New listings near 1008 Savage Way
- New
$268,000Active3 beds 2 baths1,510 sq. ft.924 Ruger Drive, Clyde, TX 79510
MLS# 21269270Listed by: REAL BROKER, LLC. - New
$342,500Active4 beds 2 baths1,860 sq. ft.1016 Savage Way, Clyde, TX 79510
MLS# 21269433Listed by: REAL BROKER, LLC. - New
$342,500Active4 beds 2 baths1,860 sq. ft.1024 Savage Way, Clyde, TX 79510
MLS# 21270584Listed by: REAL BROKER, LLC. - New
$342,500Active4 beds 2 baths1,860 sq. ft.1071 Savage Way, Clyde, TX 79510
MLS# 21270599Listed by: REAL BROKER, LLC. - New
$342,500Active4 beds 2 baths1,860 sq. ft.1025 Savage Way, Clyde, TX 79510
MLS# 21270620Listed by: REAL BROKER, LLC. - New
$268,000Active3 beds 2 baths1,510 sq. ft.1032 Savage Way, Clyde, TX 79510
MLS# 21270656Listed by: REAL BROKER, LLC. - New
$200,000Active20 Acres318 County Road 127, Clyde, TX 79510
MLS# 21267874Listed by: BETTER HOMES & GARDENS REAL ESTATE SENTER, REALTORS - New
$265,000Active2 beds 1 baths1,350 sq. ft.507 Hawk Lane, Clyde, TX 79510
MLS# 21268619Listed by: TRINITY RANCH LAND ABILENE
$262,500Pending3 beds 2 baths1,510 sq. ft.1041 Savage Way, Clyde, TX 79510
MLS# 21266925Listed by: REAL BROKER, LLC.- New
$265,000Active3 beds 2 baths1,410 sq. ft.900 Ruger Drive, Clyde, TX 79510
MLS# 21266854Listed by: REAL BROKER, LLC.