916 Benelli Drive, Clyde, TX 79510

Local realty services provided by:ERA Myers & Myers Realty
916 Benelli Drive,Clyde, TX 79510
$260,000
  • 3 Beds
  • 2 Baths
  • 1,510 sq. ft.
  • Single family
  • Pending
Listed by: tonya harbin
Office: real broker, llc.
MLS#:21181181
Source:GDAR

Price summary

  • Price:$260,000
  • Price per sq. ft.:$172.19

About this home

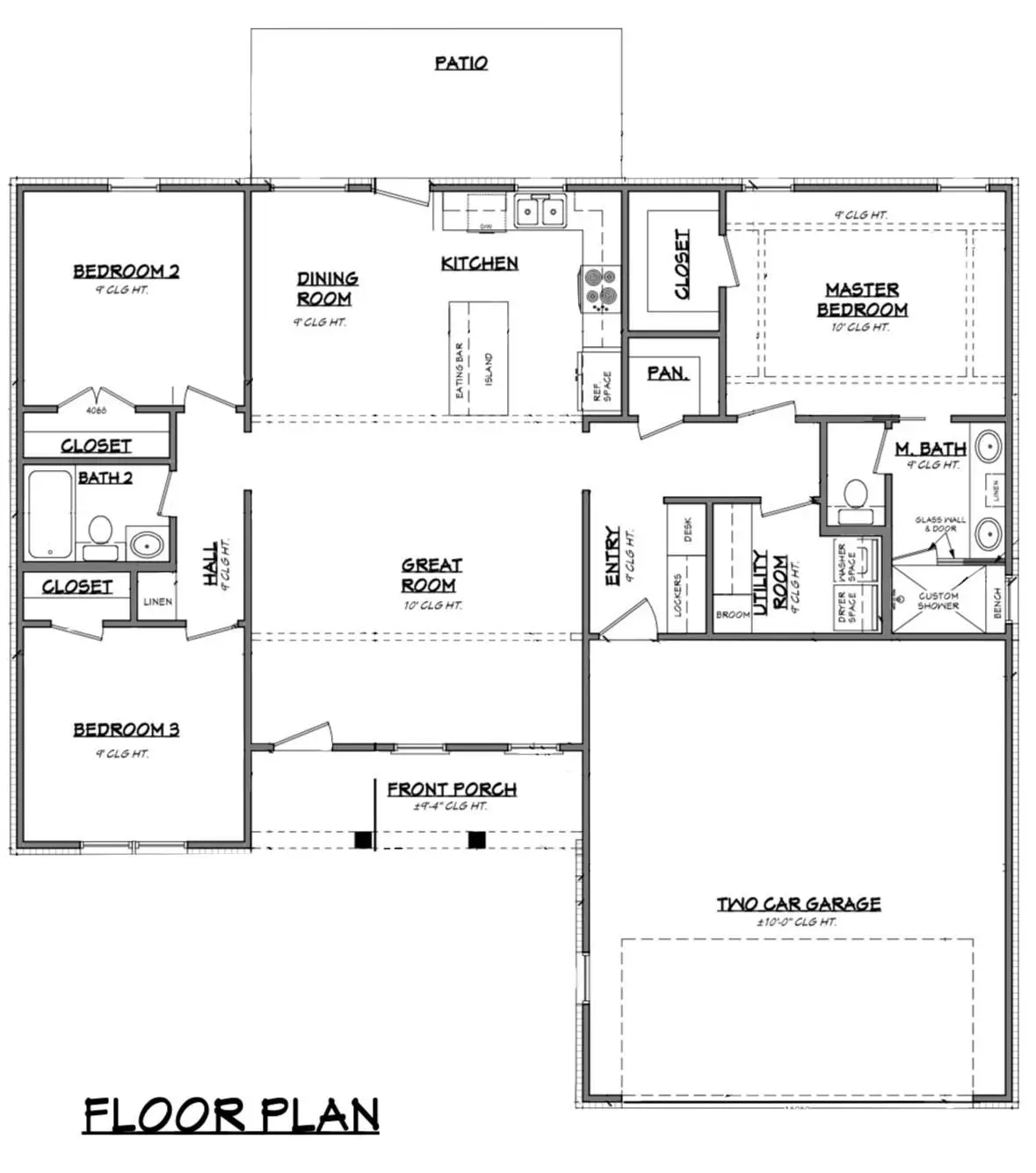
Welcome to this beautifully crafted new construction home offering the perfect blend of style, comfort, and efficiency. This 3-bedroom, 2-bathroom gem features high-end finishes throughout, including granite countertops, vinyl plank flooring, and energy-efficient LED lighting. Enjoy year-round comfort with spray foam insulation, and bask in the open, airy feel of the vaulted ceiling in the main living area. The spacious 2-car garage provides plenty of room for vehicles and storage. Located in a desirable neighborhood with curb and gutter frontage, this home offers city water and sewer and is just steps away from a beautiful city park—less than one block away. The privacy fence surrounding the backyard creates a perfect space for relaxing, entertaining, or letting kids and pets play safely.

Contact an agent

contact an agent

Yes, I would like more information. Please use and/or share my information with an ERA®  affiliated agent to contact me about my real estate needs. By clicking Send message, I request to be contacted by phone or text message and consent to being contacted by automated means. I understand that my consent to receive calls or texts is not a condition of purchasing any property, goods, or services. Alternatively, I understand that I can access real estate services by email or I can contact the agent myself.

If an ERA®  affiliated agent is not available in the area where I need assistance, I agree to be contacted by a real estate agent affiliated with another brand owned or licensed by Anywhere Real Estate (BHGRE® , CENTURY 21® , Coldwell Banker® , Corcoran® , Sotheby's International Realty® ).
 I acknowledge that I have read and agree to theTerms of useandPrivacy notice

Home facts

  • Year built:2026
  • Listing ID #:21181181
  • Added:86 day(s) ago
  • Updated:May 15, 2026 at 07:23 AM

Rooms and interior

  • Bedrooms:3
  • Total bathrooms:2
  • Full bathrooms:2
  • Flooring:Luxury Vinyl Plank
  • Kitchen Description:Dishwasher, Disposal, Electric Range
  • Living area:1,510 sq. ft.

Heating and cooling

  • Cooling:Ceiling Fans, Central Air, Electric
  • Heating:Central, Electric
  • Central air:Yes

Structure and exterior

  • Roof:Composition
  • Year built:2026
  • Building area:1,510 sq. ft.
  • Lot area:0.22 Acres
  • Lot Features:Interior Lot, No Backyard Grass, Subdivision
  • Architectural Style:Traditional
  • Foundation Description:Slab
  • Levels:1 Story

Schools

  • High school:Clyde
  • Elementary school:Clyde

Finances and disclosures

  • Price:$260,000
  • Price per sq. ft.:$172.19

Features and amenities

  • Appliances:Dishwasher, Disposal, Electric Range

Parking

  • Garage:Yes
  • Garage spaces:2
MLS LogoInformation provided, in part, by North Texas Real Estate Information Systems, Inc. Last Updated May 15, 2026 Listings with the NTREIS logo are listed by brokerages other than ERA Myers & Myers Realty.