1801 Us-377, Collinsville, TX 76233
Local realty services provided by:ERA Courtyard Real Estate
1801 Us-377,Collinsville, TX 76233
$1,620,272
- 31.01 Acres
- Lots / Land
- Active
Listed by: dutch wiemeyer, cheryl wiemeyer
Office: keller williams realty
MLS#:21197144
Source:GDAR
Price summary
- Price:$1,620,272
About this home
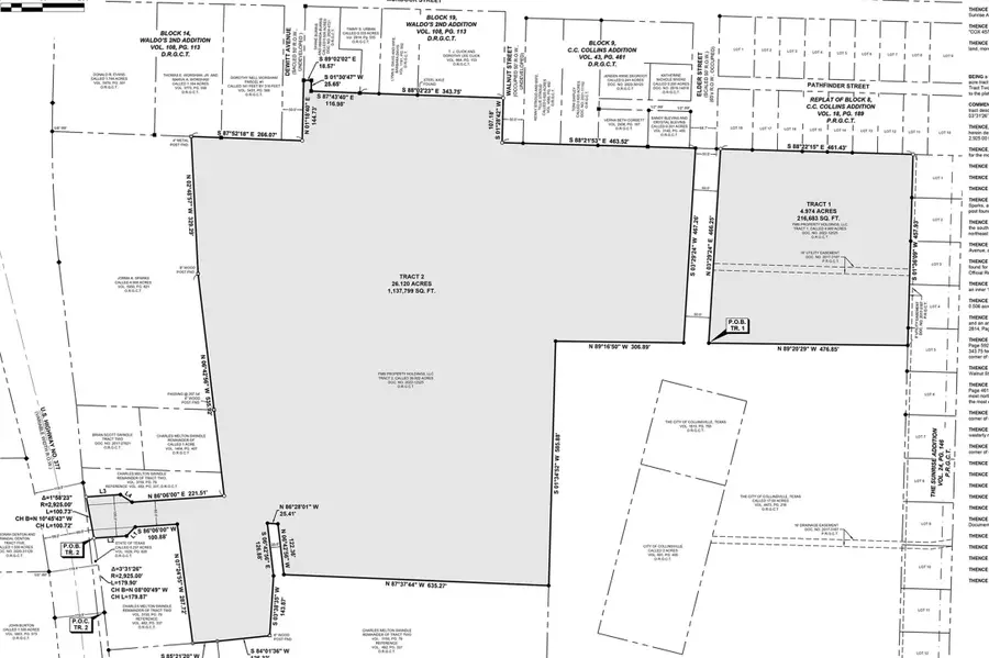
This 31.01-acre tract offers a strong opportunity for development with direct access to Highway 377 and substantial preliminary work already completed. A portion of the property lies within the City of Collinsville, with the balance located in the Collinsville ETJ. The highway frontage is currently zoned commercial, while the remaining acreage is not zoned, providing flexibility for future planning.
According to the seller, preliminary plat and development approval have been obtained, with development engineering and planning being approximately 97% complete for permitting, with only the drainage plan remaining to be finalized. The seller is willing to assist the new owner in obtaining final approval. All engineering, plans, and supporting development work completed to date will transfer with the property, allowing a buyer to step into an advanced stage of the development process.
Collinsville continues to benefit from steady regional growth as expansion moves north through Grayson County. The area is seeing increased demand for land and development opportunities driven by nearby growth in Gunter, Tioga, and Sherman, along with continued improvements to regional infrastructure. Its small-town setting, convenient highway access, and limited supply of well-located acreage continue to support long-term demand and future value....
Contact an agent
Home facts
- Listing ID #:21197144
- Added:70 day(s) ago
- Updated:May 15, 2026 at 11:55 AM
Structure and exterior
- Lot area:31.01 Acres
- Lot Features:Acreage, City Lot, Irregular Lot, Pasture
Schools
- High school:Collinsville
- Elementary school:Collinsville
Finances and disclosures
- Price:$1,620,272
- Tax amount:$14
New listings near 1801 Us-377
- New
$1,049,000Active3 beds 5 baths2,460 sq. ft.310 County Road 217, Collinsville, TX 76233
MLS# 21256243Listed by: REAL BROKER, LLC - New
$300,000Active3 beds 2 baths1,335 sq. ft.402 Robertson Street, Collinsville, TX 76233
MLS# 21258467Listed by: TEXAS HOMES AND LAND REAL ESTATE, LLC - New
$725,000Active22 AcresTBD W Line Road, Collinsville, TX 76233
MLS# 21258321Listed by: MONUMENT REALTY - New
$295,000Active3 beds 2 baths1,388 sq. ft.300 Church Street, Collinsville, TX 76233
MLS# 21263560Listed by: COLDWELL BANKER APEX, REALTORS - New
$249,500Active3 beds 2 baths1,705 sq. ft.300 Denton Court, Collinsville, TX 76233
MLS# 21263938Listed by: READY REAL ESTATE LLC - New
$395,500Active3 beds 2 baths1,564 sq. ft.714 Mary Lee Lane, Collinsville, TX 76233
MLS# 21260254Listed by: TEXAS HOMES AND LAND - New
$595,000Active3 beds 2 baths1,556 sq. ft.27020 Fm 902, Collinsville, TX 76233
MLS# 21262853Listed by: RE/MAX FOUR CORNERS
$3,600,000Active102.5 Acres000 Fm 901, Collinsville, TX 76233
MLS# 21256109Listed by: DAVIDSON & BOGEL REAL ESTATE
$395,000Active3 beds 2 baths1,592 sq. ft.502 Pathfinder Street, Collinsville, TX 76233
MLS# 21253631Listed by: LAKE KIOWA PREMIERE
$315,000Active5 beds 2 baths1,666 sq. ft.406 W Elm Street, Collinsville, TX 76233
MLS# 21250104Listed by: REAL ESTATE SHOPPE TX, LLC