12623 Blue Catfish Lane, Cypress, TX 77433

Local realty services provided by:ERA Experts
12623 Blue Catfish Lane,Cypress, TX 77433
$326,990
  • 3 Beds
  • 3 Baths
  • 1,906 sq. ft.
  • Townhouse
  • Pending
Listed by: jared turner, lisa ervine
Office: lennar homes village builders, llc.
MLS#:30484406
Source:HARMLS

Price summary

  • Price:$326,990
  • Price per sq. ft.:$171.56
  • Monthly HOA dues:$115.83

About this home

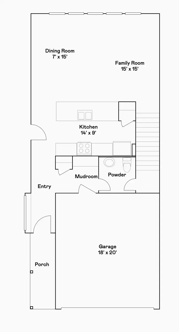
**BRAND NEW LENNAR URBAN VILLAS IN BRIDGELAND** This two-story home, the Bagby II-OB, features an open first floor that highlights a kitchen, a casual dining space and an adjoining family room. Upstairs reveals a game room and two secondary bedrooms that share a full bathroom. The second-floor owner’s suite offers a private bathroom and a walk-in closet.

Contact an agent

contact an agent

Yes, I would like more information. Please use and/or share my information with an ERA®  affiliated agent to contact me about my real estate needs. By clicking Send message, I request to be contacted by phone or text message and consent to being contacted by automated means. I understand that my consent to receive calls or texts is not a condition of purchasing any property, goods, or services. Alternatively, I understand that I can access real estate services by email or I can contact the agent myself.

If an ERA®  affiliated agent is not available in the area where I need assistance, I agree to be contacted by a real estate agent affiliated with another brand owned or licensed by Anywhere Real Estate (BHGRE® , CENTURY 21® , Coldwell Banker® , Corcoran® , Sotheby's International Realty® ).
 I acknowledge that I have read and agree to theTerms of useandPrivacy notice

Home facts

  • Year built:2025
  • Listing ID #:30484406
  • Updated:March 30, 2026 at 07:15 AM

Rooms and interior

  • Bedrooms:3
  • Total bathrooms:3
  • Full bathrooms:2
  • Half bathrooms:1
  • Rooms Total:8
  • Kitchen Description:Dishwasher, Disposal, Microwave
  • Living area:1,906 sq. ft.

Heating and cooling

  • Cooling:Central Air, Electric
  • Heating:Central, Gas
  • Central air:Yes

Structure and exterior

  • Roof:Composition
  • Year built:2025
  • Building area:1,906 sq. ft.
  • Architectural Style:Traditional
  • Construction Materials:Cement Siding, Stucco
  • Foundation Description:Slab
  • Levels:2 Stories

Schools

  • High school:WALLER HIGH SCHOOL
  • Middle school:WALLER JUNIOR HIGH SCHOOL
  • Elementary school:RICHARD T MCREAVY ELEMENTARY

Utilities

  • Sewer:Public Sewer

Finances and disclosures

  • Price:$326,990
  • Price per sq. ft.:$171.56

Features and amenities

  • Appliances:Dishwasher, Disposal, Microwave

Parking

  • Parking description:Garage
  • Garage:Yes
  • Garage spaces:2
Copyright 2026, Houston Realtors Information Service, Inc. All information provided is deemed reliable but is not guaranteed and should be independently verified. IDX information is provided exclusively for consumers' personal, non-commercial use, it may not be used for any purpose other than to identify prospective properties consumers may be interested in purchasing, and the data is deemed reliable but is not guaranteed accurate by the MLS.