3841 Canada Drive, Dallas, TX 75212
Local realty services provided by:ERA Courtyard Real Estate
Listed by: hai hoang214-449-2840
Office: monument realty
MLS#:21150452
Source:GDAR
Price summary
- Price:$719,000
- Price per sq. ft.:$263.18
About this home
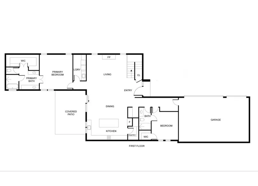
Introducing the newest statement home from Modish Custom Homes, thoughtfully designed for buyers who expect more than builder grade finishes and ordinary layouts! This is not just new construction, it is a carefully crafted home where modern architecture meets everyday livability and elevated detail at every turn. New construction by Modish Custom Homes offering modern design, functional layout and high quality upgrades throughout. This 4 bedroom, 3.5 bath home delivers 2,732 sqft of open concept living with an estimated completion of April 2026.
Notable features and upgrades include:
• Striking 4 foot wide metal and glass pivot front door
• 8 foot solid core interior doors throughout
• Electric linear fireplace in main living area
• Open concept kitchen with an extended island
• Walk in pantry plus dedicated butler’s pantry
• ZLINE appliance package
• Private primary suite on main level
• Guest Wing located on main level that's ideal for guests or multigenerational living
• Study-flex space with open overlook
• Secret hidden room
• Oversized 3 car garage
• EVSE interface for Level 2 charging
• Tankless water heater with recirculation pump
• Extensive LED lighting elements throughout
• Oversized covered patio for indoor outdoor living
• Private balcony
• Bidet ready outlets behind toilets
• Deep lot with expansive backyard potential.
Early opportunities available. Seller’s preferred lender is offering a 1% lender credit to go towards buyer’s closing costs or an interest rate buy down. Secure this home early and take advantage of pre completion momentum while selections and strategy still matter! Built with intention, positioned for impact and designed to stand apart, this is your opportunity to own a Modish Custom Homes original before it ever officially hits full market presence!...
Contact an agent
Home facts
- Year built:2026
- Listing ID #:21150452
- Added:44 day(s) ago
- Updated:April 02, 2026 at 07:14 AM
Rooms and interior
- Bedrooms:4
- Total bathrooms:4
- Full bathrooms:3
- Half bathrooms:1
- Flooring:Luxury Vinyl Plank, Tile
- Kitchen Description:Dishwasher, Disposal, Gas Cooktop, Microwave, Vented Exhaust Fan
- Living area:2,732 sq. ft.
Heating and cooling
- Cooling:Ceiling Fans, Electric
- Heating:Central, Electric, Fireplaces
Structure and exterior
- Roof:Composition
- Year built:2026
- Building area:2,732 sq. ft.
- Lot area:0.25 Acres
- Lot Features:Few Trees, Interior Lot, Landscaped
- Foundation Description:Slab
- Levels:2 Story
Schools
- High school:Nimitz
- Middle school:Bowie
- Elementary school:Schulze
Finances and disclosures
- Price:$719,000
- Price per sq. ft.:$263.18
- Tax amount:$2,254
Features and amenities
- Appliances:Dishwasher, Disposal, Gas Cooktop, Microwave, Plumbed For Gas, Some Gas Appliances, Vented Exhaust Fan
- Amenities:Carbon Monoxide Detectors
Parking
- Garage:Yes
- Garage spaces:3
New listings near 3841 Canada Drive
- New
$2,175,000Active10 beds 15 baths7,883 sq. ft.2147 Mail Avenue, Dallas, TX 75235
MLS# 21221042Listed by: DOUGLAS ELLIMAN REAL ESTATE - New
$2,175,000Active10 beds 15 baths7,883 sq. ft.2151 Mail Avenue, Dallas, TX 75235
MLS# 21221048Listed by: DOUGLAS ELLIMAN REAL ESTATE - New
$1,075,000Active3 beds 3 baths2,657 sq. ft.806 Thomasson Drive, Dallas, TX 75208
MLS# 21223294Listed by: KELLER WILLIAMS REALTY - New
$2,100,000Active4 beds 5 baths4,637 sq. ft.4720 Northaven Road, Dallas, TX 75229
MLS# 21223439Listed by: ALLIE BETH ALLMAN & ASSOC. - New
$1,850,000Active6 beds 6 baths6,026 sq. ft.17431 Woods Edge Drive, Dallas, TX 75287
MLS# 21224199Listed by: COMPASS RE TEXAS, LLC - New
$209,000Active2 beds 3 baths1,359 sq. ft.10416 High Hollows Drive #233, Dallas, TX 75230
MLS# 21224207Listed by: DAVE PERRY MILLER REAL ESTATE - New
$465,000Active3 beds 2 baths1,845 sq. ft.8309 Londonderry Lane, Dallas, TX 75228
MLS# 21224850Listed by: AGENCY DALLAS PARK CITIES, LLC - New
$3,590,000Active5 beds 7 baths8,323 sq. ft.10236 Crestover Drive, Dallas, TX 75229
MLS# 21226105Listed by: BERKSHIRE HATHAWAYHS PENFED TX - New
$219,900Active1 beds 1 baths644 sq. ft.3033 San Jacinto Street #322, Dallas, TX 75204
MLS# 21226211Listed by: COMPASS RE TEXAS, LLC - New
$549,990Active3 beds 2 baths1,822 sq. ft.10823 Meadowcliff Lane, Dallas, TX 75238
MLS# 21208772Listed by: TEXAS PROPERTIES