4006 Flintridge Drive, Dallas, TX 75244
Local realty services provided by:ERA Newlin & Company
4006 Flintridge Drive,Dallas, TX 75244
$589,000
- 4 Beds
- 3 Baths
- 2,142 sq. ft.
- Single family
- Active
Listed by: martha mcanallen
Office: compass re texas, llc.
MLS#:21212632
Source:GDAR
Price summary
- Price:$589,000
- Price per sq. ft.:$274.98
About this home
4006 Flintridge presents a rare opportunity to purchase a meticulously maintained mid-century modern on a corner lot of more than a quarter acre in Midway Hollow, within Dallas’ coveted Private School Corridor. Rich with architectural character and possibility, this home is ideally suited for a thoughtful renovation that preserves its original spirit while reimagining it for modern living.
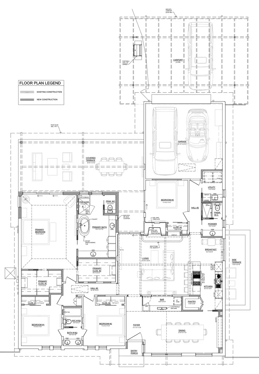
What sets this property apart is how much of the early work has already been completed. Soil samples have been drilled, pre-engineering is complete, and permit-ready architectural plans are already in place, offering a clear path forward.
You may also refine the vision in collaboration with a noted architect, whose background includes more than a decade at Bernbaum Magadini Architects, and a seasoned design-build team with more than 30 years of experience. Preserve the coveted elements of mid-century design, enhance the indoor-outdoor flow, and tailor the finishes to create a bespoke residence that feels deeply personal, thoughtfully luxurious, and naturally aligned with how you live.
This listing is for the lot only. The permit-ready renovation plans envision a 3,495 SQ.FT home with 4 bedrooms, 3 baths, and nearly 600 SQ.FT of covered outdoor living, 2 car garage with alley access and option for attached, covered carport. Construction pricing will be determined following final architectural plans, scope, and curated selections....
Contact an agent
Home facts
- Year built:1970
- Listing ID #:21212632
- Added:1 day(s) ago
- Updated:April 10, 2026 at 01:50 AM
Rooms and interior
- Bedrooms:4
- Total bathrooms:3
- Full bathrooms:2
- Half bathrooms:1
- Flooring:Ceramic Tile, Linoleum
- Kitchen Description:Electric Cooktop, Electric Oven
- Living area:2,142 sq. ft.
Heating and cooling
- Cooling:Ceiling Fans, Central Air
- Heating:Central, Natural Gas
- Central air:Yes
Structure and exterior
- Roof:Composition
- Year built:1970
- Building area:2,142 sq. ft.
- Lot area:0.27 Acres
- Lot Features:Corner Lot, Level, Sprinkler System
- Construction Materials:Brick
- Foundation Description:Slab
- Levels:1 Story
Schools
- High school:White
- Middle school:Marsh
- Elementary school:Gooch
Finances and disclosures
- Price:$589,000
- Price per sq. ft.:$274.98
- Tax amount:$11,022
Features and amenities
- Appliances:Electric Cooktop, Electric Oven
Parking
- Garage:Yes
- Garage spaces:2
New listings near 4006 Flintridge Drive
- Open Sat, 1 to 3pmNew
$1,100,000Active4 beds 3 baths3,010 sq. ft.3707 Northaven Road, Dallas, TX 75229
MLS# 21224335Listed by: KELLER WILLIAMS DALLAS MIDTOWN - Open Sat, 2 to 4pmNew
$299,900Active2 beds 2 baths1,617 sq. ft.4823 Hollow Ridge Road, Dallas, TX 75227
MLS# 21228496Listed by: EXP REALTY LLC - New
$440,000Active2 beds 2 baths1,550 sq. ft.509 Elm Street #504, Dallas, TX 75202
MLS# 21231618Listed by: DOUGLAS ELLIMAN REAL ESTATE - New
$665,000Active4 beds 2 baths2,185 sq. ft.6524 Ravendale Lane, Dallas, TX 75214
MLS# 21233182Listed by: COMPASS RE TEXAS, LLC. - New
$849,999Active3 beds 3 baths2,928 sq. ft.4931 Milam Street, Dallas, TX 75206
MLS# 21233255Listed by: ALLIE BETH ALLMAN & ASSOC. - New
$285,000Active4 beds 3 baths1,392 sq. ft.4728 Meadow Trail Drive, Dallas, TX 75236
MLS# 21233377Listed by: KELLER WILLIAMS REALTY-FM - New
$599,900Active4 beds 3 baths2,776 sq. ft.3928 Belton Drive, Dallas, TX 75287
MLS# 21233402Listed by: HUGGINS REALTY - New
$335,000Active4 beds 3 baths1,432 sq. ft.3608 Metropolitan Avenue, Dallas, TX 75210
MLS# 21233451Listed by: DOUGLAS ELLIMAN REAL ESTATE - New
$429,900Active3 beds 3 baths2,174 sq. ft.17927 Windflower Way, Dallas, TX 75252
MLS# 21233452Listed by: KELLER WILLIAMS FRISCO STARS