126 Big Banyan Dr, Dripping Springs, TX 78620

Local realty services provided by:ERA Brokers Consolidated
Listed by: patrick easter
Office: m/i homes realty
MLS#:2494592
Source:ACTRIS
126 Big Banyan Dr,Dripping Springs, TX 78620
$394,990
  • 3 Beds
  • 3 Baths
  • 1,950 sq. ft.
  • Single family
  • Active

Price summary

  • Price:$394,990
  • Price per sq. ft.:$202.56
  • Monthly HOA dues:$50

About this home

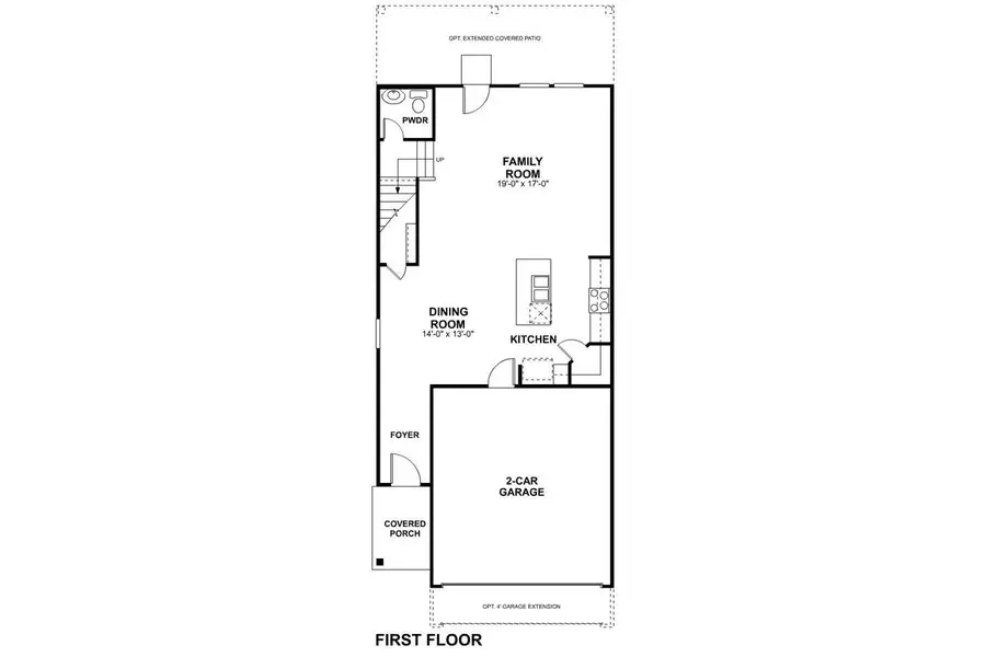
Step into the Somerset, a beautifully designed two-story home that blends open living spaces with private retreats. With 1,950 sq. ft., this plan offers 3 bedrooms, 2.5 baths, and a 2-car garage, making it perfect for modern lifestyles. The first floor welcomes you with an open-concept layout that maximizes space and natural light. A spacious Family Room (19'-0" x 17'-0") flows into the Dining Room (14'-0" x 13'-0"), creating the ideal setting for family meals or entertaining guests. At the heart of the home, the Kitchen features a central island and generous counter space—perfect for meal prep or casual gatherings. A convenient Powder Room and direct access to the 2-Car Garage complete the main level. Upstairs, the Somerset continues to impress with a luxurious Owner’s Suite (12'-0" x 16'-0") featuring a private bath with dual sinks, a walk-in shower, and a spacious walk-in closet. Two additional bedrooms—Bedroom 2 (12'-0" x 10'-0") and Bedroom 3 (12'-0" x 10'-0")—offer plenty of...

Contact an agent

contact an agent

Yes, I would like more information. Please use and/or share my information with an ERA®  affiliated agent to contact me about my real estate needs. By clicking Send message, I request to be contacted by phone or text message and consent to being contacted by automated means. I understand that my consent to receive calls or texts is not a condition of purchasing any property, goods, or services. Alternatively, I understand that I can access real estate services by email or I can contact the agent myself.

If an ERA®  affiliated agent is not available in the area where I need assistance, I agree to be contacted by a real estate agent affiliated with another brand owned or licensed by Anywhere Real Estate (BHGRE® , CENTURY 21® , Coldwell Banker® , Corcoran® , Sotheby's International Realty® ).
 I acknowledge that I have read and agree to theTerms of useandPrivacy notice

Home facts

  • Year built:2026
  • Listing ID #:2494592
  • Updated:May 10, 2026 at 03:08 PM

Rooms and interior

  • Bedrooms:3
  • Total bathrooms:3
  • Full bathrooms:2
  • Half bathrooms:1
  • Flooring:Carpet, Tile, Vinyl
  • Kitchen Description:Dishwasher, Disposal, ENERGY STAR Qualified Appliances, Exhaust Fan, Gas Oven, Gas Range, Microwave, Self Cleaning Oven, Stainless Steel Appliance(s), Vented Exhaust Fan
  • Living area:1,950 sq. ft.

Heating and cooling

  • Cooling:Central, ENERGY STAR Qualified Equipment, Zoned
  • Heating:Central, Natural Gas, Zoned
  • Central air:Yes

Structure and exterior

  • Roof:Composition, Shingle
  • Year built:2026
  • Building area:1,950 sq. ft.
  • Lot area:0.1 Acres
  • Lot Features:Back Yard, Close to Clubhouse, Front Yard, Landscaped, Sprinkler - Automatic, Trees-Small (Under 20 Ft)
  • Construction Materials:Blown-In Insulation, Brick, Cement Siding, Stone
  • Exterior Features:Pest Tubes in Walls, Private Yard
  • Foundation Description:Slab

Schools

  • High school:Dripping Springs
  • Elementary school:Dripping Springs

Utilities

  • Water:Public
  • Sewer:Public Sewer

Finances and disclosures

  • Price:$394,990
  • Price per sq. ft.:$202.56

Features and amenities

  • Appliances:Dishwasher, Disposal, ENERGY STAR Qualified Appliances, Exhaust Fan, Gas Oven, Gas Range, Microwave, Self Cleaning Oven, Stainless Steel Appliance(s), Tankless Water Heater, Vented Exhaust Fan, Water Heater
  • Amenities:Pantry

Parking

  • Total parking spaces:4
  • Parking description:Driveway, Garage, Garage Door Opener, Garage Faces Front
  • Garage:Yes
  • Garage spaces:2
Copyright 2026 UnLock MLS . All rights reserved. Listings courtesy of UnLock MLS as distributed by MLS GRID <Last Updated May 10, 2026. UnLock MLS provides content displayed here (“provided content”) on an “as is” basis and makes no representations or warranties regarding the provided content, including, but not limited to those of non-infringement, timeliness, accuracy, or completeness. Individuals and companies using information presented are responsible for verification and validation of information they utilize and present to their customers and clients. UnLock MLS will not be liable for any damage or loss resulting from use of the provided content or the products available through Portals, IDX, VOW, and/or Syndication. Recipients of this information shall not resell, redistribute, reproduce, modify, or otherwise copy any portion thereof without the expressed written consent of UnLock MLS.