3644 Randall Terrace, Grand Prairie, TX 76065
Local realty services provided by:ERA Empower
3644 Randall Terrace,Grand Prairie, TX 76065
$373,000
- 3 Beds
- 2 Baths
- 1,470 sq. ft.
- Single family
- Active
Listed by: ray bobo, brad ashford
Office: keller williams lonestar dfw
MLS#:21205296
Source:GDAR
Price summary
- Price:$373,000
- Price per sq. ft.:$253.74
- Monthly HOA dues:$70
About this home
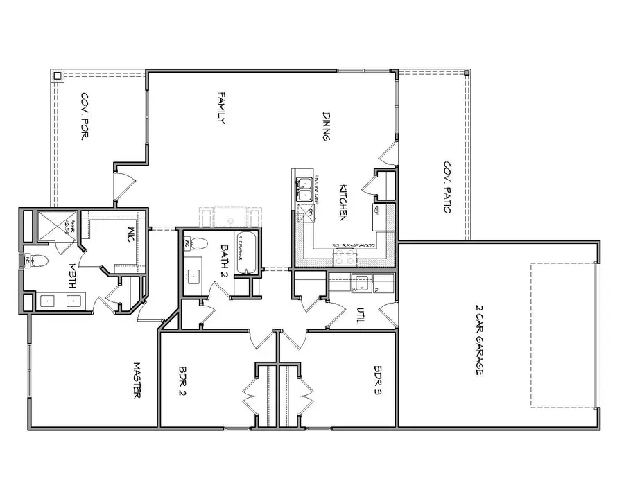
NEW CONSTRUCTION due for completion Fall 2026! This 3-2-2 home is located in a 37-acre master planned community. Open concept living, dining & kitchen. Kitchen features stainless steel appliances, ceramic tile backsplash & granite countertops. Primary bedroom with ensuite bath featuring shower & walkin closet. Other two bedrooms are nice sized. Fenced backyard with covered patio. Heritage Towne is Grand Prairie's newest gated community. The heart of the community is the amenity center including a conference room, state of the art gym equipment, resort style swimming pool & outdoor kitchen area. Community also features a playground, dog park and a 3-acre park with a surrounding walking trail. Heritage Towne is wonderfully located within a growing area, offering easy access to highways 360, 287, and I-20 to efficiently commute to Fort Worth, Dallas & Arlington. The community is located within the city of Grand Prairie, Ellis County, and award-winning Midlothian school district.
Contact an agent
Home facts
- Year built:2026
- Listing ID #:21205296
- Added:64 day(s) ago
- Updated:May 15, 2026 at 11:55 AM
Rooms and interior
- Bedrooms:3
- Total bathrooms:2
- Full bathrooms:2
- Flooring:Carpet, Ceramic Tile, Luxury Vinyl Plank
- Kitchen Description:Dishwasher, Disposal, Electric Oven, Gas Cooktop
- Living area:1,470 sq. ft.
Heating and cooling
- Cooling:Ceiling Fans, Central Air, Electric
- Heating:Central, Natural Gas
- Central air:Yes
Structure and exterior
- Roof:Composition
- Year built:2026
- Building area:1,470 sq. ft.
- Lot area:0.14 Acres
- Lot Features:Corner Lot, Landscaped, Sprinkler System, Subdivision
- Architectural Style:Traditional
- Foundation Description:Slab
- Levels:1 Story
Schools
- High school:Midlothian
- Middle school:Frank Seale
- Elementary school:Vitovsky
Finances and disclosures
- Price:$373,000
- Price per sq. ft.:$253.74
- Tax amount:$795
Features and amenities
- Appliances:Dishwasher, Disposal, Electric Oven, Gas Cooktop, Tankless Water Heater
- Amenities:Carbon Monoxide Detectors, Fire Alarm, Gated Community, Prewired, Security System, Smoke Detectors
Parking
- Garage:Yes
- Garage spaces:2
New listings near 3644 Randall Terrace
- New
$476,990Active4 beds 3 baths2,218 sq. ft.3661 Sagauro Drive, Grand Prairie, TX 75052
MLS# 21271404Listed by: KELLER WILLIAMS REALTY LONE ST - New
$289,900Active3 beds 2 baths1,420 sq. ft.1119 Moonlight Trace Drive, Beasley, TX 77417
MLS# 52661231Listed by: LGI HOMES - New
$480,990Active4 beds 2 baths2,035 sq. ft.3685 Zenith Drive, Grand Prairie, TX 75052
MLS# 21270885Listed by: KELLER WILLIAMS REALTY LONE ST - New
$480,990Active4 beds 2 baths2,035 sq. ft.3670 Zenith Drive, Grand Prairie, TX 75052
MLS# 21270895Listed by: KELLER WILLIAMS REALTY LONE ST - New
$350,000Active3 beds 2 baths1,827 sq. ft.2802 Garden Oaks Place, Grand Prairie, TX 75052
MLS# 21260649Listed by: ARC REALTY DFW - Open Sat, 9am to 7pmNew
$330,000Active3 beds 2 baths1,904 sq. ft.2817 Ingram Drive, Grand Prairie, TX 75052
MLS# 21270732Listed by: OPENDOOR BROKERAGE, LLC - Open Sat, 1 to 3pmNew
$394,900Active4 beds 2 baths2,287 sq. ft.1011 Fleetwood Cove Drive, Grand Prairie, TX 75052
MLS# 21254602Listed by: VIP REALTY - Open Sun, 2 to 4pmNew
$599,999Active6 beds 4 baths3,600 sq. ft.2827 Mariposa Drive, Grand Prairie, TX 75054
MLS# 21259706Listed by: PHELPS REALTY GROUP, LLC - New
$560,000Active4 beds 3 baths3,445 sq. ft.2471 Somervell Trail, Grand Prairie, TX 75052
MLS# 21269680Listed by: DHS REALTY - New
$310,000Active3 beds 2 baths1,567 sq. ft.1318 Halifax Street, Grand Prairie, TX 75050
MLS# 21268768Listed by: FATHOM REALTY LLC