2209 Via Isa Lane, Houston, TX 77051
Local realty services provided by:American Real Estate ERA Powered
2209 Via Isa Lane,Houston, TX 77051
- 3 Beds
- 2 Baths
- - sq. ft.
- Townhouse
- Sold
Listed by: jared turner
Office: lennar homes village builders, llc.
MLS#:10203590
Source:HARMLS
Sorry, we are unable to map this address
Price summary
- Price:
- Monthly HOA dues:$83.33
About this home
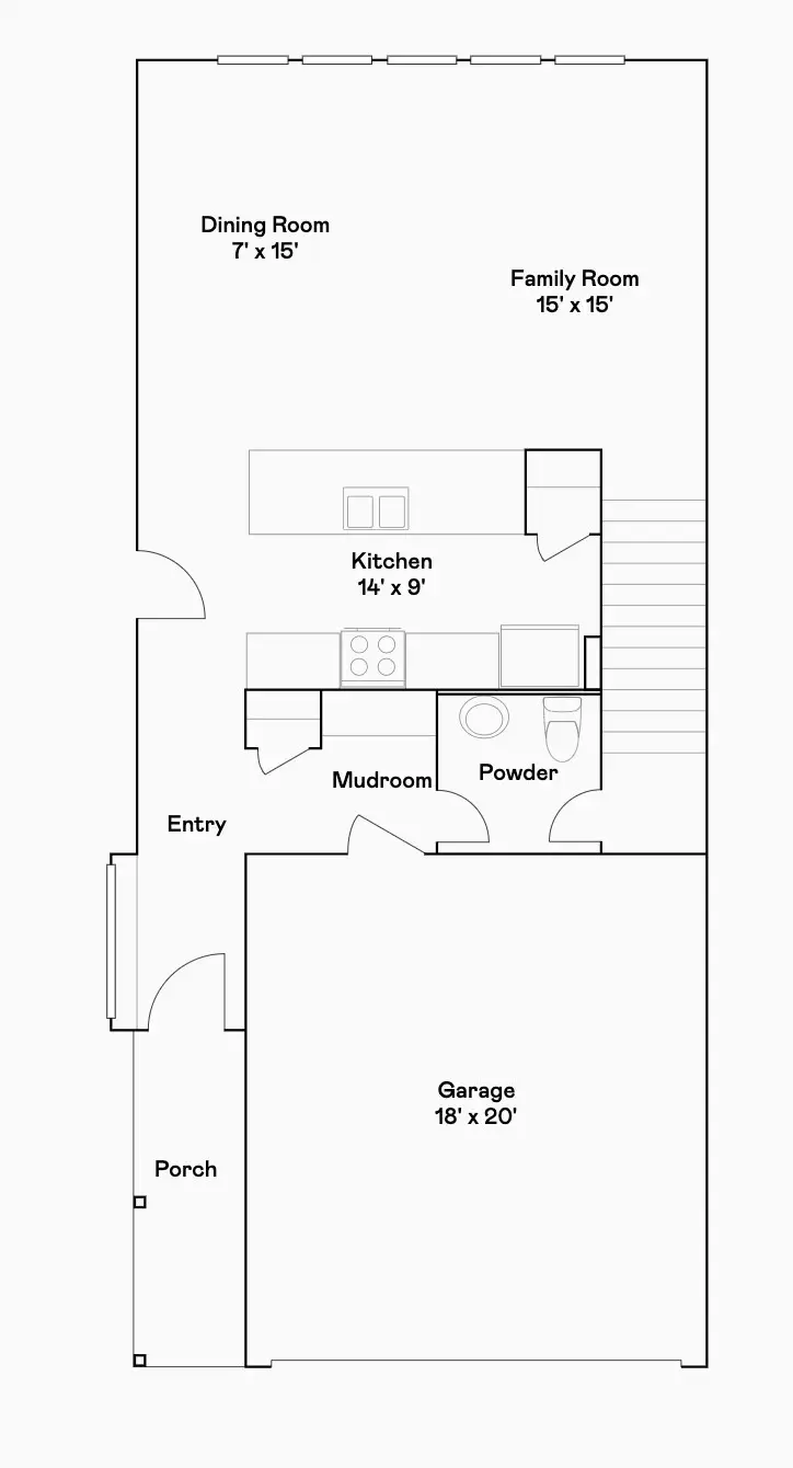
NEW! Lennar Urban Villas Collection "Allen II" Plan with Stone Elevation "BM" in the Beautiful Community of Piccolina! A two-story home with an open first-floor layout that includes a kitchen, dining room and a family room. Upstairs boasts two secondary bedrooms, with one offering flexibility as a work or play space. The owner’s suite highlights a private bathroom with a walk-in closet.
Contact an agent
Home facts
- Year built:2025
- Listing ID #:10203590
- Updated:April 06, 2026 at 05:19 AM
Rooms and interior
- Bedrooms:3
- Total bathrooms:2
- Full bathrooms:2
- Rooms Total:6
Heating and cooling
- Cooling:Central Air, Electric
- Heating:Central, Gas
- Central air:Yes
Structure and exterior
- Roof:Composition
- Year built:2025
- Architectural Style:Traditional
- Construction Materials:Cement Siding, Stone
- Foundation Description:Slab
- Levels:2 Stories
Schools
- High school:WORTHING HIGH SCHOOL
- Middle school:ATTUCKS MIDDLE SCHOOL
- Elementary school:YOUNG ELEMENTARY SCHOOL (HOUSTON)
Finances and disclosures
- Price:
Features and amenities
- Amenities:Gated
Parking
- Parking description:Garage
- Garage:Yes
- Garage spaces:2
New listings near 2209 Via Isa Lane
- New
$129,000Active2 beds 2 baths1,093 sq. ft.10202 Forum Park Dr #14, Houston, TX 77036
MLS# 47917080Listed by: RONALD CLARENCE REDD - New
$567,000Active3 beds 3 baths1,996 sq. ft.1718 Droxford Drive, Houston, TX 77008
MLS# 34435919Listed by: REALM REAL ESTATE PROFESSIONALS - SUGAR LAND - New
$259,995Active4 beds 2 baths2,073 sq. ft.5317 Shady Maple Drive, Houston, TX 77339
MLS# 94229201Listed by: AAA REALTY
$479,000Pending3 beds 3 baths2,100 sq. ft.140 E 37th, Houston, TX 77018
MLS# 55755033Listed by: CENTRAL METRO REALTY- New
$479,000Active3 beds 3 baths2,100 sq. ft.136 E 37th Street, Houston, TX 77018
MLS# 27092296Listed by: CENTRAL METRO REALTY - New
$85,500Active1 beds 1 baths736 sq. ft.9707 Richmond Avenue #134, Houston, TX 77042
MLS# 38128843Listed by: BETTER HOMES AND GARDENS REAL ESTATE GARY GREENE - LAKE HOUSTON - New
$1,165,000Active2 beds 3 baths2,690 sq. ft.5100 San Felipe Street #194, Houston, TX 77056
MLS# 79364622Listed by: WEICHERT, REALTORS - THE MURRAY GROUP - New
$140,000Active1 beds 1 baths826 sq. ft.1804 Stoney Brook Drive #202, Houston, TX 77063
MLS# 2596323Listed by: REAL HAVEN REALTY LLC - New
$289,000Active4 beds 2 baths2,082 sq. ft.15407 Runswick Drive, Houston, TX 77062
MLS# 14873515Listed by: KELLER WILLIAMS REALTY SOUTHWEST - New
$79,500Active2 beds 2 baths700 sq. ft.2120 Wilcrest Drive #121, Houston, TX 77042
MLS# 26183528Listed by: ALPHAMAX REALTY INC.