3412 Osprey Drive, Hurst, TX 76054
Local realty services provided by:ERA Courtyard Real Estate
3412 Osprey Drive,Hurst, TX 76054
$1,281,900
- 5 Beds
- 6 Baths
- 4,221 sq. ft.
- Single family
- Active
Listed by: lee jones
Office: perry homes realty llc.
MLS#:21246497
Source:GDAR
Price summary
- Price:$1,281,900
- Price per sq. ft.:$303.7
- Monthly HOA dues:$83.33
About this home
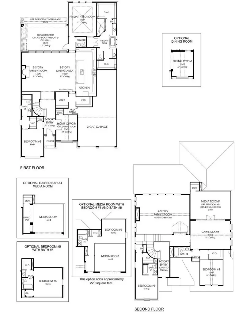
Former Model Home. Two-story entry with 20-foot ceiling. Hardwood floors throughout living areas. Home office with French doors set at entry. Two-story family room and dining area with a sliding glass door. Kitchen has an island with built-in seating space and a spacious walk-in pantry. Primary suite with a wall of windows. Primary bath has a double door entry, dual vanities, a freestanding tub, a separate glass-enclosed shower and two walk-in closets. A guest suite with private bathroom just off the front entry. Second floor hosts a large game room, a media room with an additional storage space, and secondary bedrooms including a guest suite with a full bathroom and walk-in closet. Covered backyard patio with an exterior fireplace and grill. Model home upgrades include accent paint, drapes, alarm system, sprinkler system, and additional landscaping. Three-car garage.
Contact an agent
Home facts
- Year built:2026
- Listing ID #:21246497
- Added:2 day(s) ago
- Updated:April 24, 2026 at 11:51 AM
Rooms and interior
- Bedrooms:5
- Total bathrooms:6
- Full bathrooms:5
- Half bathrooms:1
- Flooring:Tile, Wood
- Kitchen Description:Built In Gas Range, Dishwasher, Disposal, Gas Oven, Microwave
- Living area:4,221 sq. ft.
Heating and cooling
- Cooling:Zoned
- Heating:Zoned
Structure and exterior
- Roof:Composition
- Year built:2026
- Building area:4,221 sq. ft.
- Lot area:0.22 Acres
- Lot Features:Few Trees, Sprinkler System, Subdivision
- Architectural Style:Traditional
- Construction Materials:Brick, Stone Veneer
- Foundation Description:Slab
- Levels:2 Story
Schools
- High school:Keller
- Middle school:Keller
- Elementary school:Liberty
Finances and disclosures
- Price:$1,281,900
- Price per sq. ft.:$303.7
Features and amenities
- Appliances:Built In Gas Range, Dishwasher, Disposal, Gas Oven, Gas Water Heater, Microwave, Tankless Water Heater
- Amenities:Carbon Monoxide Detectors, Prewired, Smoke Detectors
Parking
- Garage:Yes
- Garage spaces:3
New listings near 3412 Osprey Drive
- Open Sat, 11am to 2pmNew
$400,000Active3 beds 3 baths1,870 sq. ft.2121 Mountainview Drive, Hurst, TX 76054
MLS# 21243582Listed by: KELLER WILLIAMS REALTY-FM - New
$465,000Active3 beds 2 baths2,021 sq. ft.713 Ashley Drive, Hurst, TX 76054
MLS# 21249052Listed by: ROLLING PLAINS REALTY - New
$289,000Active3 beds 2 baths1,406 sq. ft.716 Norwood Drive, Hurst, TX 76053
MLS# 21248591Listed by: ONDEMAND REALTY - Open Sat, 12 to 2pmNew
$415,000Active3 beds 2 baths1,874 sq. ft.2228 Mountainview Drive, Hurst, TX 76054
MLS# 21244527Listed by: MARTIN REALTY GROUP
$1,331,900Pending5 beds 7 baths5,018 sq. ft.700 Doppler Court, Hurst, TX 76054
MLS# 21246599Listed by: PERRY HOMES REALTY LLC- New
$350,000Active4 beds 2 baths1,775 sq. ft.233 Billy Creek Drive, Hurst, TX 76053
MLS# 21243537Listed by: FATHOM REALTY, LLC
$1,348,900Pending5 beds 7 baths5,018 sq. ft.3500 Stealth Run, Hurst, TX 76054
MLS# 21244393Listed by: PERRY HOMES REALTY LLC- New
$1,310,900Active4 beds 4 baths3,455 sq. ft.708 Bear Creek Drive, Hurst, TX 76054
MLS# 21244122Listed by: PERRY HOMES REALTY LLC - New
$315,000Active3 beds 2 baths1,500 sq. ft.1229 Brookside Drive, Hurst, TX 76053
MLS# 21242234Listed by: DAY REAL ESTATE