6300 W Fm 1004, Kirbyville, TX 75956
Local realty services provided by:American Real Estate ERA Powered
Listed by: brittney y'barbo
Office: southeast texas realty
MLS#:5107493
Source:TX_LAOR
Price summary
- Price:$195,000
- Price per sq. ft.:$120.37
About this home
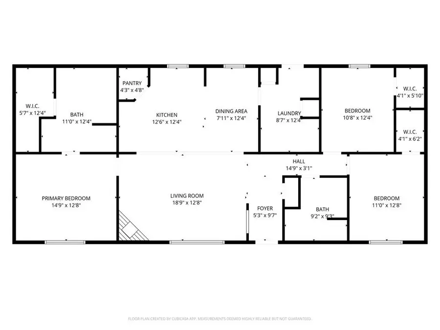
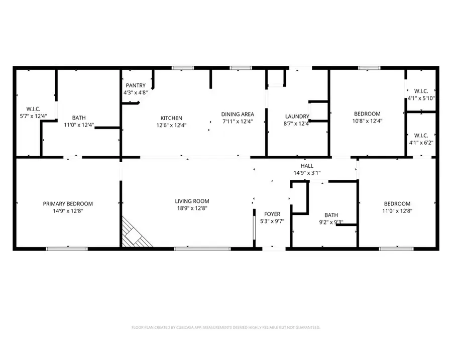
Move-in ready 3-bedroom, 2-bath home on a cleared 1-acre lot just 8 minutes from Buna. This well-maintained property features a new metal roof, new skirting, recently leveled foundation, upgraded water well components, newer HVAC system, and a newer aerobic system. Enjoy covered front and back porches, a double carport, and a storage building with lean-to. Inside offers an open-concept living, dining, and kitchen area with a corner pantry. The oversized laundry room includes abundant storage, a folding table, and freezer space. The primary suite features double vanities, a soaking tub, separate shower, and walk-in closet. Guest bedrooms are generously sized with walk-in closets, and the guest bath offers a tub/shower combo with extra vanity space.
Contact an agent
Home facts
- Year built:2011
- Listing ID #:5107493
- Added:89 day(s) ago
- Updated:February 10, 2026 at 04:06 PM
Rooms and interior
- Bedrooms:3
- Total bathrooms:2
- Full bathrooms:2
- Flooring:Carpet, Vinyl
- Kitchen Description:Dishwasher, Microhood, Range, Self Cleaning Oven
- Living area:1,620 sq. ft.
Heating and cooling
- Cooling:Central Electric
- Heating:Electric
Structure and exterior
- Roof:Metal
- Year built:2011
- Building area:1,620 sq. ft.
- Lot area:1 Acres
- Architectural Style:Manufactured Home
- Construction Materials:Vinyl Siding
- Exterior Features:Covered Front Porch
Utilities
- Water:Well
Finances and disclosures
- Price:$195,000
- Price per sq. ft.:$120.37
- Tax amount:$762
Features and amenities
- Appliances:Microhood, Range
Parking
- Parking description:Carport Double Detached
New listings near 6300 W Fm 1004
- New
$179,000Active3 beds 3 baths1,724 sq. ft.611 W Trout, Kirbyville, TX 75956-1533
MLS# 266171Listed by: NB ELITE REALTY
$85,000Active16.87 Acres12342 Hwy 87 S, Kirbyville, TX 75956
MLS# 65106312Listed by: SOUTHEAST TEXAS REALTY- New
$297,555Active19.84 Acres9470 US 96 S Hwy. 96 South, Kirbyville, TX 75956
MLS# 70012394Listed by: SOUTHEAST TEXAS REALTY - New
$275,000Active4 beds 2 baths1,716 sq. ft.285 County Road 564, Kirbyville, TX 75956
MLS# 265883Listed by: SOUTHEAST TEXAS REALTY
$227,400Active0.5 Acres1612 S MARGARET, Kirbyville, TX 75956
MLS# 265793Listed by: JNK HOME & LAND, LLC
$299,900Active3 beds 2 baths1,593 sq. ft.498 County Road 459, Kirbyville, TX 75956
MLS# 265764Listed by: PROPERTY PROS REAL ESTATE & CO
$33,000Active3.13 AcresTBD County Road 3073, Kirbyville, TX 75956
MLS# 70012282Listed by: JLA REALTY
Listed by ERA$205,000Active48.76 Acres3072 & 3075 Cr, Kirbyville, TX 75956
MLS# 70361158Listed by: AMERICAN REAL ESTATE MIDCOUNTY
$489,000Active7 beds 4 baths4,915 sq. ft.22295 Us Highway 96 S, Kirbyville, TX 75956
MLS# 36170068Listed by: KAREN DAVIS PROPERTIES
$459,900Active3 beds 2 baths1,828 sq. ft.12262 Us Hwy 96, Kirbyville, TX 75956
MLS# 64210228Listed by: 1ST CHOICE REAL ESTATE