419 6th Street, Magnolia, TX 77355

Local realty services provided by:ERA Experts
419 6th Street,Magnolia, TX 77355
$774,990
  • 5 Beds
  • 5 Baths
  • 3,907 sq. ft.
  • Single family
  • Active
Listed by: heather chavana
Office: m/i homes
MLS#:38712595
Source:HARMLS

Price summary

  • Price:$774,990
  • Price per sq. ft.:$198.36
  • Monthly HOA dues:$20.83

About this home

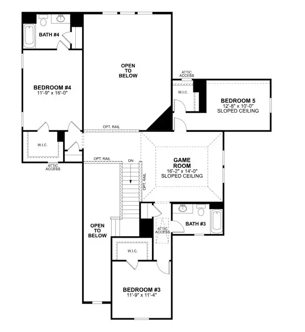
LOW TAX RATE OF 1.86% - NO MUD. HUGE HOMESITE – APROX 350’ DEEP! NO BACK NEIGHBORS! Introducing the Salado plan! This 3,907-square-foot home sits on a half-acre and has 5 bedrooms and 4.5 baths. As you enter through the open foyer, you see a bedroom and a study. The home's design is an open-concept dining room, kitchen, breakfast area, and family room, with a fireplace and ceilings opening to the second floor. Enter your owner's suite through a private entry from the family room. The large owner's bedroom features beautiful, sloped ceilings and a bay window for extra space and plenty of natural light. Through the double doors in the bedroom, enter your private bathroom retreat, complete with an impressive walk-in closet, a soaking tub, and a walk-in shower. Upstairs, you will find an open view into the family room, a spacious game room, 2 full bathrooms, and 3 additional bedrooms— Head outside to your covered extended patio, perfect for outdoor entertaining. Contact us to learn more!

Contact an agent

contact an agent

Yes, I would like more information. Please use and/or share my information with an ERA®  affiliated agent to contact me about my real estate needs. By clicking Send message, I request to be contacted by phone or text message and consent to being contacted by automated means. I understand that my consent to receive calls or texts is not a condition of purchasing any property, goods, or services. Alternatively, I understand that I can access real estate services by email or I can contact the agent myself.

If an ERA®  affiliated agent is not available in the area where I need assistance, I agree to be contacted by a real estate agent affiliated with another brand owned or licensed by Anywhere Real Estate (BHGRE® , CENTURY 21® , Coldwell Banker® , Corcoran® , Sotheby's International Realty® ).
 I acknowledge that I have read and agree to theTerms of useandPrivacy notice

Home facts

  • Year built:2026
  • Listing ID #:38712595
  • Updated:April 08, 2026 at 12:19 PM

Rooms and interior

  • Bedrooms:5
  • Total bathrooms:5
  • Full bathrooms:4
  • Half bathrooms:1
  • Rooms Total:8
  • Flooring:Carpet, Vinyl
  • Dining Description:Kitchen Dining Combo
  • Bathrooms Description:Separate Shower, Soaking Tub, Tub Shower
  • Kitchen Description:Dishwasher, Disposal, Double Oven, Gas Cooktop, Gas Oven, Kitchen Dining Combo, Kitchen Family Room Combo, Kitchen Island, Microwave, Walk In Pantry
  • Living area:3,907 sq. ft.

Heating and cooling

  • Cooling:Central Air, Electric
  • Heating:Central, Gas
  • Central air:Yes

Structure and exterior

  • Year built:2026
  • Building area:3,907 sq. ft.
  • Lot Features:Subdivision
  • Architectural Style:Traditional
  • Construction Materials:Brick
  • Exterior Features:Fence, Patio, Sprinkler Irrigation
  • Foundation Description:Slab
  • Levels:2 Stories

Schools

  • High school:MAGNOLIA WEST HIGH SCHOOL
  • Middle school:MAGNOLIA JUNIOR HIGH SCHOOL
  • Elementary school:MAGNOLIA ELEMENTARY SCHOOL (MAGNOLIA)

Utilities

  • Sewer:Public Sewer

Finances and disclosures

  • Price:$774,990
  • Price per sq. ft.:$198.36

Features and amenities

  • Appliances:Dishwasher, Disposal, Double Oven, Gas Cooktop, Gas Oven, Microwave
  • Amenities:Ceiling Fans, Programmable Thermostat, Security System - Owned

Parking

  • Parking description:Garage
  • Garage:Yes
  • Garage spaces:3
Copyright 2026, Houston Realtors Information Service, Inc. All information provided is deemed reliable but is not guaranteed and should be independently verified. IDX information is provided exclusively for consumers' personal, non-commercial use, it may not be used for any purpose other than to identify prospective properties consumers may be interested in purchasing, and the data is deemed reliable but is not guaranteed accurate by the MLS.