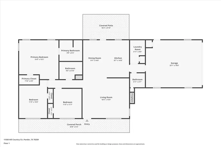
11550 Hill Country Circle, Ponder, TX 76259
Local realty services provided by:ERA Myers & Myers Realty
Listed by: lisa mercer940-206-6657
Office: top 10 realty
MLS#:21130690
Source:GDAR
Price summary
- Price:$429,900
- Price per sq. ft.:$270.38
About this home
Are you dreaming of a little extra space? This precious home on over 1 acre has lots to offer. New paint inside and out is so inviting. The long, front porch is perfect for rocking and watching the sun set. The home is light and bright, and the windows are sporting new 2 inch blinds . Walking in the front door you are welcomed by an open floor plan. The living area has a stacked stone fireplace with a wooden mantle. The kitchen has freshly stained custom cabinets, center island and double ovens. The living and dining areas have new, updated ceiling fans. The primary bedroom is tucked away at the back of the house, and the primary bath has a jetted tub and separate shower. The two spare bedrooms share a hall bath, and there is a half bath conveniently located near the kitchen and garage area. Outside you will find a working man's dream of large shop to store equipment, toys, cars, etc. If you have been wanting to try your hand at raising chickens to have some farm fresh eggs, you will love the custom built, covered coop. It could also function as a very large dog kennel or a covered area for goats. No HOA. This home has so much to offer. Don't wait too long. Schedule your viewing today.
Contact an agent
Home facts
- Year built:2001
- Listing ID #:21130690
- Added:1 day(s) ago
- Updated:December 12, 2025 at 05:42 AM
Rooms and interior
- Bedrooms:3
- Total bathrooms:3
- Full bathrooms:2
- Half bathrooms:1
- Living area:1,590 sq. ft.
Heating and cooling
- Cooling:Central Air, Electric
- Heating:Central, Electric
Structure and exterior
- Roof:Composition
- Year built:2001
- Building area:1,590 sq. ft.
- Lot area:1.25 Acres
Schools
- High school:Ponder
- Elementary school:Ponder
Finances and disclosures
- Price:$429,900
- Price per sq. ft.:$270.38
- Tax amount:$5,789
New listings near 11550 Hill Country Circle
- New
$303,900Active3 beds 3 baths1,890 sq. ft.13404 Turtle Mountain Road, Ponder, TX 76259
MLS# 21131066Listed by: LGI HOMES - New
$307,900Active3 beds 3 baths2,045 sq. ft.8317 Columbia Falls Road, Ponder, TX 76259
MLS# 21131087Listed by: LGI HOMES - New
$319,900Active3 beds 3 baths2,232 sq. ft.8313 Silverbow Drive, Ponder, TX 76259
MLS# 21131099Listed by: LGI HOMES - New
$230,900Active2 beds 2 baths996 sq. ft.8316 White Wolf Trail, Ponder, TX 76259
MLS# 21130805Listed by: LGI HOMES - New
$234,900Active2 beds 2 baths996 sq. ft.8209 White Wolf Trail, Ponder, TX 76259
MLS# 21130827Listed by: LGI HOMES - New
$515,000Active5 beds 4 baths3,756 sq. ft.309 Pineview Lane, Ponder, TX 76259
MLS# 21129642Listed by: EXP REALTY LLC - New
$799,000Active3 beds 2 baths2,518 sq. ft.125 George Owens Road, Ponder, TX 76259
MLS# 21127530Listed by: LOCAL PRO REALTY LLC - New
$350,000Active5 beds 3 baths2,502 sq. ft.13608 Mineral Road, Ponder, TX 76259
MLS# 21127471Listed by: DHS REALTY - Open Sat, 1 to 3pmNew
$650,000Active4 beds 4 baths3,321 sq. ft.13512 Prairie Vista Lane, Ponder, TX 76259
MLS# 21127091Listed by: RENDON REALTY, LLC