7608 Spicebush Drive, Ponder, TX 76259
Local realty services provided by:ERA Courtyard Real Estate
7608 Spicebush Drive,Denton, TX 76259
$342,889
- 3 Beds
- 2 Baths
- 1,756 sq. ft.
- Single family
- Active
Listed by: robert powley210-421-9291
Office: escape realty
MLS#:21226820
Source:GDAR
Price summary
- Price:$342,889
- Price per sq. ft.:$195.27
- Monthly HOA dues:$65
About this home
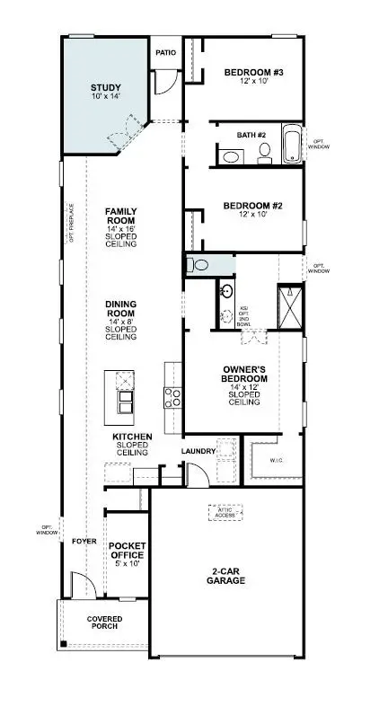
Built by MI Homes, this brand-new home is located at 7608 Spicebush Drive in Ponder, TX. This single-story house is designed for an easy lifestyle, featuring a bright and open layout where every room is conveniently located on one level.
Key Features:
• 3 comfortable bedrooms, including an owner’s suite tucked into its own private corner
• 2 full bathrooms finished with modern fixtures and professional craftsmanship
• Central open-concept hub that joins the kitchen and family room for a social atmosphere
• New construction with pristine surfaces and energy-efficient building standards
Neighborhood & Location Benefits:
• Situated in a welcoming Ponder community with a friendly, residential atmosphere
• Excellent proximity to nearby parks and green spaces for an active lifestyle
• A perfect residential setting that balances a quiet retreat with easy access to neighborhood favorites
The interior is designed for a natural flow, with a central gathering space that brings the main living areas together for effortless daily routines. Because the owner's suite is situated in its own private corner of the home, it provides a quiet sanctuary separate from the secondary bedrooms. These additional rooms offer plenty of flexibility, whether you need space for guests, a hobby room, or a dedicated home office, all on one convenient level without a single stair to climb.
This move-in-ready property offers the perfect combination of simple single-story convenience and a modern, airy design in a great location.
Schedule a visit today!...
Contact an agent
Home facts
- Year built:2026
- Listing ID #:21226820
- Added:1 day(s) ago
- Updated:April 03, 2026 at 07:48 PM
Rooms and interior
- Bedrooms:3
- Total bathrooms:2
- Full bathrooms:2
- Flooring:Carpet, Luxury Vinyl Plank
- Kitchen Description:Dishwasher, Disposal, Gas Range, Microwave, Vented Exhaust Fan, Water Purifier
- Living area:1,756 sq. ft.
Heating and cooling
- Cooling:Ceiling Fans, Central Air, Electric
- Heating:Central, Natural Gas
- Central air:Yes
Structure and exterior
- Roof:Composition
- Year built:2026
- Building area:1,756 sq. ft.
- Lot area:0.11 Acres
- Lot Features:Few Trees, Landscaped, Sprinkler System, Subdivision
- Architectural Style:Traditional
- Construction Materials:Brick
- Foundation Description:Slab
- Levels:1 Story
Schools
- High school:Krum
- Middle school:Krum
- Elementary school:Dixie Hansel
Finances and disclosures
- Price:$342,889
- Price per sq. ft.:$195.27
Features and amenities
- Appliances:Dishwasher, Disposal, Gas Range, Gas Water Heater, Microwave, Tankless Water Heater, Vented Exhaust Fan, Water Purifier
- Amenities:Carbon Monoxide Detectors, Smoke Detectors, Window Coverings
Parking
- Garage:Yes
- Garage spaces:2
New listings near 7608 Spicebush Drive
- New
$260,900Active2 beds 2 baths996 sq. ft.8316 White Wolf Trail, Ponder, TX 76259
MLS# 21227580Listed by: LGI HOMES - New
$343,990Active4 beds 3 baths2,087 sq. ft.509 Red Admiral Lane, Denton, TX 76259
MLS# 21224632Listed by: CENTURY 21 MIKE BOWMAN, INC. - New
$341,990Active4 beds 3 baths2,087 sq. ft.421 Red Admiral Lane, Denton, TX 76259
MLS# 21224697Listed by: CENTURY 21 MIKE BOWMAN, INC. - New
$352,990Active4 beds 3 baths2,367 sq. ft.429 Red Admiral Lane, Denton, TX 76259
MLS# 21224728Listed by: CENTURY 21 MIKE BOWMAN, INC. - New
$675,000Active8.57 Acres717 Smith Road, Ponder, TX 76259
MLS# 21224678Listed by: MAJOR LEAGUE REALTY, INC. - New
$689,900Active3 beds 3 baths2,543 sq. ft.9251 Old Stoney Road, Ponder, TX 76259
MLS# 21110080Listed by: KELLER WILLIAMS ROCKWALL - New
$289,000Active4 beds 3 baths2,056 sq. ft.13522 Granite Park Road, Ponder, TX 76259
MLS# 21220631Listed by: BERKSHIRE HATHAWAYHS PENFED TX - New
$565,000Active3 beds 2 baths1,456 sq. ft.1541 Seaborn Road, Ponder, TX 76259
MLS# 21221874Listed by: JOSEPH WALTER REALTY, LLC - New
$356,900Active3 beds 3 baths2,045 sq. ft.14004 Golden Valley Road, Ponder, TX 76259
MLS# 21220344Listed by: LGI HOMES - Open Sat, 11am to 2pmNew
$295,000Active3 beds 2 baths1,698 sq. ft.406 Calder Lane, Ponder, TX 76259
MLS# 21219624Listed by: POST OAK REALTY, LLC