126 Tall Cedar Way, Princeton, TX 75407
Local realty services provided by:ERA Newlin & Company
126 Tall Cedar Way,Princeton, TX 75407
$244,990Last list price
- 4 Beds
- 3 Baths
- - sq. ft.
- Single family
- Sold
Listed by: david clinton512-345-4663
Office: d.r. horton, america's builder
MLS#:21166595
Source:GDAR
Sorry, we are unable to map this address
Price summary
- Price:$244,990
- Monthly HOA dues:$41.67
About this home
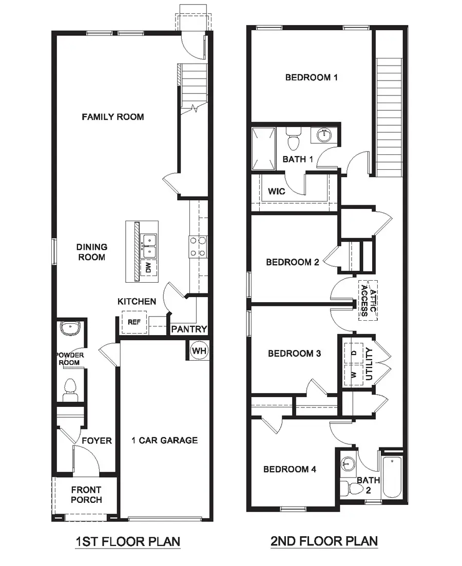
New homes in Princeton, TX! Welcome to Arbor Trails! This gorgeous new Express homes community is located in Collin County, Branch ,Princeton area off CR 437. DR Horton, your new home builder, we offer 3 different plans in Arbor Trails ranging from a 2 2.5 1 1,130 sq ft to a 4 2.5 1 that's 1,549 sq ft.
Contact an agent
Home facts
- Year built:2026
- Listing ID #:21166595
- Added:60 day(s) ago
- Updated:April 01, 2026 at 06:01 AM
Rooms and interior
- Bedrooms:4
- Total bathrooms:3
- Full bathrooms:2
- Half bathrooms:1
- Flooring:Carpet, Laminate
- Kitchen Description:Dishwasher, Disposal, Electric Oven, Electric Range
Heating and cooling
- Cooling:Central Air, Electric
- Heating:Central, Electric
- Central air:Yes
Structure and exterior
- Roof:Composition
- Year built:2026
- Construction Materials:Frame
- Foundation Description:Slab
- Levels:2 Story
Schools
- High school:Princeton
- Middle school:Mattei
- Elementary school:Mayfield
Finances and disclosures
- Price:$244,990
Features and amenities
- Appliances:Dishwasher, Disposal, Electric Oven, Electric Range
- Amenities:Carbon Monoxide Detectors, Smoke Detectors
Parking
- Garage:Yes
- Garage spaces:1
New listings near 126 Tall Cedar Way
- New
$1,680,000Active4 beds 3 baths2,819 sq. ft.251 S 2nd Street, Princeton, TX 75407
MLS# 21222252Listed by: TXU REALTY LLC - New
$427,700Active4 beds 3 baths2,626 sq. ft.1607 Dove Drive, Princeton, TX 75407
MLS# 21224555Listed by: RE/MAX DFW ASSOCIATES - New
$289,990Active3 beds 2 baths1,800 sq. ft.3001 Cantoni Creek, Princeton, TX 75407
MLS# 21224309Listed by: NOVUS REAL ESTATE - New
$899,000Active4 beds 4 baths3,358 sq. ft.3511 Harvest Way, Princeton, TX 75407
MLS# 21211144Listed by: COPE REALTY, LLC - New
$339,000Active3 beds 2 baths1,981 sq. ft.3002 Cantoni Creek, Princeton, TX 75407
MLS# 21223876Listed by: JAGJIT SINGH - New
$459,000Active4 beds 5 baths3,505 sq. ft.611 Parrino Parkway, Princeton, TX 75407
MLS# 21223900Listed by: JAGJIT SINGH - New
$264,900Active3 beds 2 baths1,619 sq. ft.2201 Old Harbor Way, Princeton, TX 75407
MLS# 46059175Listed by: JLA REALTY - New
$328,872Active3 beds 2 baths1,833 sq. ft.5911 Broadacre Drive, Princeton, TX 75071
MLS# 21220723Listed by: MERITAGE HOMES REALTY - New
$454,624Active4 beds 4 baths3,100 sq. ft.5907 Broadacre Drive, Princeton, TX 75071
MLS# 21220727Listed by: MERITAGE HOMES REALTY - New
$215,000Active3 beds 3 baths1,595 sq. ft.328 Marsh Lane, Princeton, TX 75407
MLS# 21222838Listed by: VICKIES REAL ESTATE GROUP, INC