2721 Prestonshire Lane, Prosper, TX 75078
Local realty services provided by:ERA Newlin & Company
Listed by: ccb realty stanley
Office: american legend homes
MLS#:21221293
Source:GDAR
Price summary
- Price:$1,161,745
- Price per sq. ft.:$270.05
- Monthly HOA dues:$127
About this home
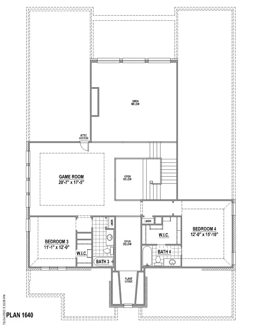
Experience exceptional living in this stunning 5-bedroom home featuring a spacious 3-car tandem garage on a desirable North facing lot. Designed for convenience and luxury, the first floor offers both the primary suite and a second bedroom, ideal for guests or multi generational living, along with a private study perfect for working from home. The heart of the home is the expansive chef’s kitchen, showcasing ceiling height cabinetry, commercial grade appliances, upgraded countertops and a butler’s pantry paired with a generous walk-in pantry. The kitchen flows seamlessly into a large dining area and an impressive living room, all overlooking the spacious covered patio—perfect for entertaining. The primary suite is a true retreat with a luxurious bath featuring a free standing tub, oversized walk-in shower and a huge closet. Upstairs, you’ll find three additional bedrooms, each with its own full bath, plus a game room and media room offering endless possibilities. Throughout the home, enjoy extensive wood flooring, wood tread stairs, elegant lighting and thoughtful upgrades at every turn. This home combines style, comfort and functionality in every space....
Contact an agent
Home facts
- Year built:2026
- Listing ID #:21221293
- Added:48 day(s) ago
- Updated:May 15, 2026 at 11:55 AM
Rooms and interior
- Bedrooms:5
- Total bathrooms:6
- Full bathrooms:5
- Half bathrooms:1
- Flooring:Carpet, Ceramic Tile, Hardwood
- Kitchen Description:Dishwasher, Disposal, Double Oven, Gas Cooktop, Microwave, Vented Exhaust Fan
- Living area:4,302 sq. ft.
Heating and cooling
- Cooling:Attic Fan, Ceiling Fans, Central Air, Zoned
- Heating:Central, Zoned
- Central air:Yes
Structure and exterior
- Roof:Composition
- Year built:2026
- Building area:4,302 sq. ft.
- Lot area:0.2 Acres
- Lot Features:Interior Lot, Landscaped, Lawn, Sprinkler System, Subdivision
- Architectural Style:Traditional
- Construction Materials:Brick
- Foundation Description:Slab
- Levels:2 Story
Schools
- High school:Prosper
- Middle school:Moseley
- Elementary school:Joyce Hall
Finances and disclosures
- Price:$1,161,745
- Price per sq. ft.:$270.05
Features and amenities
- Appliances:Dishwasher, Disposal, Double Oven, Gas Cooktop, Microwave, Tankless Water Heater, Vented Exhaust Fan
- Amenities:Air Purifier, Carbon Monoxide Detectors, Prewired, Security System, Smoke Detectors
Parking
- Garage:Yes
- Garage spaces:3
New listings near 2721 Prestonshire Lane
- New
$1,050,000Active5 beds 6 baths3,915 sq. ft.2531 Whitewood Drive, Prosper, TX 75078
MLS# 21271344Listed by: STARPRO REALTY INC. - Open Sat, 1 to 5pmNew
$1,050,000Active4 beds 4 baths3,471 sq. ft.971 Elk Ridge Road, Prosper, TX 75078
MLS# 21267525Listed by: ROBINSON TEAM REAL ESTATE, LLC - New
$520,000Active4 beds 2 baths1,989 sq. ft.4213 Petunia Way, Prosper, TX 75078
MLS# 21267470Listed by: KV SQUARE REALTY - New
$659,000Active4 beds 4 baths3,101 sq. ft.4710 Crossvine Drive, Prosper, TX 75078
MLS# 21270378Listed by: THE EXCLUSIVE - Open Sat, 1 to 3pmNew
$879,500Active4 beds 3 baths2,565 sq. ft.3740 Brazoria Drive, Prosper, TX 75078
MLS# 21267017Listed by: COLDWELL BANKER APEX, REALTORS - New
$468,900Active3 beds 2 baths1,745 sq. ft.540 Stark Mews, Celina, TX 75009
MLS# 21270695Listed by: PERRY HOMES REALTY LLC - New
$1,150,000Active5 beds 5 baths4,680 sq. ft.1921 Wynne Avenue, Prosper, TX 75078
MLS# 21270748Listed by: CLO DALLAS REALTY LLC - New
$885,000Active4 beds 4 baths3,520 sq. ft.630 Abbey Lane, Prosper, TX 75078
MLS# 21262311Listed by: COLDWELL BANKER REALTY FRISCO - Open Sun, 2 to 4pmNew
$710,000Active6 beds 4 baths3,663 sq. ft.851 White River Drive, Prosper, TX 75078
MLS# 21270145Listed by: FUNK REALTY GROUP, LLC - Open Sat, 12 to 2pmNew
$1,150,000Active4 beds 4 baths3,742 sq. ft.3040 Sunfish Street, Prosper, TX 75078
MLS# 21260125Listed by: MONUMENT REALTY