2318 Kyoshi Court, Richmond, TX 77469
Local realty services provided by:ERA Experts
2318 Kyoshi Court,Richmond, TX 77469
$507,900
- 4 Beds
- 3 Baths
- 2,504 sq. ft.
- Single family
- Pending
Listed by: lee jones
Office: perry homes realty, llc.713-948-6666
MLS#:93566963
Source:HARMLS
Price summary
- Price:$507,900
- Price per sq. ft.:$202.84
- Monthly HOA dues:$62.5
About this home
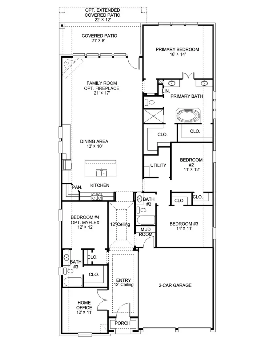
Home office with French doors set at entry with 12-foot ceiling. Extended entry leads to open kitchen, dining area and family room. Kitchen features corner walk-in pantry, a 5-burner gas cooktop, generous counter space and island with built-in seating space. Dining area flows into family room with wall of windows. Primary suite includes double-door entry to primary bath with dual vanities, freestanding tub, separate glass-enclosed shower and two large walk-in closets. A guest suite with private bath adds to this spacious one-story home. Extended covered backyard patio and a 6-zone sprinkler system. Mud room off two-car garage.
Contact an agent
Home facts
- Year built:2025
- Listing ID #:93566963
- Updated:May 13, 2026 at 07:23 AM
Rooms and interior
- Bedrooms:4
- Total bathrooms:3
- Full bathrooms:3
- Rooms Total:7
- Flooring:Carpet, Tile
- Dining Description:Living Dining Room
- Bathrooms Description:Separate Shower, Soaking Tub, Tub Shower
- Kitchen Description:Dishwasher, Disposal, Gas Cooktop, Kitchen Family Room Combo, Kitchen Island, Microwave, Oven, Pantry, Quartz Counters, Walk In Pantry
- Living area:2,504 sq. ft.
Heating and cooling
- Cooling:Central Air, Electric, Zoned
- Heating:Central, Gas, Zoned
- Central air:Yes
Structure and exterior
- Roof:Composition
- Year built:2025
- Building area:2,504 sq. ft.
- Lot Features:Subdivision
- Architectural Style:Traditional
- Construction Materials:Brick, Stone
- Exterior Features:Fence, Patio, Sprinkler Irrigation, Tennis Courts
- Foundation Description:Slab
- Levels:1 Story
Schools
- High school:LAMAR CONSOLIDATED HIGH SCHOOL
- Middle school:LAMAR JUNIOR HIGH SCHOOL
- Elementary school:LONG ELEMENTARY SCHOOL (LAMAR)
Utilities
- Sewer:Public Sewer
Finances and disclosures
- Price:$507,900
- Price per sq. ft.:$202.84
Features and amenities
- Appliances:Dishwasher, Disposal, Gas Cooktop, Microwave, Oven
- Amenities:Ceiling Fans, Entrance Foyer, High Ceilings, Prewired, Smoke Detectors
Parking
- Parking description:Garage
- Garage:Yes
- Garage spaces:2
New listings near 2318 Kyoshi Court
- New
$339,000Active4 beds 3 baths1,876 sq. ft.7215 Colwyn Bay Trail, Richmond, TX 77407
MLS# 14752034Listed by: MARTHA TURNER SOTHEBY'S INTERNATIONAL REALTY - New
$390,000Active4 beds 2 baths2,125 sq. ft.7326 Barrington Ridge Lane, Richmond, TX 77407
MLS# 43179445Listed by: 5TH STREAM REALTY - New
$415,000Active4 beds 3 baths2,902 sq. ft.1107 Copperwood Court, Richmond, TX 77406
MLS# 4550389Listed by: CB&A, REALTORS- SOUTHEAST - Open Sat, 2 to 4pmNew
$558,500Active6 beds 4 baths4,137 sq. ft.1206 Riverchase Drive, Richmond, TX 77469
MLS# 73084804Listed by: NAN & COMPANY PROPERTIES - CORPORATE OFFICE (HEIGHTS) - New
$329,000Active4 beds 2 baths1,860 sq. ft.2917 Willow Gulch Way, Richmond, TX 77469
MLS# 85381716Listed by: CENTRAL METRO REALTY - New
$308,990Active4 beds 2 baths1,720 sq. ft.3407 Brushy Marsh Drive, Richmond, TX 77406
MLS# 91806871Listed by: LENNAR HOMES VILLAGE BUILDERS, LLC - New
$414,900Active4 beds 4 baths2,927 sq. ft.3210 Star Jasmine Lane, Richmond, TX 77406
MLS# 32420237Listed by: CARYN BEARD PROPERTIES - Open Sat, 3 to 5pmNew
$339,995Active4 beds 2 baths2,260 sq. ft.9322 Limestone Ranch Ln, Richmond, TX 77407
MLS# 35436551Listed by: LPT REALTY, LLC - New
$615,000Active5 beds 5 baths4,265 sq. ft.103 Water Bluff Lane, Richmond, TX 77406
MLS# 92374330Listed by: CB&A, REALTORS - New
$425,000Active4 beds 3 baths2,388 sq. ft.7519 Ramsgate Cliff Lane, Richmond, TX 77407
MLS# 49573203Listed by: MDK REALTY ASSOCIATES