14506 Clay Ridge Run, San Antonio, TX 78253
Local realty services provided by:ERA Experts
14506 Clay Ridge Run,San Antonio, TX 78253
$445,880
- 4 Beds
- 3 Baths
- 2,598 sq. ft.
- Single family
- Active
Listed by:r.j. reyes(210) 842-5458, rj@kwthesignaturegroup.com
Office:keller williams heritage
MLS#:1893815
Source:SABOR
Price summary
- Price:$445,880
- Price per sq. ft.:$171.62
- Monthly HOA dues:$65
About this home
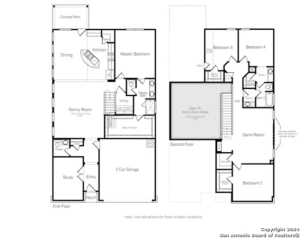
Step into The Caspian floor plan at Riverstone at Westpointe in San Antonio, TX. This home showcases 2 classic front exteriors, full yard landscaping and irrigation and a 2-car garage. Inside this 4 bedroom, 2.5 bathroom home, you will find 2597 square feet of living space designed to meet your needs. The first floor offers an elongated entry way that open to a private study area before continuining to a spacious living room. The living room blends seamlessly into the dining area and kitchen in an open concept floor plan. Your kitchen is built for the ultimate home chef and offers spacious quartz countertops, an oversized kitchen island with a deep, single basin sink, a natural gas cooking range, and stainless steel appliances. Your main bedroom suite is located off the family room and offers quality carpet flooring and a ceiling fan. Large double windows provide plenty of natural light. The ensuite bathroom includes dual vanity sinks, a private room for the toilet, a tiled walk-in shower and a grand walk-in closet. The staircase leads to a spacious game room that is open to the living room below. You'll love this space with its large windows and storage closet. Three secondary bedrooms with walk-in closets and the second full bathroom are located off the game room. Additional features of this home include tall 9-foot ceilings, 2-inch faux wood blinds throughout the home, pre-plumb for water softener loop and more! You'll enjoy added security in your new D.R. Horton home with our Home is Connected features. Using one central hub that talks to all the devices in your home, you can control the lights, thermostat and locks, all from your cellular device.
Contact an agent
Home facts
- Year built:2024
- Listing ID #:1893815
- Added:45 day(s) ago
- Updated:October 04, 2025 at 01:35 PM
Rooms and interior
- Bedrooms:4
- Total bathrooms:3
- Full bathrooms:2
- Half bathrooms:1
- Living area:2,598 sq. ft.
Heating and cooling
- Cooling:One Central
- Heating:Central, Natural Gas
Structure and exterior
- Roof:Composition
- Year built:2024
- Building area:2,598 sq. ft.
- Lot area:0.12 Acres
Schools
- High school:Harlan HS
- Middle school:Bernal
- Elementary school:Chumbley Elementary
Utilities
- Water:Water System
Finances and disclosures
- Price:$445,880
- Price per sq. ft.:$171.62
- Tax amount:$2 (2024)
New listings near 14506 Clay Ridge Run
- New$330,000Active3 beds 2 baths2,037 sq. ft.
6722 Pleasant Bay, San Antonio, TX 78244
MLS# 1912763Listed by: PHYLLIS BROWNING COMPANY - Open Sat, 9am to 4pmNew$349,000Active4 beds 2 baths1,922 sq. ft.
27 Rustic Bend, San Antonio, TX 78230
MLS# 1912758Listed by: KOLB REAL ESTATE LLC - New$257,000Active4 beds 3 baths1,950 sq. ft.
8919 Cosmo, San Antonio, TX 78252
MLS# 1912760Listed by: KELLER WILLIAMS CITY-VIEW - New$384,999Active5 beds 3 baths3,265 sq. ft.
2806 Redriver, San Antonio, TX 78259
MLS# 1912749Listed by: CALL IT CLOSED INTERNATIONAL REALTY - New$159,000Active3 beds 2 baths1,292 sq. ft.
2143 Calle Del Sol, San Antonio, TX 78226
MLS# 1912751Listed by: BARLOWE DALY REALTY - New$150,000Active4 beds 2 baths1,275 sq. ft.
3338 Bob Billa, San Antonio, TX 78223
MLS# 1912752Listed by: ALEXANDER REALTY - New$255,000Active4 beds 2 baths1,820 sq. ft.
12507 Course View, San Antonio, TX 78221
MLS# 1912741Listed by: BARLOWE DALY REALTY - New$380,000Active3 beds 3 baths2,091 sq. ft.
4 Aubrey Ct, San Antonio, TX 78216
MLS# 1912742Listed by: RE/MAX PREFERRED, REALTORS - New$142,500Active4 beds 1 baths1,094 sq. ft.
771 Yucca, San Antonio, TX 78220
MLS# 1912743Listed by: ORCHARD BROKERAGE - New$495,000Active4 beds 2 baths2,273 sq. ft.
13734 Wood Point, San Antonio, TX 78231
MLS# 1912746Listed by: PHYLLIS BROWNING COMPANY