1915 Overlook Knoll, San Antonio, TX 78245

Local realty services provided by:ERA Experts
1915 Overlook Knoll,San Antonio, TX 78245
$315,000
  • 3 Beds
  • 3 Baths
  • 2,103 sq. ft.
  • Single family
  • Active
Listed by: misti rios(210) 710-6585, RiverCityTeam@gmail.com
Office: keller williams heritage
MLS#:1938395
Source:LERA

Price summary

  • Price:$315,000
  • Price per sq. ft.:$149.79
  • Monthly HOA dues:$38.83

About this home

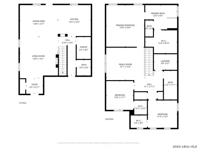
VA assumable loan available at an estimated 3.99% interest rate for qualified buyers. A rare opportunity to secure a significantly lower rate compared to today's market. Buyer must qualify with the lender. Well maintained two story home offering 3 bedrooms, 2.5 baths, and a functional layout with all bedrooms upstairs. The spacious primary suite includes a full bath with separate tub and shower, dual vanity, and walk in closet. Secondary bedrooms are generously sized, along with a versatile loft area ideal for a home office, media room, or play space. The main level features an open living and dining area with neutral finishes and excellent natural light. The kitchen offers granite countertops, ample cabinet space, and convenient access to the backyard, making it ideal for everyday living and entertaining. Enjoy a fully fenced backyard with space to relax, play, or garden. Located with easy access to major highways, Lackland AFB, shopping, dining, and area amenities.

Contact an agent

contact an agent

Yes, I would like more information. Please use and/or share my information with an ERA®  affiliated agent to contact me about my real estate needs. By clicking Send message, I request to be contacted by phone or text message and consent to being contacted by automated means. I understand that my consent to receive calls or texts is not a condition of purchasing any property, goods, or services. Alternatively, I understand that I can access real estate services by email or I can contact the agent myself.

If an ERA®  affiliated agent is not available in the area where I need assistance, I agree to be contacted by a real estate agent affiliated with another brand owned or licensed by Anywhere Real Estate (BHGRE® , CENTURY 21® , Coldwell Banker® , Corcoran® , Sotheby's International Realty® ).
 I acknowledge that I have read and agree to theTerms of useandPrivacy notice

Home facts

  • Year built:2021
  • Listing ID #:1938395
  • Added:12 day(s) ago
  • Updated:February 18, 2026 at 02:43 PM

Rooms and interior

  • Bedrooms:3
  • Total bathrooms:3
  • Full bathrooms:2
  • Half bathrooms:1
  • Living area:2,103 sq. ft.

Heating and cooling

  • Cooling:One Central
  • Heating:Central, Electric

Structure and exterior

  • Roof:Composition
  • Year built:2021
  • Building area:2,103 sq. ft.
  • Lot area:0.12 Acres

Schools

  • High school:Stevens
  • Middle school:Robert Vale
  • Elementary school:Michael

Utilities

  • Water:Water System
  • Sewer:Sewer System

Finances and disclosures

  • Price:$315,000
  • Price per sq. ft.:$149.79
  • Tax amount:$5,917 (2024)
MLS LogoIDX information is provided exclusively for consumers’ personal, non-commercial use, that it may not be used for any purpose other than to identify prospective properties consumers may be interested in purchasing, and that the data is deemed reliable but is not guaranteed accurate by LERA MLS (Local Expertise Regional Access).  The MLS may, at its discretion, require use of other disclaimers as necessary to protect participants and/or the MLS from liability.