5918 Shale Cove, San Antonio, TX 78222
Local realty services provided by:ERA Experts
5918 Shale Cove,San Antonio, TX 78222
$243,000
- 4 Beds
- 3 Baths
- 1,617 sq. ft.
- Single family
- Pending
Listed by: r.j. reyes(210) 842-5458, rj@kwthesignaturegroup.com
Office: keller williams heritage
MLS#:1941930
Source:LERA
Price summary
- Price:$243,000
- Price per sq. ft.:$150.28
- Monthly HOA dues:$32
About this home
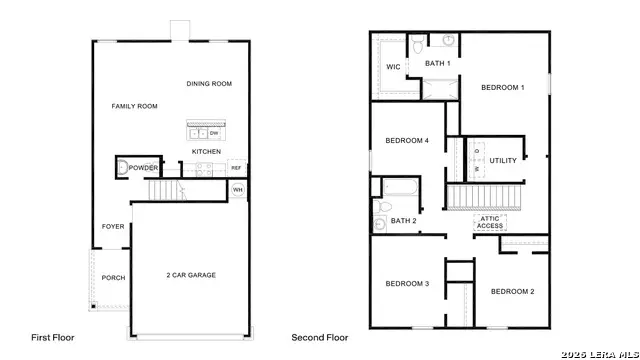
Welcome to The Clyde, a two-story home located at Blue Ridge Ranch in San Antonio, TX. This floor plan offers 2 classic exteriors and 2-car garage. Inside this 4 bedroom, 2.5 bathroom home, you'll find 1617 square feet of living space. The entry opens to a spacious family room before flowing into the dining room and kitchen with an open floorplan concept. The kitchen includes quartz counter tops, quality cabinetry, stainless steel appliances, large breakfast island, and pantry. Head up the stairs to find the main bedroom suite, all secondary bedrooms, the laundry room, and a full bath. The Clyde layout is perfect if you love entertaining downstairs and relaxing upstairs. The private main bedroom features an attractive ensuite with quality cabinetry. A spacious tiled walk-in shower and large walk-in closet provide all the space and convenience you need. Additional features of The Clyde floor plan include sheet vinyl flooring in entry, living room, and all wet areas, quartz counter tops in all bathrooms and HOME IS CONNECTED base package. Using one central hub that talks to all the devices in your home, you can control the lights, thermostat and locks, all from your cellular device....
Contact an agent
Home facts
- Year built:2025
- Listing ID #:1941930
- Added:44 day(s) ago
- Updated:April 03, 2026 at 07:36 AM
Rooms and interior
- Bedrooms:4
- Total bathrooms:3
- Full bathrooms:2
- Half bathrooms:1
- Flooring:Carpeting, Vinyl
- Dining Description:Breakfast Bar, Living Room/Dining Room Combo
- Bathrooms Description:Shower Only, Single Vanity
- Kitchen Description:Breakfast Bar, Disposal, Eat-In Kitchen, Island Kitchen, Solid Counter Tops, Stove/Range
- Bedroom Description:All Bedrooms Upstairs, Full Bath, Master Bedroom Upstairs, Walk-In Closet, Walk-In Closets
- Living area:1,617 sq. ft.
Heating and cooling
- Cooling:One Central
- Heating:Central, Electric
Structure and exterior
- Roof:Composition
- Year built:2025
- Building area:1,617 sq. ft.
- Lot area:0.13 Acres
- Architectural Style:Two Story
- Construction Materials:Cement Fiber, Siding
- Exterior Features:Covered Patio, Privacy Fence, Sprinkler System
- Foundation Description:Slab
- Levels:2 Story
Schools
- High school:East Central
- Middle school:Legacy
- Elementary school:Sinclair
Utilities
- Water:Water System
- Sewer:Sewer System
Finances and disclosures
- Price:$243,000
- Price per sq. ft.:$150.28
- Tax amount:$2 (2025)
Features and amenities
- Laundry features:Dryer Connection, Laundry Upper Level, Washer Connection
- Amenities:Attic - Pull Down Stairs, Electric Water Heater, Park/Playground, Smoke Alarm, Utility Room Inside
Parking
- Parking description:Two Car Garage
New listings near 5918 Shale Cove
- New
$2,200,000Active4 beds 5 baths4,040 sq. ft.7119 Bluff Strand, San Antonio, TX 78257
MLS# 1932057Listed by: KUPER SOTHEBY'S INT'L REALTY - New
$450,000Active3 beds 2 baths2,292 sq. ft.815 Silver Spruce, San Antonio, TX 78232
MLS# 1954667Listed by: KELLER WILLIAMS CITY-VIEW - New
$259,000Active3 beds 2 baths1,274 sq. ft.7219 Spring Drops, San Antonio, TX 78249
MLS# 1954672Listed by: LONE STAR PREMIER REALTY - New
$650,000Active3 beds 3 baths1,792 sq. ft.25216 Campbellton Rd, San Antonio, TX 78264
MLS# 1954673Listed by: VORTEX REALTY - New
$369,500Active3 beds 2 baths1,979 sq. ft.12438 Modena Bay, San Antonio, TX 78253
MLS# 1954679Listed by: RADIANT REALTY - New
$250,000Active4 beds 2 baths1,392 sq. ft.551 Merritt, San Antonio, TX 78227
MLS# 1954683Listed by: VORTEX REALTY - New
$331,445Active3 beds 3 baths1,802 sq. ft.15459 Lonehollow Lake, San Antonio, TX 78253
MLS# 1954686Listed by: EXP REALTY - New
$359,460Active4 beds 3 baths2,396 sq. ft.15455 Lonehollow Lake, San Antonio, TX 78253
MLS# 1954688Listed by: EXP REALTY - New
$372,920Active5 beds 4 baths2,511 sq. ft.15443 Lonehollow Lake, San Antonio, TX 78253
MLS# 1954689Listed by: EXP REALTY - New
$125,000Active2 beds 3 baths1,085 sq. ft.7880 Micron, San Antonio, TX 78251
MLS# 1954701Listed by: OPENDOOR BROKERAGE, LLC