Barndo + 2 ACRE Lot 6 Calk Road, Tioga, TX 76271
Local realty services provided by:ERA Courtyard Real Estate
Listed by: stephen reddy469-847-3753
Office: amazing brokerage, llc.
MLS#:21050131
Source:GDAR
Price summary
- Price:$519,000
- Price per sq. ft.:$346
About this home
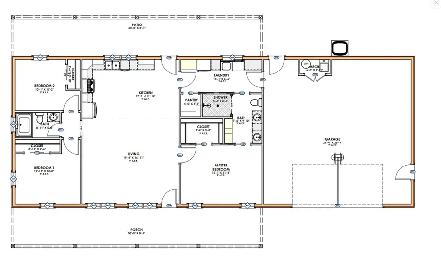
LOOKING TO RETIRE AFFORDABLY ON SOME LAND IN GRAYSON COUNTY?? COUNTRY LIVING AT ITS FINEST ON ALMOST TWO ACRES OF LAND + NEW BARNDO!! 1,500 Square Foot Custom Barndominium on Almost TWO ACRES AVAILABLE NOW in Wild Rose Ranch, Located in Tioga Tx and Close Proximity to Dallas North Tollway! Horse and Animals OK! Location Provides Easy Access to Celina, Prosper and Frisco Plus all the Shopping and Stores Including the Upcoming HEB and Costco. This Barndominium Design Floor Plan is a ONE STORY 1,500 SqFt Home that has 3 Full Bedrooms and 2 Bathrooms with Front Porch and Back Patio PLUS TWO CAR GARAGE. This Barndo is a Hybrid Build with Welded Metal Frame Roof and Wood Frame Walls & Interior. INCLUDES Polished Concrete Floors, 26ga R Panel Siding and Roof, Spray Foam Insulation, 1x4 Base Boards and Trim, Paint Grade Cabinets, Builder Grade Appliances & Builder Grade Fixtures. Located in County Land with Amazingly Low Tax Rate, NO HOA, NO MUD, NO PID! Please Contact the Agent Directly for More Information and Any Questions. You Can Drive by 1177 Calk Rd in Tioga to See the Proposed Lot 6 Where this Home Will be Built as Well as View the Other Lot Locations. This Custom Dream Home Can be Built on Any of the Four Available Lots in Wild Rose Ranch. This Price of 519k Includes Lot 6 - 1.97 Acres - AND Custom Barndomiunium Together! Builder is Wesley Farr Homes LLC, Luxury Home Builder Based in Celina, Tx. Lot is Big Enough for a Pool, Oversized Garage, RV Storage or Mother In Law Suite. Come Retire in the Grayson County and Pay Low Taxes and Still be Close to Major Cities! Get the Best of Both Worlds!
Contact an agent
Home facts
- Year built:2025
- Listing ID #:21050131
- Added:72 day(s) ago
- Updated:November 15, 2025 at 12:42 PM
Rooms and interior
- Bedrooms:3
- Total bathrooms:2
- Full bathrooms:2
- Living area:1,500 sq. ft.
Heating and cooling
- Cooling:Central Air
- Heating:Central
Structure and exterior
- Roof:Metal
- Year built:2025
- Building area:1,500 sq. ft.
- Lot area:1.97 Acres
Schools
- High school:Tioga
- Middle school:Tioga
- Elementary school:Tioga
Finances and disclosures
- Price:$519,000
- Price per sq. ft.:$346
New listings near Barndo + 2 ACRE Lot 6 Calk Road
- New
$2,300,000Active8.4 Acres120 Vaughan, Tioga, TX 76271
MLS# 21112259Listed by: EASY LIFE REALTY
$345,000Active3 beds 2 baths1,885 sq. ft.1206 Cutler Street, Tioga, TX 76271
MLS# 21102573Listed by: MARK SPAIN REAL ESTATE
$67,995Active0.24 AcresTBD Lee Street, Tioga, TX 76271
MLS# 21101480Listed by: POST OAK REALTY
$269,000Active0.92 Acres208 S Porch Street, Tioga, TX 76271
MLS# 21094951Listed by: TRUHOME REAL ESTATE
$2,250,000Active3 beds 3 baths2,701 sq. ft.812 Mckenzie Road, Tioga, TX 76271
MLS# 21095369Listed by: TOP 10 REALTY
$445,000Pending3 beds 2 baths1,674 sq. ft.603 Mohawk Drive, Tioga, TX 76271
MLS# 21094158Listed by: SOUTHERNLIFELIVING.COM
$475,000Active3 beds 2 baths1,644 sq. ft.109 S Florence Street, Tioga, TX 76271
MLS# 21093781Listed by: TEXAS HOMES AND LAND REAL ESTATE, LLC
$180,000Active2 beds 1 baths1,096 sq. ft.800 Cutler Street, Tioga, TX 76271
MLS# 21065182Listed by: MARK SPAIN REAL ESTATE
$444,900Active3 beds 2 baths1,611 sq. ft.700 Arapaho Drive, Tioga, TX 76271
MLS# 21089284Listed by: RE/MAX FIRST REALTY
$465,000Active5 beds 3 baths2,420 sq. ft.608 Finlee Way, Tioga, TX 76271
MLS# 21087457Listed by: EXP REALTY LLC