2071 Sunset Ridge Drive, Weatherford, TX 76087
Local realty services provided by:ERA Steve Cook & Co, Realtors
2071 Sunset Ridge Drive,Weatherford, TX 76087
$485,000
- 4 Beds
- 2 Baths
- 2,003 sq. ft.
- Single family
- Active
Listed by: cassie messer, kevin croft
Office: 221 realty advisors
MLS#:21151039
Source:GDAR
Price summary
- Price:$485,000
- Price per sq. ft.:$242.14
About this home
Welcome to your dream home in the heart of Weatherford, TX! This charming 4-bedroom, 2-bathroom home is situated on a spacious 1 ac lot, offering both privacy and ample space for outdoor activities. The property is fully fenced with durable pipe and no-climb fencing, perfect for pets and kids to play safely. Inside, you'll find a warm and inviting living space, ideal for family gatherings and entertaining. The kitchen is well-appointed with modern appliances, plenty of counter space, and a cozy breakfast nook. The master bedroom features an ensuite bathroom, while the two additional bedrooms share a well-designed second bathroom. Outside, the expansive yard offers endless possibilities for gardening, recreation, or simply enjoying the beautiful weather. Conveniently located near local amenities, schools, and parks, this home combines the tranquility of country living with the convenience of city life. Don't miss the opportunity to make this lovely Weatherford property your own!
Contact an agent
Home facts
- Year built:2023
- Listing ID #:21151039
- Added:1 day(s) ago
- Updated:January 13, 2026 at 11:55 PM
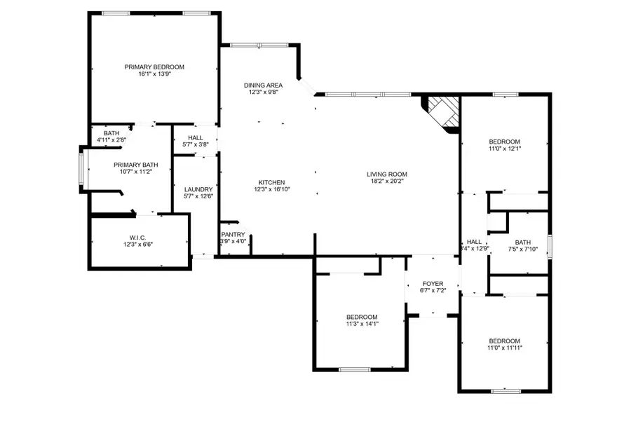
Rooms and interior
- Bedrooms:4
- Total bathrooms:2
- Full bathrooms:2
- Living area:2,003 sq. ft.
Heating and cooling
- Cooling:Ceiling Fans, Central Air, Electric
- Heating:Central, Electric
Structure and exterior
- Roof:Composition
- Year built:2023
- Building area:2,003 sq. ft.
- Lot area:1 Acres
Schools
- High school:Weatherford
- Middle school:Hall
- Elementary school:Austin
Finances and disclosures
- Price:$485,000
- Price per sq. ft.:$242.14
- Tax amount:$8,139
New listings near 2071 Sunset Ridge Drive
- New
$775,000Active3 beds 4 baths2,496 sq. ft.294 Wood Hollow Drive, Weatherford, TX 76087
MLS# 21151029Listed by: ARISE CAPITAL REAL ESTATE
$365,000Active10 AcresTract 1 Carter Road, Weatherford, TX 76085
MLS# 20994461Listed by: ALLIE BETH ALLMAN & ASSOC.- New
$649,900Active4 beds 3 baths2,727 sq. ft.250 Parker Oaks Lane, Weatherford, TX 76087
MLS# 21152286Listed by: WILLIAMS TREW REAL ESTATE - New
$122,000Active2.01 Acres112 Bruce Crandall Court, Weatherford, TX 76088
MLS# 21148002Listed by: RAFTER H REALTY, LLC - New
$434,000Active3 beds 2 baths1,228 sq. ft.208 W 7th Street W, Weatherford, TX 76086
MLS# 21143733Listed by: EXCLUSIVE REAL ESTATE SERVICES - Open Sat, 1 to 3pmNew
$450,000Active3 beds 2 baths2,188 sq. ft.1705 E Bankhead Drive, Weatherford, TX 76086
MLS# 21151293Listed by: THE SELLING EXPERTS INC - New
$315,000Active4 beds 2 baths1,971 sq. ft.101 Westend Lane, Weatherford, TX 76088
MLS# 21151321Listed by: MAINSTAY BROKERAGE LLC - Open Sat, 3 to 5pmNew
$499,000Active3 beds 2 baths2,033 sq. ft.2020 Pebblegate Drive, Weatherford, TX 76085
MLS# 21144607Listed by: KELLER WILLIAMS FORT WORTH - New
$600,000Active4 beds 4 baths3,151 sq. ft.1105 Reata Drive, Weatherford, TX 76087
MLS# 21150518Listed by: CENTURY 21 JUDGE FITE CO.