3345 S 960 W, Nibley, UT 84321
Local realty services provided by:ERA Brokers Consolidated
3345 S 960 W,Nibley, UT 84321
$539,900
- 3 Beds
- 2 Baths
- 1,847 sq. ft.
- Single family
- Active
Listed by: isaac walbeck
Office: excel realty inc.
MLS#:2139359
Source:SL
Price summary
- Price:$539,900
- Price per sq. ft.:$292.31
- Monthly HOA dues:$35
About this home
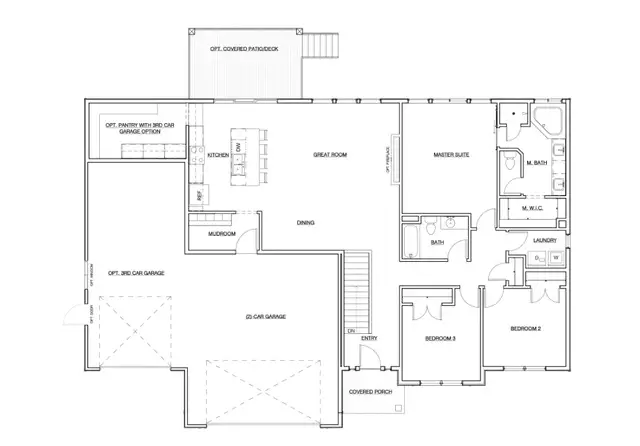
This modern rambler with bold curb appeal, clean lines, and a striking entry truly stands out. Inside, the open layout connects the great room, dining area, and kitchen all with 12' ceilings and an abundance of windows. The oversized butler's pantry provides space for storage and keeps clutter out of the kitchen. The private owner's suite includes an ensuite bath and walk-in closet, while two additional bedrooms and a full bath complete the main floor. The 12' by 16' covered patio is a perfect place to soak in the mountain views and enjoy a summer evening. Whether you are downsizing or simply seeking the perfect single level home, this rambler blends sleek modern style with features for practical everyday living. Call today to discuss options when building with J Thomas Homes. Photos are of a previously completed version of this home. This home will not have a basement.
Contact an agent
Home facts
- Year built:2026
- Listing ID #:2139359
- Added:54 day(s) ago
- Updated:April 21, 2026 at 11:02 AM
Rooms and interior
- Bedrooms:3
- Total bathrooms:2
- Full bathrooms:2
- Rooms Total:9
- Bathrooms Description:Bath: Sep. Tub/Shower
- Kitchen Description:Disposal, Microwave, Range/Oven: Free Stdng., Refrigerator
- Basement Description:Slab
- Living area:1,847 sq. ft.
Heating and cooling
- Cooling:Central Air
Structure and exterior
- Roof:Asphalt
- Year built:2026
- Building area:1,847 sq. ft.
- Lot area:0.23 Acres
- Construction Materials:Stone
- Exterior Features:Covered, Patio: Covered
- Levels:1 Story
Schools
- High school:Ridgeline
- Middle school:South Cache
- Elementary school:Heritage
Utilities
- Water:Culinary, Water Connected
- Sewer:Sewer Connected, Sewer: Connected
Finances and disclosures
- Price:$539,900
- Price per sq. ft.:$292.31
- Tax amount:$1
Features and amenities
- Amenities:Biking Trails, Closet: Walk-In
New listings near 3345 S 960 W
- New
$489,990Active3 beds 2 baths3,147 sq. ft.2824 S 660 W #29, Nibley, UT 84321
MLS# 2151727Listed by: D.R. HORTON, INC - New
$489,990Active3 beds 3 baths3,011 sq. ft.673 W 2840 S #23, Nibley, UT 84321
MLS# 2151669Listed by: D.R. HORTON, INC - New
$479,990Active3 beds 2 baths2,793 sq. ft.683 W 2840 S #22, Nibley, UT 84321
MLS# 2151642Listed by: D.R. HORTON, INC - New
$454,900Active3 beds 3 baths2,082 sq. ft.178 W 3175 S #619, Nibley, UT 84321
MLS# 2151555Listed by: VISIONARY REAL ESTATE - New
$304,900Active3 beds 3 baths1,464 sq. ft.2382 S 1275 W, Nibley, UT 84321
MLS# 2151314Listed by: KW UNITE KELLER WILLIAMS LLC - New
$269,900Active2 beds 2 baths1,213 sq. ft.3085 S 225 W #G 301, Nibley, UT 84321
MLS# 2151159Listed by: VISIONARY REAL ESTATE - New
$324,900Active3 beds 3 baths1,524 sq. ft.3018 S 265 W #745, Nibley, UT 84321
MLS# 2151178Listed by: VISIONARY REAL ESTATE - New
$339,900Active3 beds 3 baths1,524 sq. ft.3003 S 265 W #751, Nibley, UT 84321
MLS# 2151052Listed by: VISIONARY REAL ESTATE
$515,000Pending4 beds 3 baths1,824 sq. ft.2303 S 1000 W #109, Nibley, UT 84321
MLS# 2150379Listed by: KEY TO REALTY, LLC- New
$735,000Active5 beds 4 baths3,048 sq. ft.1253 W 3100 S, Nibley, UT 84321
MLS# 2150339Listed by: SKYLINE REALTY GROUP, LLC