1952 W 5450 S, Roy, UT 84067
Local realty services provided by:ERA Brokers Consolidated
1952 W 5450 S,Roy, UT 84067
$949,999
- 0.61 Acres
- Lots / Land
- Pending
Listed by: porter christensen
Office: equity real estate (results)
MLS#:2121254
Source:SL
Price summary
- Price:$949,999
About this home
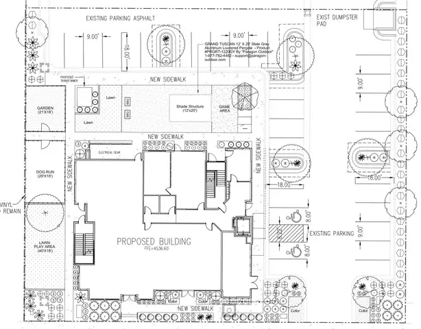
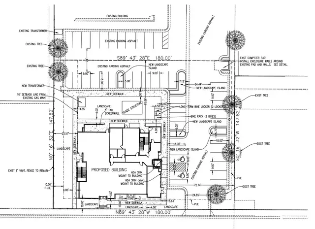
Opportunity to acquire a fully entitled 40-unit mixed-use development located just off 1900 West and 5600 South, only a few hundred yards from I-15 in Roy City, Utah. The project features 40 residential studio units and approximately 3,000 square feet of ground-floor commercial space, positioned near two of the City's primary thoroughfares with excellent visibility and access. The sale includes all approved plans, third-party reports, exterior renderings, floor plans, and full City entitlements (final approvals expected within the next month). Seller is currently fielding offers and open to negotiated terms or potential partnership opportunities.
Contact an agent
Home facts
- Listing ID #:2121254
- Added:45 day(s) ago
- Updated:December 20, 2025 at 08:53 AM
Structure and exterior
- Lot area:0.61 Acres
Schools
- High school:Roy
- Middle school:Roy
- Elementary school:Lakeview
Utilities
- Sewer:Sewer Available, Sewer: Available
Finances and disclosures
- Price:$949,999
- Tax amount:$2,125
New listings near 1952 W 5450 S
- Open Sat, 11am to 1pmNew
$399,900Active4 beds 3 baths2,150 sq. ft.4269 S 2350 W, Roy, UT 84067
MLS# 2127536Listed by: EQUITY REAL ESTATE (SELECT) - New
$465,000Active5 beds 3 baths2,564 sq. ft.2957 W 4390 S, Roy, UT 84067
MLS# 2127526Listed by: BERKSHIRE HATHAWAY HOMESERVICES UTAH PROPERTIES (SALT LAKE) - Open Sat, 10am to 1pmNew
$335,000Active3 beds 1 baths936 sq. ft.2419 W 5850 S, Roy, UT 84067
MLS# 2127494Listed by: BETTER HOMES AND GARDENS REAL ESTATE MOMENTUM (KAYSVILLE) - New
$278,000Active2 beds 2 baths1,080 sq. ft.2349 W Chateau Dr, Roy, UT 84067
MLS# 2127391Listed by: REAL BROKER, LLC - New
$538,000Active3 beds 3 baths1,826 sq. ft.6052 S 4275 W, Roy, UT 84067
MLS# 2127228Listed by: EQUITY REAL ESTATE (SELECT) - New
$495,000Active3 beds 3 baths2,128 sq. ft.3077 W 4650 S, Roy, UT 84067
MLS# 2127177Listed by: EQUITY REAL ESTATE (SELECT) - Open Sat, 1 to 4pmNew
$535,000Active6 beds 3 baths2,468 sq. ft.4224 W 5850 S, Roy, UT 84067
MLS# 2127186Listed by: KW SOUTH VALLEY KELLER WILLIAMS - New
$65,000Active3 beds 2 baths1,248 sq. ft.3800 S 1900 W #163, Roy, UT 84067
MLS# 2127141Listed by: EQUITY REAL ESTATE (TOOELE) - New
$314,999Active2 beds 1 baths1,352 sq. ft.4647 S 3900 W, Roy, UT 84067
MLS# 2126841Listed by: MTN BUFF, LLC - New
$57,000Active2 beds 2 baths1,152 sq. ft.3800 S 1900 W #144, Roy, UT 84067
MLS# 2126708Listed by: RANLIFE REAL ESTATE INC