1354 W Jordan Ln #026, West Jordan, UT 84088
Local realty services provided by:ERA Brokers Consolidated
1354 W Jordan Ln #026,West Jordan, UT 84088
$1,150,000
- 5 Beds
- 5 Baths
- 4,383 sq. ft.
- Single family
- Active
Listed by: sean buttars, samantha woodward
Office: real estate essentials
MLS#:2148455
Source:SL
Price summary
- Price:$1,150,000
- Price per sq. ft.:$262.38
- Monthly HOA dues:$50
About this home
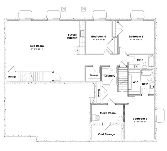
Spacious and versatile, this 5-bedroom, 4.5-bath Henry floor plan offers 4,383 sq. ft. of thoughtfully designed living space with a 3-car garage and flexible areas to suit your lifestyle. Featuring two primary suites on the main floor, this home provides ultimate convenience and privacy. The lower level includes three additional bedrooms with potential for a future mother-in-law suite or ADU, complete with a separate exterior entry, dedicated laundry room, and kitchen roughed-in for independent living. The main-level kitchen is a chef's dream, showcasing a gorgeous layout with a huge island, perfect for entertaining. Primary bathrooms include both a shower and tub along with generous walk-in closets. Come see the beautiful model home and ask me about our Preferred Lender incentive! This home is currently under construction, and photos will be updated as progress continues. Don't miss the chance to make this stunning, multi-functional home yours in the desirable Jordan River Heights community....
Contact an agent
Home facts
- Year built:2026
- Listing ID #:2148455
- Added:5 day(s) ago
- Updated:April 12, 2026 at 11:12 AM
Rooms and interior
- Bedrooms:5
- Total bathrooms:5
- Full bathrooms:3
- Half bathrooms:1
- Rooms Total:18
- Flooring:Carpet, Tile
- Bathrooms Description:Bath: Sep. Tub/Shower
- Kitchen Description:Microwave, Oven: Double, Oven: Gas, Oven: Wall, Range Hood, Range: Gas
- Basement Description:Entrance, Full
- Living area:4,383 sq. ft.
Heating and cooling
- Cooling:Central Air
- Heating:Gas: Central
Structure and exterior
- Roof:Asphalt
- Year built:2026
- Building area:4,383 sq. ft.
- Lot area:0.2 Acres
- Architectural Style:Rambler/Ranch
- Construction Materials:Asbestos, Cement Siding, Stone, Stucco
- Levels:2 Story
Schools
- High school:West Jordan
- Middle school:West Jordan
- Elementary school:Riverside
Utilities
- Water:Culinary, Water Connected
- Sewer:Sewer Connected, Sewer: Connected, Sewer: Public
Finances and disclosures
- Price:$1,150,000
- Price per sq. ft.:$262.38
- Tax amount:$1
Features and amenities
- Amenities:Ceiling Fan, Closet: Walk-In, Den/Office, Gas Logs, Mother-In-Law Apartment
Parking
- Total parking spaces:3
- Parking description:3 Car Garage, Attached Garage
- Garage spaces:3
New listings near 1354 W Jordan Ln #026
- New
$595,000Active3 beds 3 baths3,773 sq. ft.5393 W 7930 S, West Jordan, UT 84081
MLS# 2149862Listed by: REAL BROKER, LLC - New
$534,900Active4 beds 3 baths2,416 sq. ft.7607 N Graphite Dr W #325, West Jordan, UT 84081
MLS# 2148383Listed by: LENNAR HOMES OF UTAH, LLC - New
$600,000Active4 beds 2 baths2,199 sq. ft.1899 W 7000 S, West Jordan, UT 84084
MLS# 2149686Listed by: KW WESTFIELD - New
$520,000Active5 beds 2 baths2,254 sq. ft.2857 W 8200 S, West Jordan, UT 84088
MLS# 2149694Listed by: BERKSHIRE HATHAWAY HOMESERVICES ELITE REAL ESTATE (SOUTH COUNTY) - New
$534,900Active4 beds 3 baths2,416 sq. ft.6084 W Sapphire St #332, West Jordan, UT 84081
MLS# 2149699Listed by: LENNAR HOMES OF UTAH, LLC - New
$579,000Active4 beds 3 baths1,808 sq. ft.8933 S 3900 W, West Jordan, UT 84088
MLS# 2149667Listed by: REAL BROKER, LLC
$469,000Pending3 beds 3 baths1,678 sq. ft.6873 S Red Elm Cir, West Jordan, UT 84081
MLS# 2149553Listed by: UTAH SELECT REALTY PC- Open Sat, 11am to 2pmNew
$475,000Active3 beds 1 baths1,741 sq. ft.6712 S Somerset Dr, West Jordan, UT 84084
MLS# 2149520Listed by: EQUITY REAL ESTATE (SOLID) - New
$740,000Active6 beds 4 baths3,632 sq. ft.6593 W 7870 S, West Jordan, UT 84081
MLS# 2149472Listed by: JUPIDOOR LLC - New
$825,000Active4 beds 3 baths3,782 sq. ft.1229 W Brinkerhoff Dr, West Jordan, UT 84084
MLS# 2149499Listed by: WINDERMERE REAL ESTATE (9TH & 9TH)