3134 Prosperity Ave, Mantua, VA 22031
Local realty services provided by:O'BRIEN REALTY ERA POWERED
3134 Prosperity Ave,Fairfax, VA 22031
$970,000
- 5 Beds
- 7 Baths
- 6,720 sq. ft.
- Single family
- Active
Listed by:karen a briscoe
Office:serhant
MLS#:VAFX2269036
Source:BRIGHTMLS
Price summary
- Price:$970,000
- Price per sq. ft.:$144.35
About this home
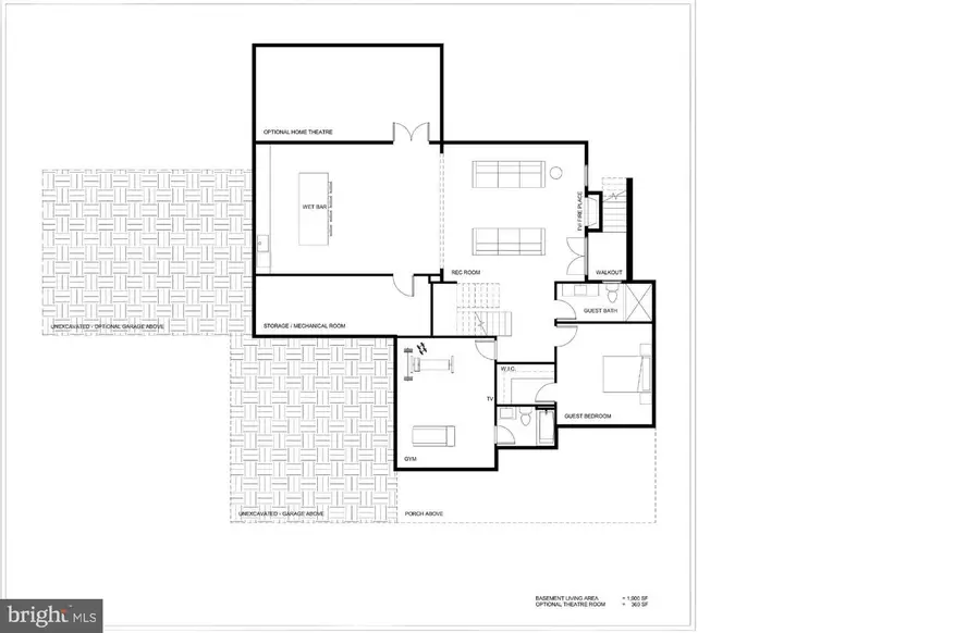
Discover this opportunity to build your custom dream home in this highly desirable area of Fairfax. This expansive 1-acre lot with wooded views offers endless potential for a luxury residence tailored to your lifestyle.
Collaborate with RASPBerry Partners, who will work with the architect and builder to bring your dream home to life. Focused on high-end craftsmanship offering elegance and functionality, the proposed design includes two spacious levels, 5 bedrooms, and 2 plus garages,. Prefer to design your own masterpiece? Bring your own team or purchase the lot to build at your own pace.
Perfectly positioned, this prime location is just minutes from the vibrant Mosaic District, INOVA Fairfax Hospital, parks, Dunn Loring Metro, and downtown Fairfax. Enjoy seamless access to major commuter routes, including I-495, Route 50, and Route 236. Zoned for Mantua Elementary, Frost Middle, and Woodson High School. Property features a well (2022 pending County approval) and no HOA restrictions.
Experience this rare chance to craft the home you have always envisioned. Reach out today and start your journey toward making your dream a reality. Listed as lot/land for $970,000 VAFX2214278
Contact an agent
Home facts
- Year built:1953
- Listing ID #:VAFX2269036
- Added:11 day(s) ago
- Updated:October 05, 2025 at 01:38 PM
Rooms and interior
- Bedrooms:5
- Total bathrooms:7
- Full bathrooms:7
- Living area:6,720 sq. ft.
Heating and cooling
- Cooling:Central A/C
- Heating:Central, Natural Gas
Structure and exterior
- Roof:Architectural Shingle
- Year built:1953
- Building area:6,720 sq. ft.
- Lot area:1 Acres
Schools
- High school:WOODSON
- Middle school:FROST
- Elementary school:MANTUA
Utilities
- Water:Private, Well
- Sewer:Private Septic Tank, Private Sewer
Finances and disclosures
- Price:$970,000
- Price per sq. ft.:$144.35
- Tax amount:$9,105 (2025)
New listings near 3134 Prosperity Ave
- $1,250,000Active4 beds 3 baths4,539 sq. ft.
8803 Lynnhurst, FAIRFAX, VA 22031
MLS# VAFX2263444Listed by: LONG & FOSTER REAL ESTATE, INC. - Open Sun, 1 to 4pmNew$497,500Active3 beds 3 baths1,610 sq. ft.
3704 Persimmon Cir, FAIRFAX, VA 22031
MLS# VAFX2269346Listed by: COLDWELL BANKER REALTY - Open Sun, 1 to 3pm$1,150,000Active5 beds 3 baths3,241 sq. ft.
3503 Alba Pl, FAIRFAX, VA 22031
MLS# VAFX2252770Listed by: EXP REALTY LLC - $450,000Active3 beds 2 baths1,610 sq. ft.
3680 Persimmon Cir, FAIRFAX, VA 22031
MLS# VAFX2264704Listed by: REAL BROKER, LLC - $1,388,000Active4 beds 4 baths2,800 sq. ft.
9005 Southwick St, FAIRFAX, VA 22031
MLS# VAFX2263744Listed by: WASHINGTON CAPITAL REALTY, LLC - $1,569,900Active5 beds 6 baths5,060 sq. ft.
9091 Bear Branch Pl, FAIRFAX, VA 22031
MLS# VAFX2262778Listed by: CORCORAN MCENEARNEY - $469,900Active2 beds 2 baths1,610 sq. ft.
3824 Persimmon Cir, FAIRFAX, VA 22031
MLS# VAFX2260624Listed by: REDFIN CORPORATION - Open Sun, 2 to 4pmNew$1,100,000Active4 beds 3 baths3,622 sq. ft.
8907 Glade Hill Rd, FAIRFAX, VA 22031
MLS# VAFX2269564Listed by: COMPASS - Open Sun, 11am to 1pm$497,000Active2 beds 2 baths1,610 sq. ft.
3814 Persimmon Cir, FAIRFAX, VA 22031
MLS# VAFX2256626Listed by: SAMSON PROPERTIES